Account: R6785411

April 1, 2026

Account Parcel Account Type Tax Year Buildings Actual Value Local Govt Assessed Value School Assessed Value
R6785411 146912200002 Agricultural 2026 3 540,108 40,830 44,880

Legal
PT NW4NW4 12-1-67 LOT B REC EXEMPT RECX13-0102

Subdivision Block Lot Land Economic Area
FORT LUPTON RURAL

Property Address Property City Section Township Range
4936 COUNTY ROAD 23 WELD 12 01 67




Account Parcel Account Type Tax Year Buildings Actual Value Local Govt Assessed Value School Assessed Value
R6785411 146912200002 Agricultural 2026 3 540,108 40,830 44,880

Account Owner Name Address
R6785411 AMAYA-MENDEZ JOSE CARLOS 4936 COUNTY ROAD 23 FORT LUPTON, CO 806218412
R6785411 OLIVAS ALMA A
R6785411 OLIVAS MARIA ARACELI


Account Parcel Account Type Tax Year Buildings Actual Value Local Govt Assessed Value School Assessed Value
R6785411 146912200002 Agricultural 2026 3 540,108 40,830 44,880

Reception Rec Date Type Grantor Grantee Doc Fee Sale Date Sale Price
3987221 12-31-2013 RE RECORDED EXEMPTION RECX13-0102 0.00 NA 0
3987221 12-31-2013 RE RECX13 0102 RECX13 0102 0.00 12-31-2013 0
4117547 06-19-2015 DTHC NUSS RANDALL P DECHANT PAMELA S 0.00 08-16-2008 0
4186955 03-09-2016 QCN DECHANT PAMELA S PACHELLO BRET; PACHELLO PAMELA S DECHANT 0.00 03-09-2016 0
4308628 06-08-2017 WD PACHELLO BRET; PACHELLO PAMELA S DECHANT DEBORSKI PAIGE MICHELE; DAVEE MITCHELL MCQUAID 62.00 06-06-2017 620,000
4651876 11-17-2020 QCN DEBORSKI PAIGE MICHELE DAVEE MITCHELL MCQUAID 0.00 11-09-2020 0
4693246 03-16-2021 SWD DAVEE MITCHELL MCQUAID AMAYA-MENDEZ JOSE CARLOS; OLIVAS ALMA A; OLIVAS MARIA ARACELI 80.75 03-08-2021 807,500



Account Parcel Account Type Tax Year Buildings Actual Value Local Govt Assessed Value School Assessed Value
R6785411 146912200002 Agricultural 2026 3 540,108 40,830 44,880

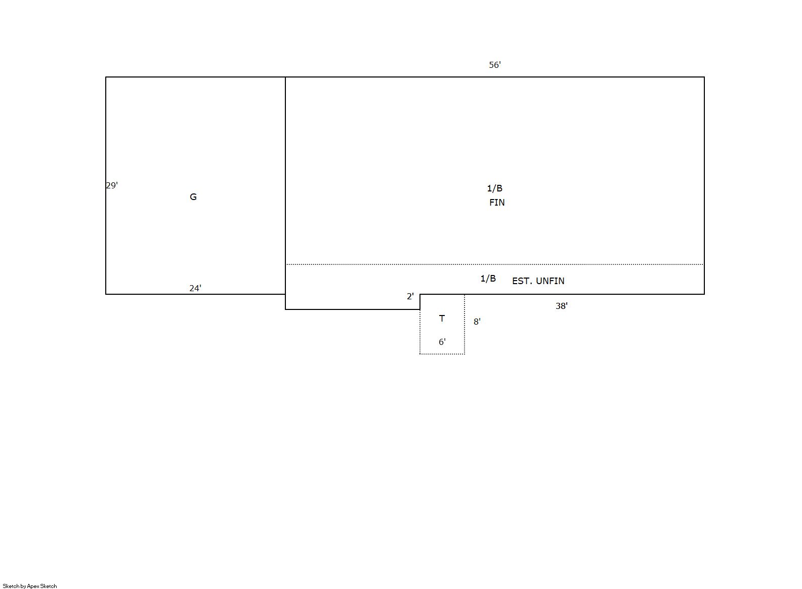
Building 1

AccountNo Building ID Occupancy
R6785411 1 Single Family Residential on Ag


ID Type NBHD Occupancy % Complete Bedrooms Baths
1 Residential 4R0009 Single Family Residential on Ag 100 4 3.00


ID Exterior Roof Cover Interior HVAC Perimeter Units Unit Type Make
1 Frame Masonry Veneer Composition Shingle Drywall Hot Water Baseboard 174 0 NA NA


ID Square Ft Condo SF Total Basement SF Finished Basement SF Garage SF Carport SF Balcony SF Porch SF
1 1,660 0 1,660 1,400 696 0 0 48


Built As Details for Building 1
ID Built As Square Ft Year Built Stories Length Width
1.00 Ranch 1 Story 1,660 1973 1 0 0


Additional Details for Building 1
ID Detail Type Description Units
1 Add On Fireplace Wood 1.00
1 Basement Finished 1400.00
1 Basement Total Basement SF 1660.00
1 Fixture Full Bath 3.00
1 Garage Attached 696.00
1 Porch Open Slab 48.00



Building 2

AccountNo Building ID Occupancy
R6785411 2 Equipment Building


ID Type NBHD Occupancy % Complete Bedrooms Baths
2 Out Building NA Equipment Building 100 0 0.00


ID Exterior Roof Cover Interior HVAC Perimeter Units Unit Type Make
2 NA NA NA None 280 0 NA NA


ID Square Ft Condo SF Total Basement SF Finished Basement SF Garage SF Carport SF Balcony SF Porch SF
2 4,000 0 0 0 0 0 0 0


Built As Details for Building 2
ID Built As Square Ft Year Built Stories Length Width
2.00 Equipment Building 4,000 1971 1 100 40

No Additional Details for Building 2




Building 3

AccountNo Building ID Occupancy
R6785411 3 Grain Bin


ID Type NBHD Occupancy % Complete Bedrooms Baths
3 Out Building NA Grain Bin 100 0 0.00


ID Exterior Roof Cover Interior HVAC Perimeter Units Unit Type Make
3 Metal NA NA None 0 0 NA NA


ID Square Ft Condo SF Total Basement SF Finished Basement SF Garage SF Carport SF Balcony SF Porch SF
3 1 0 0 0 0 0 0 0


Built As Details for Building 3
ID Built As Square Ft Year Built Stories Length Width
3.00 Grain Bin 1 0 0 0 0

No Additional Details for Building 3






Account Parcel Account Type Tax Year Buildings Actual Value Local Govt Assessed Value School Assessed Value
R6785411 146912200002 Agricultural 2026 3 540,108 40,830 44,880

Type Code Description Actual Value Local Govt Assessed Value School Assessed Value Acres Land SqFt
Improvement 4277 FARM/RANCH RESIDENCE-IMPS 506,033 31,630 35,680 0.000 0
Improvement 4279 FARM RANCH SUPPORT BLDGS 33,291 8,990 8,990 0.000 0
Land 4137 MEADOW HAY LAND-AGRICULTURAL 756 200 200 27.050 1,178,298
Land 4167 WASTE LAND 28 10 10 4.480 195,149
Totals - - 540,108 40,830 44,880 31.530 1,373,447


Account Parcel Account Type Tax Year Buildings Actual Value Local Govt Assessed Value School Assessed Value
R6785411 146912200002 Agricultural 2026 3 540,108 40,830 44,880

Tax Area District ID District Name Local Govt
Mill Levy
School
Mill Levy
Estimated
Taxes
3686 0700 AIMS JUNIOR COLLEGE 6.313 0.000 $257.76
3686 0302 CENTRAL COLORADO WATER (CCW) 0.980 0.000 $40.01
3686 0309 CENTRAL COLORADO WATER SUBDISTRICT (CCS) 1.462 0.000 $59.69
3686 0506 FORT LUPTON FIRE 9.357 0.000 $382.05
3686 1050 HIGH PLAINS LIBRARY 3.044 0.000 $124.29
3686 1201 PLATTE VALLEY CONSERVATION 0.000 0.000 $0.00
3686 0208 SCHOOL DIST RE8-FORT LUPTON AND DACONO 0.000 18.198 $816.73
3686 0100 WELD COUNTY 15.956 0.000 $651.48
Total - - 37.112 18.198 $2,332.01


The estimate of tax is based on the prior year mill levy and the 2025 projected assessment rates. Mill levies and tax estimates will be updated yearly on December 22nd for the current year. Additional information can be found at https://assessor.weld.gov










Select Reports to Print: