Account: R6785528
April 1, 2026
| Account | Parcel | Account Type | Tax Year | Buildings | Actual Value | Local Govt Assessed Value | School Assessed Value |
|---|---|---|---|---|---|---|---|
| R6785528 | 095704147031 | Residential | 2026 | 1 | 677,570 | 42,350 | 47,770 |
| Legal |
|---|
| L31 BLK1 WATER VALLEY SOUTH 16TH FG |
| Subdivision | Block | Lot | Land Economic Area |
|---|---|---|---|
| WATER VALLEY SOUTH 16TH FG | 1 | 31 | WATER VALLEY SOUTHEAST |
| Property Address | Property City | Section | Township | Range |
|---|---|---|---|---|
| 2115 LONGFIN CT | WINDSOR | 04 | 05 | 67 |
| Account | Parcel | Account Type | Tax Year | Buildings | Actual Value | Local Govt Assessed Value | School Assessed Value |
|---|---|---|---|---|---|---|---|
| R6785528 | 095704147031 | Residential | 2026 | 1 | 677,570 | 42,350 | 47,770 |
| Account | Owner Name | Address |
|---|---|---|
| R6785528 | AMATO GEORGE TRUST | 2115 LONGFIN CT WINDSOR, CO 805503344 |
| R6785528 | AMATO MARGARET TRUST |
| Account | Parcel | Account Type | Tax Year | Buildings | Actual Value | Local Govt Assessed Value | School Assessed Value |
|---|---|---|---|---|---|---|---|
| R6785528 | 095704147031 | Residential | 2026 | 1 | 677,570 | 42,350 | 47,770 |
| Reception | Rec Date | Type | Grantor | Grantee | Doc Fee | Sale Date | Sale Price |
|---|---|---|---|---|---|---|---|
| 3990788 | NA | SUB | SUBDIVISION | WATER VALLEY SOUTH 16TH FG | 0.00 | NA | 0 |
| 3990788 | 01-17-2014 | PLT | WATER VALLEY SOUTH SUB 16TH FG | WATER VALLEY SOUTH SUB 16TH FG | 0.00 | 01-09-2014 | 0 |
| 3997477 | 02-21-2014 | QCN | LIND MARTIN | TROLLCO INC | 0.00 | 02-12-2014 | 0 |
| 3997480 | 02-21-2014 | SWD | TROLLCO INC | MELODY HOMES INC | 188.00 | 02-19-2014 | 1,880,000 |
| 4219043 | 07-14-2016 | SWD | MELODY HOMES INC | AMATO GEORGE; AMATO MARGARET | 49.00 | 07-12-2016 | 490,000 |
| 4848164 | 08-12-2022 | SWDN | AMATO GEORGE; AMATO MARGARET | AMATO GEORGE TRUST; AMATO MARGARET TRUST | 0.00 | 08-09-2022 | 0 |
*If the hyperlink for the reception number does not work, try a manual search in the Clerk and Recorder records. Use the Grantor or Grantee in your search.
| Account | Parcel | Account Type | Tax Year | Buildings | Actual Value | Local Govt Assessed Value | School Assessed Value |
|---|---|---|---|---|---|---|---|
| R6785528 | 095704147031 | Residential | 2026 | 1 | 677,570 | 42,350 | 47,770 |
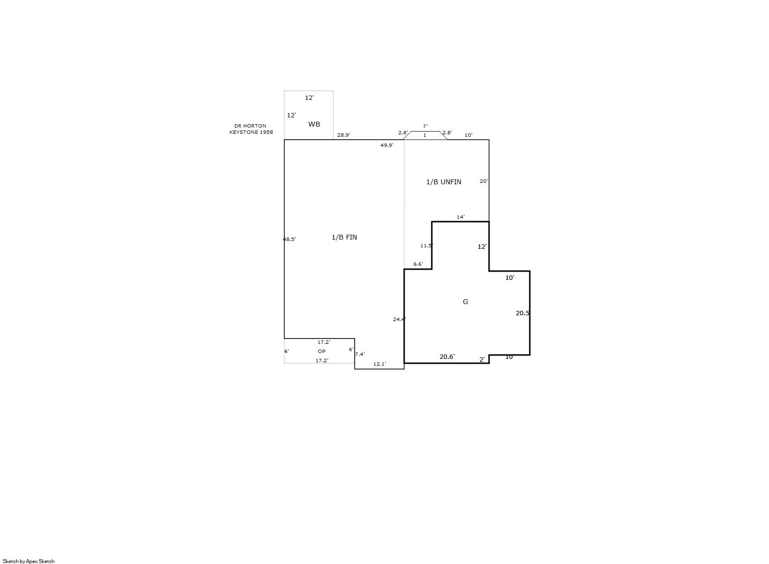
Building 1
| AccountNo | Building ID | Occupancy |
|---|---|---|
| R6785528 | 1 | Single Family Residential |
| ID | Type | NBHD | Occupancy | % Complete | Bedrooms | Baths |
|---|---|---|---|---|---|---|
| 1 | Residential | 2W3011 | Single Family Residential | 100 | 4 | 4.00 |
| ID | Exterior | Roof Cover | Interior | HVAC | Perimeter | Units | Unit Type | Make |
|---|---|---|---|---|---|---|---|---|
| 1 | Frame Siding | Composition Shingle | Drywall | Central Air to Air | 213 | 0 | NA | NA |
| ID | Square Ft | Condo SF | Total Basement SF | Finished Basement SF | Garage SF | Carport SF | Balcony SF | Porch SF |
|---|---|---|---|---|---|---|---|---|
| 1 | 2,017 | 0 | 1,999 | 1,511 | 839 | 0 | 144 | 103 |
| ID | Built As | Square Ft | Year Built | Stories | Length | Width |
|---|---|---|---|---|---|---|
| 1.00 | Ranch 1 Story | 2,017 | 2016 | 1 | 0 | 0 |
| ID | Detail Type | Description | Units |
|---|---|---|---|
| 1 | Add On | Fireplace Gas | 1.00 |
| 1 | Balcony | Wood Wood Fin | 144.00 |
| 1 | Basement | Finished | 1511.00 |
| 1 | Basement | Total Basement SF | 1999.00 |
| 1 | Basement | Walkout | 1.00 |
| 1 | Fixture | Full Bath | 3.00 |
| 1 | Fixture | Half Bath | 1.00 |
| 1 | Garage | Attached | 839.00 |
| 1 | Porch | Slab Roof Ceil | 103.00 |
| Account | Parcel | Account Type | Tax Year | Buildings | Actual Value | Local Govt Assessed Value | School Assessed Value |
|---|---|---|---|---|---|---|---|
| R6785528 | 095704147031 | Residential | 2026 | 1 | 677,570 | 42,350 | 47,770 |
| Type | Code | Description | Actual Value | Local Govt Assessed Value | School Assessed Value | Acres | Land SqFt |
|---|---|---|---|---|---|---|---|
| Improvement | 1212 | SINGLE FAMILY RESIDENTIAL IMPROVEMENTS | 547,570 | 34,220 | 38,600 | 0.000 | 0 |
| Land | 1112 | SINGLE FAMILY RESIDENTIAL-LAND | 130,000 | 8,130 | 9,170 | 0.247 | 10,754 |
| Totals | - | - | 677,570 | 42,350 | 47,770 | 0.247 | 10,754 |
Comparable sales for your Residential or Commercial property may be found using our SALES SEARCH TOOL
Values are updated annually on May 1st for Real Property and June 15th for Personal Property and Oil and Gas.
| Account | Parcel | Account Type | Tax Year | Buildings | Actual Value | Local Govt Assessed Value | School Assessed Value |
|---|---|---|---|---|---|---|---|
| R6785528 | 095704147031 | Residential | 2026 | 1 | 677,570 | 42,350 | 47,770 |
| Tax Area | District ID | District Name | Local Govt Mill Levy |
School Mill Levy |
Estimated Taxes |
|---|---|---|---|---|---|
| 0452 | 0700 | AIMS JUNIOR COLLEGE | 6.313 | 0.000 | $267.36 |
| 0452 | 1051 | CLEARVIEW LIBRARY | 3.546 | 0.000 | $150.17 |
| 0452 | 0301 | NORTHERN COLORADO WATER (NCW) | 1.000 | 0.000 | $42.35 |
| 0452 | 0204 | SCHOOL DIST RE4-WINDSOR | 0.000 | 46.646 | $2,228.28 |
| 0452 | 1304 | WATER VALLEY METRO 2 | 41.079 | 0.000 | $1,739.70 |
| 0452 | 0100 | WELD COUNTY | 15.956 | 0.000 | $675.74 |
| 0452 | 1200 | WEST GREELEY CONSERVATION | 0.414 | 0.000 | $17.53 |
| 0452 | 0428 | WINDSOR TOWN | 12.030 | 0.000 | $509.47 |
| 0452 | 0521 | WINDSOR-SEVERANCE FIRE | 8.535 | 0.000 | $361.46 |
| Total | - | - | 88.873 | 46.646 | $5,992.05 |
The estimate of tax is based on the prior year mill levy and the 2025 projected assessment rates. Mill levies and tax estimates will be updated yearly on December 22nd for the current year. Additional information can be found at https://assessor.weld.gov



