Account: R6785989
April 4, 2026
| Account | Parcel | Account Type | Tax Year | Buildings | Actual Value | Local Govt Assessed Value | School Assessed Value |
|---|---|---|---|---|---|---|---|
| R6785989 | 080711313006 | Residential | 2026 | 1 | 431,930 | 27,000 | 30,450 |
| Legal |
|---|
| L6 BLK11 HIDDEN VALLEY FARM 2ND FG |
| Subdivision | Block | Lot | Land Economic Area |
|---|---|---|---|
| HIDDEN VALLEY FARM 2ND FG | 11 | 6 | HIDDEN VALLEY FARM |
| Property Address | Property City | Section | Township | Range |
|---|---|---|---|---|
| 1792 AVERY PLAZA ST | SEVERANCE | 11 | 06 | 67 |
| Account | Parcel | Account Type | Tax Year | Buildings | Actual Value | Local Govt Assessed Value | School Assessed Value |
|---|---|---|---|---|---|---|---|
| R6785989 | 080711313006 | Residential | 2026 | 1 | 431,930 | 27,000 | 30,450 |
| Account | Owner Name | Address |
|---|---|---|
| R6785989 | ANDERSON ROBERT M | 1792 AVERY PLAZA ST SEVERANCE, CO 805503234 |
| R6785989 | ANDERSON GWENDOLYN P |
| Account | Parcel | Account Type | Tax Year | Buildings | Actual Value | Local Govt Assessed Value | School Assessed Value |
|---|---|---|---|---|---|---|---|
| R6785989 | 080711313006 | Residential | 2026 | 1 | 431,930 | 27,000 | 30,450 |
| Reception | Rec Date | Type | Grantor | Grantee | Doc Fee | Sale Date | Sale Price |
|---|---|---|---|---|---|---|---|
| 3995491 | NA | SUB | SUBDIVISION | HIDDEN VALLEY FARM 2ND FG | 0.00 | NA | 0 |
| 3995491 | 02-11-2014 | PLT | HIDDEN VALLEY FARM SUB 2ND FG | HIDDEN VALLEY FARM SUB 2ND FG | 0.00 | 12-10-2013 | 0 |
| 4049624 | 09-29-2014 | SWD | BABCOCK LAND CORP | LORSON SOUTH LAND CORP | 90.00 | 09-29-2014 | 900,000 |
| 4072444 | 12-31-2014 | SWD | LORSON SOUTH LAND CORP | SAINT AUBYN HOMES LLC | 88.00 | 12-30-2014 | 880,000 |
| 4123945 | 07-13-2015 | SWD | SAINT AUBYN HOMES LLC | ANDERSON ROBERT M; ANDERSON GWENDOLYN P | 31.36 | 06-18-2015 | 313,600 |
*If the hyperlink for the reception number does not work, try a manual search in the Clerk and Recorder records. Use the Grantor or Grantee in your search.
| Account | Parcel | Account Type | Tax Year | Buildings | Actual Value | Local Govt Assessed Value | School Assessed Value |
|---|---|---|---|---|---|---|---|
| R6785989 | 080711313006 | Residential | 2026 | 1 | 431,930 | 27,000 | 30,450 |
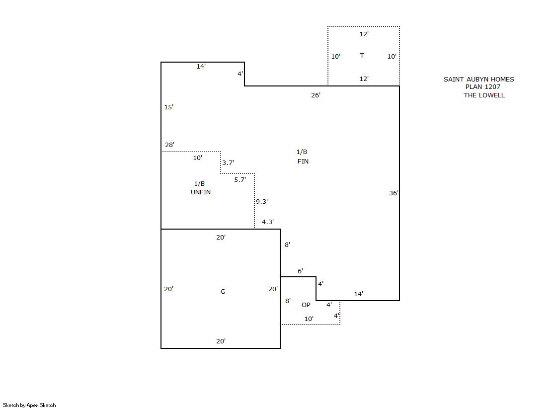
Building 1
| AccountNo | Building ID | Occupancy |
|---|---|---|
| R6785989 | 1 | Single Family Residential |
| ID | Type | NBHD | Occupancy | % Complete | Bedrooms | Baths |
|---|---|---|---|---|---|---|
| 1 | Residential | 2S2052 | Single Family Residential | 100 | 4 | 3.00 |
| ID | Exterior | Roof Cover | Interior | HVAC | Perimeter | Units | Unit Type | Make |
|---|---|---|---|---|---|---|---|---|
| 1 | Frame Siding | Composition Shingle | Drywall | Central Air to Air | 160 | 0 | NA | NA |
| ID | Square Ft | Condo SF | Total Basement SF | Finished Basement SF | Garage SF | Carport SF | Balcony SF | Porch SF |
|---|---|---|---|---|---|---|---|---|
| 1 | 1,232 | 0 | 1,232 | 1,049 | 400 | 0 | 0 | 120 |
| ID | Built As | Square Ft | Year Built | Stories | Length | Width |
|---|---|---|---|---|---|---|
| 1.00 | Ranch 1 Story | 1,232 | 2015 | 1 | 0 | 0 |
| ID | Detail Type | Description | Units |
|---|---|---|---|
| 1 | Add On | Fireplace Gas | 1.00 |
| 1 | Basement | Finished | 1049.00 |
| 1 | Basement | Total Basement SF | 1232.00 |
| 1 | Fixture | Full Bath | 3.00 |
| 1 | Garage | Attached | 400.00 |
| 1 | Porch | Open Slab | 120.00 |
| 1 | Porch | Slab Roof Ceil | 64.00 |
| Account | Parcel | Account Type | Tax Year | Buildings | Actual Value | Local Govt Assessed Value | School Assessed Value |
|---|---|---|---|---|---|---|---|
| R6785989 | 080711313006 | Residential | 2026 | 1 | 431,930 | 27,000 | 30,450 |
| Type | Code | Description | Actual Value | Local Govt Assessed Value | School Assessed Value | Acres | Land SqFt |
|---|---|---|---|---|---|---|---|
| Improvement | 1212 | SINGLE FAMILY RESIDENTIAL IMPROVEMENTS | 336,930 | 21,060 | 23,750 | 0.000 | 0 |
| Land | 1112 | SINGLE FAMILY RESIDENTIAL-LAND | 95,000 | 5,940 | 6,700 | 0.186 | 8,089 |
| Totals | - | - | 431,930 | 27,000 | 30,450 | 0.186 | 8,089 |
Comparable sales for your Residential or Commercial property may be found using our SALES SEARCH TOOL
Values are updated annually on May 1st for Real Property and June 15th for Personal Property and Oil and Gas.
| Account | Parcel | Account Type | Tax Year | Buildings | Actual Value | Local Govt Assessed Value | School Assessed Value |
|---|---|---|---|---|---|---|---|
| R6785989 | 080711313006 | Residential | 2026 | 1 | 431,930 | 27,000 | 30,450 |
| Tax Area | District ID | District Name | Local Govt Mill Levy |
School Mill Levy |
Estimated Taxes |
|---|---|---|---|---|---|
| 4924 | 0700 | AIMS JUNIOR COLLEGE | 6.313 | 0.000 | $170.45 |
| 4924 | 1051 | CLEARVIEW LIBRARY | 3.546 | 0.000 | $95.74 |
| 4924 | 1510 | HIDDEN VALLEY FARM METRO 2 | 76.276 | 0.000 | $2,059.45 |
| 4924 | 0304 | NORTH WELD COUNTY WATER (NWC) | 0.000 | 0.000 | $0.00 |
| 4924 | 0301 | NORTHERN COLORADO WATER (NCW) | 1.000 | 0.000 | $27.00 |
| 4924 | 0204 | SCHOOL DIST RE4-WINDSOR | 0.000 | 46.646 | $1,420.37 |
| 4924 | 0427 | SEVERANCE TOWN | 12.635 | 0.000 | $341.15 |
| 4924 | 0100 | WELD COUNTY | 15.956 | 0.000 | $430.81 |
| 4924 | 1200 | WEST GREELEY CONSERVATION | 0.414 | 0.000 | $11.18 |
| 4924 | 0521 | WINDSOR-SEVERANCE FIRE | 8.535 | 0.000 | $230.45 |
| Total | - | - | 124.675 | 46.646 | $4,786.60 |
The estimate of tax is based on the prior year mill levy and the 2025 projected assessment rates. Mill levies and tax estimates will be updated yearly on December 22nd for the current year. Additional information can be found at https://assessor.weld.gov


