Account: R6835197
April 5, 2026
| Account | Parcel | Account Type | Tax Year | Buildings | Actual Value | Local Govt Assessed Value | School Assessed Value |
|---|---|---|---|---|---|---|---|
| R6835197 | 080721428044 | Residential | 2026 | 1 | 388,670 | 24,290 | 27,400 |
| Legal |
|---|
| WIN GRP L44 BLK1 GLEN ROCK PLACE |
| Subdivision | Block | Lot | Land Economic Area |
|---|---|---|---|
| GLEN ROCK PLACE | 1 | 44 | GLEN ROCK TOWNHOMES |
| Property Address | Property City | Section | Township | Range |
|---|---|---|---|---|
| 729 APPLE CT | WINDSOR | 21 | 06 | 67 |
| Account | Parcel | Account Type | Tax Year | Buildings | Actual Value | Local Govt Assessed Value | School Assessed Value |
|---|---|---|---|---|---|---|---|
| R6835197 | 080721428044 | Residential | 2026 | 1 | 388,670 | 24,290 | 27,400 |
| Account | Owner Name | Address |
|---|---|---|
| R6835197 | MARTIN AMANDA | 729 APPLE CT WINDSOR, CO 805505727 |
| Account | Parcel | Account Type | Tax Year | Buildings | Actual Value | Local Govt Assessed Value | School Assessed Value |
|---|---|---|---|---|---|---|---|
| R6835197 | 080721428044 | Residential | 2026 | 1 | 388,670 | 24,290 | 27,400 |
| Reception | Rec Date | Type | Grantor | Grantee | Doc Fee | Sale Date | Sale Price |
|---|---|---|---|---|---|---|---|
| 2405335 | 09-06-1994 | WDN | R R & D PROPERTIES INC | 0.00 | 09-02-1994 | 0 | |
| 2441852 | NA | SUB | SUBDIVISION | GLEN ROCK PLACE PUD AMD LOTS 11 & 48 & TRACT A BLK 1 & LOT 18 & TRACT F BL | 0.00 | NA | 0 |
| 2519316 | 11-05-1996 | WD | R R & D PROPERTIES INC | GIULIANO & FATHER CONSTRUCTION | 130.95 | 11-05-1996 | 1,309,500 |
| 2633439 | 08-14-1998 | WD | GIULIANO & FATHER CONSTRUCTION | HAGEMAN CATHERINE & | 10.84 | 08-10-1998 | 108,400 |
| 2852813 | 05-31-2001 | WD | HAGEMAN CATHERINE & | MANNON LANA J | 14.25 | 05-29-2001 | 142,500 |
| 3409184 | 08-04-2006 | WD | MANNON LANA J | KRAUSS KARL | 15.49 | 08-02-2006 | 154,900 |
| 3509866 | 10-10-2007 | PTD | KRAUSS KARL | LASALLE BANK N A | 0.00 | 10-10-2007 | 0 |
| 3562187 | 06-20-2008 | SWD | LASALLE BANK N A | HASKELL MATT S | 12.05 | 02-12-2008 | 120,500 |
| 3729306 | 11-02-2010 | WD | HASKELL MATT S | ANGELLO CHERYL D | 14.60 | 10-29-2010 | 146,000 |
| 4263758 | 12-20-2016 | WD | ANGELLO CHERYL D | MARTIN AMANDA | 23.50 | 12-19-2016 | 235,000 |
*If the hyperlink for the reception number does not work, try a manual search in the Clerk and Recorder records. Use the Grantor or Grantee in your search.
| Account | Parcel | Account Type | Tax Year | Buildings | Actual Value | Local Govt Assessed Value | School Assessed Value |
|---|---|---|---|---|---|---|---|
| R6835197 | 080721428044 | Residential | 2026 | 1 | 388,670 | 24,290 | 27,400 |
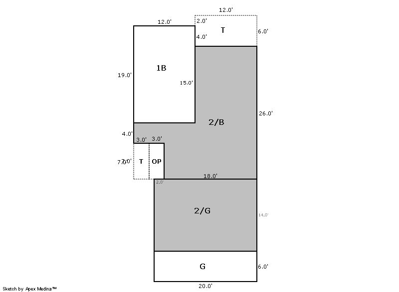
Building 1
| AccountNo | Building ID | Occupancy |
|---|---|---|
| R6835197 | 1 | Townhouse |
| ID | Type | NBHD | Occupancy | % Complete | Bedrooms | Baths |
|---|---|---|---|---|---|---|
| 1 | Townhouse | 2W1051 | Townhouse | 100 | 3 | 4.00 |
| ID | Exterior | Roof Cover | Interior | HVAC | Perimeter | Units | Unit Type | Make |
|---|---|---|---|---|---|---|---|---|
| 1 | Frame Hardboard | Composition Shingle | Drywall | Central Air to Air | 0 | 0 | Inside | NA |
| ID | Square Ft | Condo SF | Total Basement SF | Finished Basement SF | Garage SF | Carport SF | Balcony SF | Porch SF |
|---|---|---|---|---|---|---|---|---|
| 1 | 1,312 | 0 | 630 | 630 | 400 | 0 | 0 | 21 |
| ID | Built As | Square Ft | Year Built | Stories | Length | Width |
|---|---|---|---|---|---|---|
| 1.00 | Townhouse Two Story | 1,312 | 1998 | 2 | 0 | 0 |
| ID | Detail Type | Description | Units |
|---|---|---|---|
| 1 | Basement | Finished | 630.00 |
| 1 | Basement | Total Basement SF | 630.00 |
| 1 | Fixture | Full Bath | 3.00 |
| 1 | Fixture | Half Bath | 1.00 |
| 1 | Garage | Attached | 400.00 |
| 1 | Porch | Open Slab | 93.00 |
| 1 | Porch | Slab Roof Ceil | 21.00 |
| 1 | Rough In | Rough In | 1.00 |
| Account | Parcel | Account Type | Tax Year | Buildings | Actual Value | Local Govt Assessed Value | School Assessed Value |
|---|---|---|---|---|---|---|---|
| R6835197 | 080721428044 | Residential | 2026 | 1 | 388,670 | 24,290 | 27,400 |
| Type | Code | Description | Actual Value | Local Govt Assessed Value | School Assessed Value | Acres | Land SqFt |
|---|---|---|---|---|---|---|---|
| Improvement | 1212 | SINGLE FAMILY RESIDENTIAL IMPROVEMENTS | 316,170 | 19,760 | 22,290 | 0.000 | 0 |
| Land | 1112 | SINGLE FAMILY RESIDENTIAL-LAND | 72,500 | 4,530 | 5,110 | 0.044 | 1,919 |
| Totals | - | - | 388,670 | 24,290 | 27,400 | 0.044 | 1,919 |
Comparable sales for your Residential or Commercial property may be found using our SALES SEARCH TOOL
Values are updated annually on May 1st for Real Property and June 15th for Personal Property and Oil and Gas.
| Account | Parcel | Account Type | Tax Year | Buildings | Actual Value | Local Govt Assessed Value | School Assessed Value |
|---|---|---|---|---|---|---|---|
| R6835197 | 080721428044 | Residential | 2026 | 1 | 388,670 | 24,290 | 27,400 |
| Tax Area | District ID | District Name | Local Govt Mill Levy |
School Mill Levy |
Estimated Taxes |
|---|---|---|---|---|---|
| 0420 | 0700 | AIMS JUNIOR COLLEGE | 6.313 | 0.000 | $153.34 |
| 0420 | 1051 | CLEARVIEW LIBRARY | 3.546 | 0.000 | $86.13 |
| 0420 | 0301 | NORTHERN COLORADO WATER (NCW) | 1.000 | 0.000 | $24.29 |
| 0420 | 0204 | SCHOOL DIST RE4-WINDSOR | 0.000 | 46.646 | $1,278.10 |
| 0420 | 0100 | WELD COUNTY | 15.956 | 0.000 | $387.57 |
| 0420 | 0428 | WINDSOR TOWN | 12.030 | 0.000 | $292.21 |
| 0420 | 0521 | WINDSOR-SEVERANCE FIRE | 8.535 | 0.000 | $207.32 |
| Total | - | - | 47.38 | 46.646 | $2,428.96 |
The estimate of tax is based on the prior year mill levy and the 2025 projected assessment rates. Mill levies and tax estimates will be updated yearly on December 22nd for the current year. Additional information can be found at https://assessor.weld.gov



