Account: R6886397
April 4, 2026
| Account | Parcel | Account Type | Tax Year | Buildings | Actual Value | Local Govt Assessed Value | School Assessed Value |
|---|---|---|---|---|---|---|---|
| R6886397 | 095903127005 | Residential | 2026 | 1 | 385,609 | 24,100 | 27,180 |
| Legal |
|---|
| GR 8WBW L5 BLK1 WEBER WEST 8TH REPLAT |
| Subdivision | Block | Lot | Land Economic Area |
|---|---|---|---|
| WEBER WEST 8TH RPLT | 1 | 5 | WEBER WEST |
| Property Address | Property City | Section | Township | Range |
|---|---|---|---|---|
| 267 50TH AVENUE PL | GREELEY | 03 | 05 | 66 |
| Account | Parcel | Account Type | Tax Year | Buildings | Actual Value | Local Govt Assessed Value | School Assessed Value |
|---|---|---|---|---|---|---|---|
| R6886397 | 095903127005 | Residential | 2026 | 1 | 385,609 | 24,100 | 27,180 |
| Account | Owner Name | Address |
|---|---|---|
| R6886397 | LOPEZ FAMILY REVOCABLE LIVING TRUST | 24982 COPA DEL ORO DR UNIT 102 HAYWARD, CA 945452570 |
| Account | Parcel | Account Type | Tax Year | Buildings | Actual Value | Local Govt Assessed Value | School Assessed Value |
|---|---|---|---|---|---|---|---|
| R6886397 | 095903127005 | Residential | 2026 | 1 | 385,609 | 24,100 | 27,180 |
| Reception | Rec Date | Type | Grantor | Grantee | Doc Fee | Sale Date | Sale Price |
|---|---|---|---|---|---|---|---|
| 2384221 | 04-18-1994 | WDN | 0.00 | 01-01-1900 | 0 | ||
| 2524504 | NA | SUB | SUBDIVISION | WEBER WEST 8TH RPLT | 0.00 | NA | 0 |
| 2545106 | 04-28-1997 | WDN | PRO LAND LLC | WEBER-MALPIEDE PATRICIA L | 0.00 | 04-14-1997 | 0 |
| 2560373 | 07-29-1997 | WD | WEBER-MALPIEDE PATRICIA L | STROH GRANT | 2.40 | 07-28-1997 | 24,000 |
| 2560374 | 07-29-1997 | WD | STROH GRANT | HURLEY DANIEL L & LINDA L | 11.37 | 07-28-1997 | 113,700 |
| 3478637 | 05-25-2007 | PTD | HURLEY DANIEL L & LINDA L | COUNTRYWIDE HOME LOANS INC | 0.00 | 05-24-2007 | 0 |
| 3492567 | 07-25-2007 | SWD | FEDERAL NTAIONAL MORTGAGE ASSOCIATION | LOPEZ SOLOMON DOUGLAS & | 15.75 | 07-23-2007 | 157,500 |
| 3492568 | 07-25-2007 | SWDN | COUNTRYWIDE HOME LOANS INC | FEDERAL NATIONAL MORTGAGE ASSOCIATION | 0.00 | 07-17-2007 | 0 |
| 3536828 | 02-22-2008 | QCN | LOPEZ SOLOMON DOUGLAS & | LOPEZ CAMILLE R | 0.00 | 02-19-2008 | 0 |
| 3563630 | 06-27-2008 | QCN | LOPEZ CAMILLE R | LOPEZ CAMILLE R & | 0.00 | 06-26-2008 | 0 |
| 3631425 | 06-19-2009 | QCN | LOPEZ CAMILLE R | LOPEZ CAMILLE R | 0.00 | 06-18-2009 | 0 |
| 3959014 | 08-26-2013 | QCN | LOPEZ CAMILLE R | LOPEZ CAMILLE R | 0.00 | 08-21-2013 | 0 |
| 5076711 | 01-09-2026 | QCN | LOPEZ CAMILLE R; LOPEZ SOLOMON DOUGLAS | LOPEZ FAMILY REVOCABLE LIVING TRUST | 0.00 | 08-22-2025 | 0 |
*If the hyperlink for the reception number does not work, try a manual search in the Clerk and Recorder records. Use the Grantor or Grantee in your search.
| Account | Parcel | Account Type | Tax Year | Buildings | Actual Value | Local Govt Assessed Value | School Assessed Value |
|---|---|---|---|---|---|---|---|
| R6886397 | 095903127005 | Residential | 2026 | 1 | 385,609 | 24,100 | 27,180 |
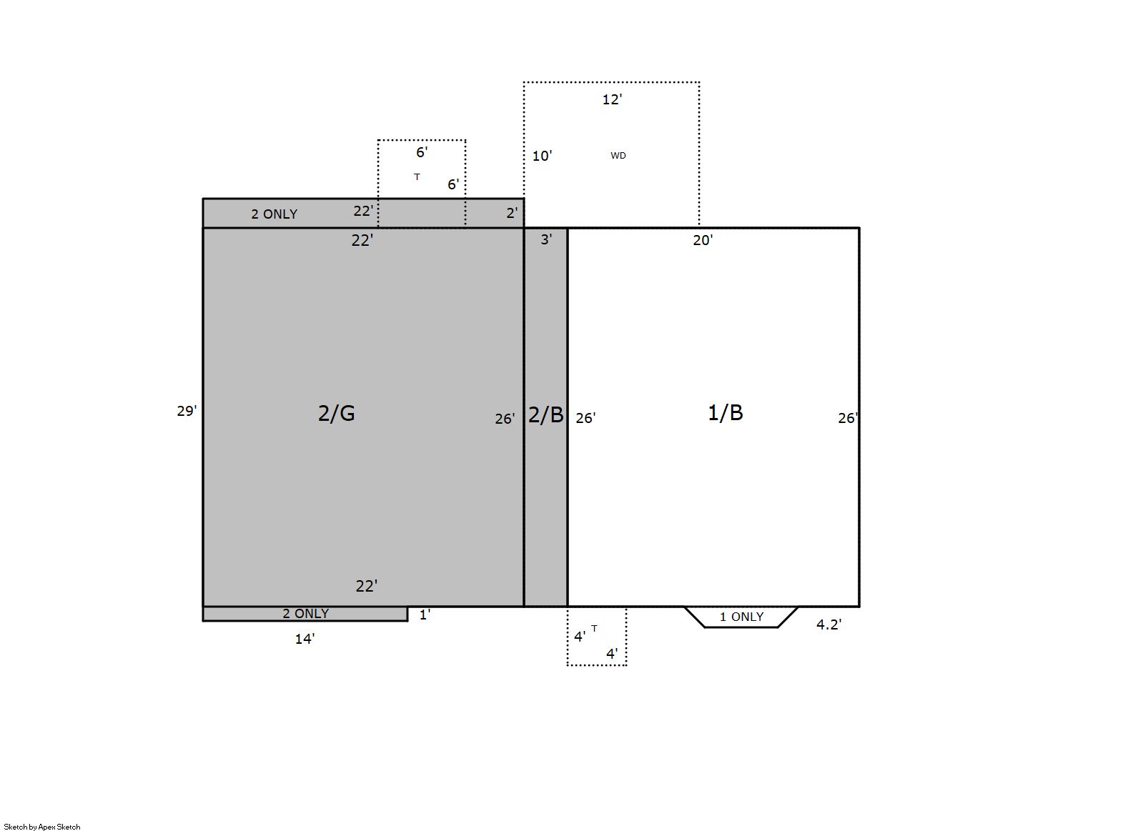
Building 1
| AccountNo | Building ID | Occupancy |
|---|---|---|
| R6886397 | 1 | Single Family Residential |
| ID | Type | NBHD | Occupancy | % Complete | Bedrooms | Baths |
|---|---|---|---|---|---|---|
| 1 | Residential | 2G3011 | Single Family Residential | 100 | 4 | 3.00 |
| ID | Exterior | Roof Cover | Interior | HVAC | Perimeter | Units | Unit Type | Make |
|---|---|---|---|---|---|---|---|---|
| 1 | Frame Hardboard | Composition Shingle | Drywall | Central Air to Air | 201 | 0 | NA | NA |
| ID | Square Ft | Condo SF | Total Basement SF | Finished Basement SF | Garage SF | Carport SF | Balcony SF | Porch SF |
|---|---|---|---|---|---|---|---|---|
| 1 | 1,237 | 0 | 598 | 598 | 572 | 0 | 0 | 120 |
| ID | Built As | Square Ft | Year Built | Stories | Length | Width |
|---|---|---|---|---|---|---|
| 1.00 | Split Level | 1,237 | 1998 | 2 | 0 | 0 |
| ID | Detail Type | Description | Units |
|---|---|---|---|
| 1 | Basement | Finished | 598.00 |
| 1 | Basement | Total Basement SF | 598.00 |
| 1 | Fixture | Full Bath | 3.00 |
| 1 | Garage | Built In | 572.00 |
| 1 | Porch | Open Slab | 52.00 |
| 1 | Porch | Wood Deck | 120.00 |
| Account | Parcel | Account Type | Tax Year | Buildings | Actual Value | Local Govt Assessed Value | School Assessed Value |
|---|---|---|---|---|---|---|---|
| R6886397 | 095903127005 | Residential | 2026 | 1 | 385,609 | 24,100 | 27,180 |
| Type | Code | Description | Actual Value | Local Govt Assessed Value | School Assessed Value | Acres | Land SqFt |
|---|---|---|---|---|---|---|---|
| Improvement | 1212 | SINGLE FAMILY RESIDENTIAL IMPROVEMENTS | 300,609 | 18,790 | 21,190 | 0.000 | 0 |
| Land | 1112 | SINGLE FAMILY RESIDENTIAL-LAND | 85,000 | 5,310 | 5,990 | 0.170 | 7,434 |
| Totals | - | - | 385,609 | 24,100 | 27,180 | 0.170 | 7,434 |
Comparable sales for your Residential or Commercial property may be found using our SALES SEARCH TOOL
Values are updated annually on May 1st for Real Property and June 15th for Personal Property and Oil and Gas.
| Account | Parcel | Account Type | Tax Year | Buildings | Actual Value | Local Govt Assessed Value | School Assessed Value |
|---|---|---|---|---|---|---|---|
| R6886397 | 095903127005 | Residential | 2026 | 1 | 385,609 | 24,100 | 27,180 |
| Tax Area | District ID | District Name | Local Govt Mill Levy |
School Mill Levy |
Estimated Taxes |
|---|---|---|---|---|---|
| 0600 | 0700 | AIMS JUNIOR COLLEGE | 6.313 | 0.000 | $152.14 |
| 0600 | 0411 | GREELEY CITY | 11.274 | 0.000 | $271.70 |
| 0600 | 1050 | HIGH PLAINS LIBRARY | 3.044 | 0.000 | $73.36 |
| 0600 | 0301 | NORTHERN COLORADO WATER (NCW) | 1.000 | 0.000 | $24.10 |
| 0600 | 0206 | SCHOOL DIST 6-GREELEY | 0.000 | 47.615 | $1,294.18 |
| 0600 | 0100 | WELD COUNTY | 15.956 | 0.000 | $384.54 |
| Total | - | - | 37.587 | 47.615 | $2,200.02 |
The estimate of tax is based on the prior year mill levy and the 2025 projected assessment rates. Mill levies and tax estimates will be updated yearly on December 22nd for the current year. Additional information can be found at https://assessor.weld.gov


