Account: R6887097

April 4, 2026

Account Parcel Account Type Tax Year Buildings Actual Value Local Govt Assessed Value School Assessed Value
R6887097 095903128005 Residential 2026 1 431,661 26,980 30,430

Legal
GR 8WBW L5 BLK2 WEBER WEST 8TH REPLAT

Subdivision Block Lot Land Economic Area
WEBER WEST 8TH RPLT 2 5 WEBER WEST

Property Address Property City Section Township Range
5017 2ND STREET RD GREELEY 03 05 66




Account Parcel Account Type Tax Year Buildings Actual Value Local Govt Assessed Value School Assessed Value
R6887097 095903128005 Residential 2026 1 431,661 26,980 30,430

Account Owner Name Address
R6887097 GARCIA ALEJANDRO 5017 W 2ND STREET RD GREELEY, CO 806344737
R6887097 GARCIA YOLANDA


Account Parcel Account Type Tax Year Buildings Actual Value Local Govt Assessed Value School Assessed Value
R6887097 095903128005 Residential 2026 1 431,661 26,980 30,430

Reception Rec Date Type Grantor Grantee Doc Fee Sale Date Sale Price
2384221 04-18-1994 WDN 0.00 01-01-1900 0
2524504 NA SUB SUBDIVISION WEBER WEST 8TH RPLT 0.00 NA 0
2545104 04-28-1997 WD PRO LAND LLC WEBER RICHARD D 69.80 04-14-1997 698,000
2545115 04-28-1997 PRD WEBER RICHARD D WEIDENKELLER & SON CONSTRUCTIO 7.50 04-17-1997 75,000
2605022 04-08-1998 WD WEIDENKELLER & SON CONSTRUCTIO SMREKAR JAY J & NATASCHA M 12.80 04-03-1998 128,000
3019653 12-31-2002 WD SMREKAR JAY J & NATASCHA M GARCIA ALEJANDRO & YOLANDA 17.50 12-30-2002 175,000



Account Parcel Account Type Tax Year Buildings Actual Value Local Govt Assessed Value School Assessed Value
R6887097 095903128005 Residential 2026 1 431,661 26,980 30,430

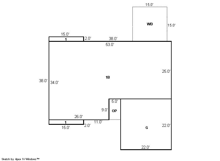
Building 1

AccountNo Building ID Occupancy
R6887097 1 Single Family Residential


ID Type NBHD Occupancy % Complete Bedrooms Baths
1 Residential 2G3011 Single Family Residential 100 3 2.00


ID Exterior Roof Cover Interior HVAC Perimeter Units Unit Type Make
1 Frame Hardboard Composition Shingle Drywall Central Air to Air 0 0 NA NA


ID Square Ft Condo SF Total Basement SF Finished Basement SF Garage SF Carport SF Balcony SF Porch SF
1 1,619 0 1,559 0 484 0 0 225


Built As Details for Building 1
ID Built As Square Ft Year Built Stories Length Width
1.00 Ranch 1 Story 1,619 1998 1 0 0


Additional Details for Building 1
ID Detail Type Description Units
1 Basement Total Basement SF 1559.00
1 Fixture Full Bath 2.00
1 Garage Attached 484.00
1 Porch Slab Roof Ceil 45.00
1 Porch Wood Deck 225.00
1 Rough In Rough In 1.00





Account Parcel Account Type Tax Year Buildings Actual Value Local Govt Assessed Value School Assessed Value
R6887097 095903128005 Residential 2026 1 431,661 26,980 30,430

Type Code Description Actual Value Local Govt Assessed Value School Assessed Value Acres Land SqFt
Improvement 1212 SINGLE FAMILY RESIDENTIAL IMPROVEMENTS 346,661 21,670 24,440 0.000 0
Land 1112 SINGLE FAMILY RESIDENTIAL-LAND 85,000 5,310 5,990 0.160 7,084
Totals - - 431,661 26,980 30,430 0.160 7,084


Account Parcel Account Type Tax Year Buildings Actual Value Local Govt Assessed Value School Assessed Value
R6887097 095903128005 Residential 2026 1 431,661 26,980 30,430

Tax Area District ID District Name Local Govt
Mill Levy
School
Mill Levy
Estimated
Taxes
0600 0700 AIMS JUNIOR COLLEGE 6.313 0.000 $170.32
0600 0411 GREELEY CITY 11.274 0.000 $304.17
0600 1050 HIGH PLAINS LIBRARY 3.044 0.000 $82.13
0600 0301 NORTHERN COLORADO WATER (NCW) 1.000 0.000 $26.98
0600 0206 SCHOOL DIST 6-GREELEY 0.000 47.615 $1,448.92
0600 0100 WELD COUNTY 15.956 0.000 $430.49
Total - - 37.587 47.615 $2,463.02


The estimate of tax is based on the prior year mill levy and the 2025 projected assessment rates. Mill levies and tax estimates will be updated yearly on December 22nd for the current year. Additional information can be found at https://assessor.weld.gov










Select Reports to Print: