Account: R6888497
April 4, 2026
| Account | Parcel | Account Type | Tax Year | Buildings | Actual Value | Local Govt Assessed Value | School Assessed Value |
|---|---|---|---|---|---|---|---|
| R6888497 | 095903129012 | Residential | 2026 | 1 | 394,404 | 24,650 | 27,800 |
| Legal |
|---|
| GR 8WBW L12 BLK3 WEBER WEST 8TH RPLT |
| Subdivision | Block | Lot | Land Economic Area |
|---|---|---|---|
| WEBER WEST 8TH RPLT | 3 | 12 | WEBER WEST |
| Property Address | Property City | Section | Township | Range |
|---|---|---|---|---|
| 5045 W 3RD STREET RD | GREELEY | 03 | 05 | 66 |
| Account | Parcel | Account Type | Tax Year | Buildings | Actual Value | Local Govt Assessed Value | School Assessed Value |
|---|---|---|---|---|---|---|---|
| R6888497 | 095903129012 | Residential | 2026 | 1 | 394,404 | 24,650 | 27,800 |
| Account | Owner Name | Address |
|---|---|---|
| R6888497 | VELASQUEZ AUGUSTIN | 5045 W 3RD STREET RD GREELEY, CO 806344731 |
| R6888497 | PLASENCIA MARIA DEJESUS HERNANDEZ |
| Account | Parcel | Account Type | Tax Year | Buildings | Actual Value | Local Govt Assessed Value | School Assessed Value |
|---|---|---|---|---|---|---|---|
| R6888497 | 095903129012 | Residential | 2026 | 1 | 394,404 | 24,650 | 27,800 |
| Reception | Rec Date | Type | Grantor | Grantee | Doc Fee | Sale Date | Sale Price |
|---|---|---|---|---|---|---|---|
| 2384221 | 04-18-1994 | WDN | 0.00 | 01-01-1900 | 0 | ||
| 2524504 | NA | SUB | SUBDIVISION | WEBER WEST 8TH RPLT | 0.00 | NA | 0 |
| 2545105 | 04-28-1997 | WDN | PRO LAND LLC | WEBER GERALDINE D | 0.00 | 04-14-1997 | 0 |
| 2552835 | 06-12-1997 | WD | WEBER GERALDINE D | SCHNEIDER GARY | 2.50 | 06-11-1997 | 25,000 |
| 2570718 | 09-24-1997 | WD | SCHNEIDER GARY | BATES TIM P | 5.40 | 09-23-1997 | 54,000 |
| 2612084 | 05-11-1998 | WD | BATES TIM P | BETZ NORMAN W & | 12.29 | 05-08-1998 | 122,900 |
| 2768017 | 05-15-2000 | QCN | BETZ NORMAN W & GRAFF DANIELLE R | BETZ NORMAN W | 0.00 | 05-04-2000 | 0 |
| 3342638 | 11-28-2005 | WD | BETZ NORMAN W | BETZ CHRISTINE A | 15.50 | 11-22-2005 | 155,000 |
| 3668739 | 01-06-2010 | WD | BETZ CHRISTINES A | BETZ DENNIS L | 13.75 | 12-29-2009 | 137,500 |
| 4502730 | 07-02-2019 | WD | BETZ DENNIS L; BETZ LAURA A | PLASCENCIA ROBERTO | 24.50 | 07-01-2019 | 245,000 |
| 4734760 | 07-12-2021 | QCN | PLASCENCIA ROBERTO | VELASQUEZ AUGUSTIN; PLASENCIA MARIA DEJESUS HERNANDEZ | 0.00 | 07-12-2021 | 0 |
*If the hyperlink for the reception number does not work, try a manual search in the Clerk and Recorder records. Use the Grantor or Grantee in your search.
| Account | Parcel | Account Type | Tax Year | Buildings | Actual Value | Local Govt Assessed Value | School Assessed Value |
|---|---|---|---|---|---|---|---|
| R6888497 | 095903129012 | Residential | 2026 | 1 | 394,404 | 24,650 | 27,800 |
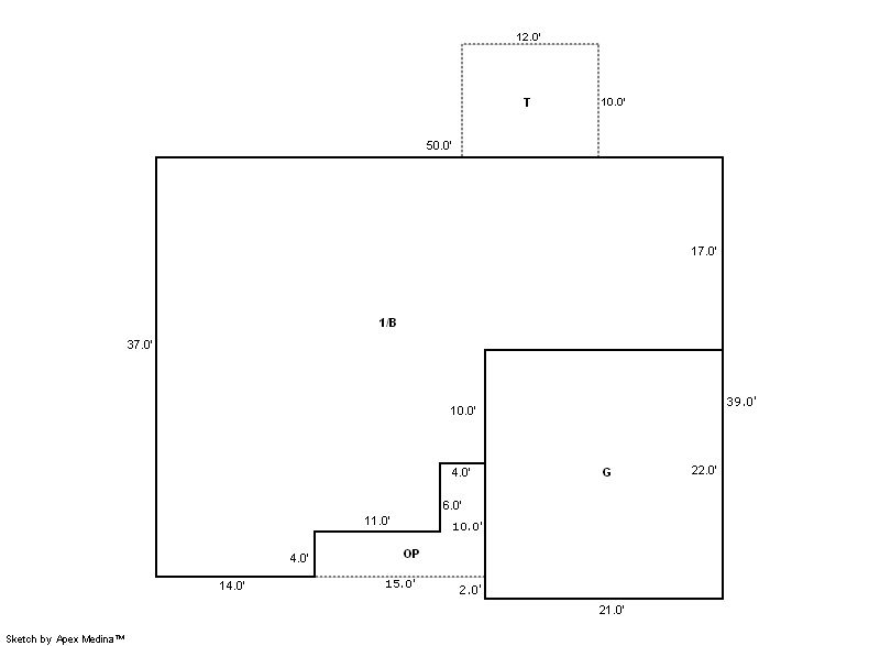
Building 1
| AccountNo | Building ID | Occupancy |
|---|---|---|
| R6888497 | 1 | Single Family Residential |
| ID | Type | NBHD | Occupancy | % Complete | Bedrooms | Baths |
|---|---|---|---|---|---|---|
| 1 | Residential | 2G3011 | Single Family Residential | 100 | 3 | 2.00 |
| ID | Exterior | Roof Cover | Interior | HVAC | Perimeter | Units | Unit Type | Make |
|---|---|---|---|---|---|---|---|---|
| 1 | Frame Vinyl | Composition Shingle | Drywall | Forced Air | 0 | 0 | NA | NA |
| ID | Square Ft | Condo SF | Total Basement SF | Finished Basement SF | Garage SF | Carport SF | Balcony SF | Porch SF |
|---|---|---|---|---|---|---|---|---|
| 1 | 1,346 | 0 | 1,346 | 0 | 462 | 0 | 0 | 120 |
| ID | Built As | Square Ft | Year Built | Stories | Length | Width |
|---|---|---|---|---|---|---|
| 1.00 | Ranch 1 Story | 1,346 | 1998 | 1 | 0 | 0 |
| ID | Detail Type | Description | Units |
|---|---|---|---|
| 1 | Basement | Total Basement SF | 1346.00 |
| 1 | Fixture | Full Bath | 2.00 |
| 1 | Garage | Attached | 462.00 |
| 1 | Porch | Open Slab | 120.00 |
| 1 | Porch | Slab Roof Ceil | 84.00 |
| 1 | Rough In | Rough In | 1.00 |
| Account | Parcel | Account Type | Tax Year | Buildings | Actual Value | Local Govt Assessed Value | School Assessed Value |
|---|---|---|---|---|---|---|---|
| R6888497 | 095903129012 | Residential | 2026 | 1 | 394,404 | 24,650 | 27,800 |
| Type | Code | Description | Actual Value | Local Govt Assessed Value | School Assessed Value | Acres | Land SqFt |
|---|---|---|---|---|---|---|---|
| Improvement | 1212 | SINGLE FAMILY RESIDENTIAL IMPROVEMENTS | 309,404 | 19,340 | 21,810 | 0.000 | 0 |
| Land | 1112 | SINGLE FAMILY RESIDENTIAL-LAND | 85,000 | 5,310 | 5,990 | 0.170 | 7,480 |
| Totals | - | - | 394,404 | 24,650 | 27,800 | 0.170 | 7,480 |
Comparable sales for your Residential or Commercial property may be found using our SALES SEARCH TOOL
Values are updated annually on May 1st for Real Property and June 15th for Personal Property and Oil and Gas.
| Account | Parcel | Account Type | Tax Year | Buildings | Actual Value | Local Govt Assessed Value | School Assessed Value |
|---|---|---|---|---|---|---|---|
| R6888497 | 095903129012 | Residential | 2026 | 1 | 394,404 | 24,650 | 27,800 |
| Tax Area | District ID | District Name | Local Govt Mill Levy |
School Mill Levy |
Estimated Taxes |
|---|---|---|---|---|---|
| 0600 | 0700 | AIMS JUNIOR COLLEGE | 6.313 | 0.000 | $155.62 |
| 0600 | 0411 | GREELEY CITY | 11.274 | 0.000 | $277.90 |
| 0600 | 1050 | HIGH PLAINS LIBRARY | 3.044 | 0.000 | $75.03 |
| 0600 | 0301 | NORTHERN COLORADO WATER (NCW) | 1.000 | 0.000 | $24.65 |
| 0600 | 0206 | SCHOOL DIST 6-GREELEY | 0.000 | 47.615 | $1,323.70 |
| 0600 | 0100 | WELD COUNTY | 15.956 | 0.000 | $393.32 |
| Total | - | - | 37.587 | 47.615 | $2,250.22 |
The estimate of tax is based on the prior year mill levy and the 2025 projected assessment rates. Mill levies and tax estimates will be updated yearly on December 22nd for the current year. Additional information can be found at https://assessor.weld.gov



