Account: R6889397
April 4, 2026
| Account | Parcel | Account Type | Tax Year | Buildings | Actual Value | Local Govt Assessed Value | School Assessed Value |
|---|---|---|---|---|---|---|---|
| R6889397 | 095903130007 | Residential | 2026 | 1 | 417,884 | 26,120 | 29,460 |
| Legal |
|---|
| GR 8WBW L7 BLK4 WEBER WEST 8TH REPLAT |
| Subdivision | Block | Lot | Land Economic Area |
|---|---|---|---|
| WEBER WEST 8TH RPLT | 4 | 7 | WEBER WEST |
| Property Address | Property City | Section | Township | Range |
|---|---|---|---|---|
| 4987 W 3RD STREET RD | GREELEY | 03 | 05 | 66 |
| Account | Parcel | Account Type | Tax Year | Buildings | Actual Value | Local Govt Assessed Value | School Assessed Value |
|---|---|---|---|---|---|---|---|
| R6889397 | 095903130007 | Residential | 2026 | 1 | 417,884 | 26,120 | 29,460 |
| Account | Owner Name | Address |
|---|---|---|
| R6889397 | CRAIN ALISSA | 4987 W 3RD STREET RD GREELEY, CO 806344732 |
| Account | Parcel | Account Type | Tax Year | Buildings | Actual Value | Local Govt Assessed Value | School Assessed Value |
|---|---|---|---|---|---|---|---|
| R6889397 | 095903130007 | Residential | 2026 | 1 | 417,884 | 26,120 | 29,460 |
| Reception | Rec Date | Type | Grantor | Grantee | Doc Fee | Sale Date | Sale Price |
|---|---|---|---|---|---|---|---|
| 2384221 | 04-18-1994 | WDN | 0.00 | 01-01-1900 | 0 | ||
| 2524504 | NA | SUB | SUBDIVISION | WEBER WEST 8TH RPLT | 0.00 | NA | 0 |
| 2545104 | 04-28-1997 | WD | PRO LAND LLC | WEBER RICHARD D | 69.80 | 04-14-1997 | 698,000 |
| 2545118 | 04-28-1997 | PRD | WEBER RICHARD D | FOUST CONSTRUCTION CO INC | 20.00 | 04-21-1997 | 200,000 |
| 2650837 | 11-02-1998 | WD | FOUST CONSTRUCTION CO INC | WESTPHAL BRANDON B & KATHERINE | 14.84 | 10-29-1998 | 148,400 |
| 2866441 | 07-18-2001 | WD | WESTPHAL BRANDON B & KATHERINE J | NIX GYLE D | 17.65 | 07-16-2001 | 176,500 |
| 3342185 | 11-22-2005 | SWDN | SECRETARY OF VETERANS AFFAIRS | BROWN SHAD M | 0.00 | 11-14-2005 | 0 |
| 3693527 | 05-17-2010 | WD | BROWN SHAD M | FLORES FABIAN R | 17.00 | 05-03-2010 | 170,000 |
| 4006279 | 04-02-2014 | WDE | FLORES FABIAN R | PLATE RYAN | 20.99 | 03-31-2014 | 209,900 |
| 4749931 | 08-26-2021 | SWD | PLATE RYAN | CRAIN ALISSA | 39.50 | 08-20-2021 | 395,000 |
*If the hyperlink for the reception number does not work, try a manual search in the Clerk and Recorder records. Use the Grantor or Grantee in your search.
| Account | Parcel | Account Type | Tax Year | Buildings | Actual Value | Local Govt Assessed Value | School Assessed Value |
|---|---|---|---|---|---|---|---|
| R6889397 | 095903130007 | Residential | 2026 | 1 | 417,884 | 26,120 | 29,460 |
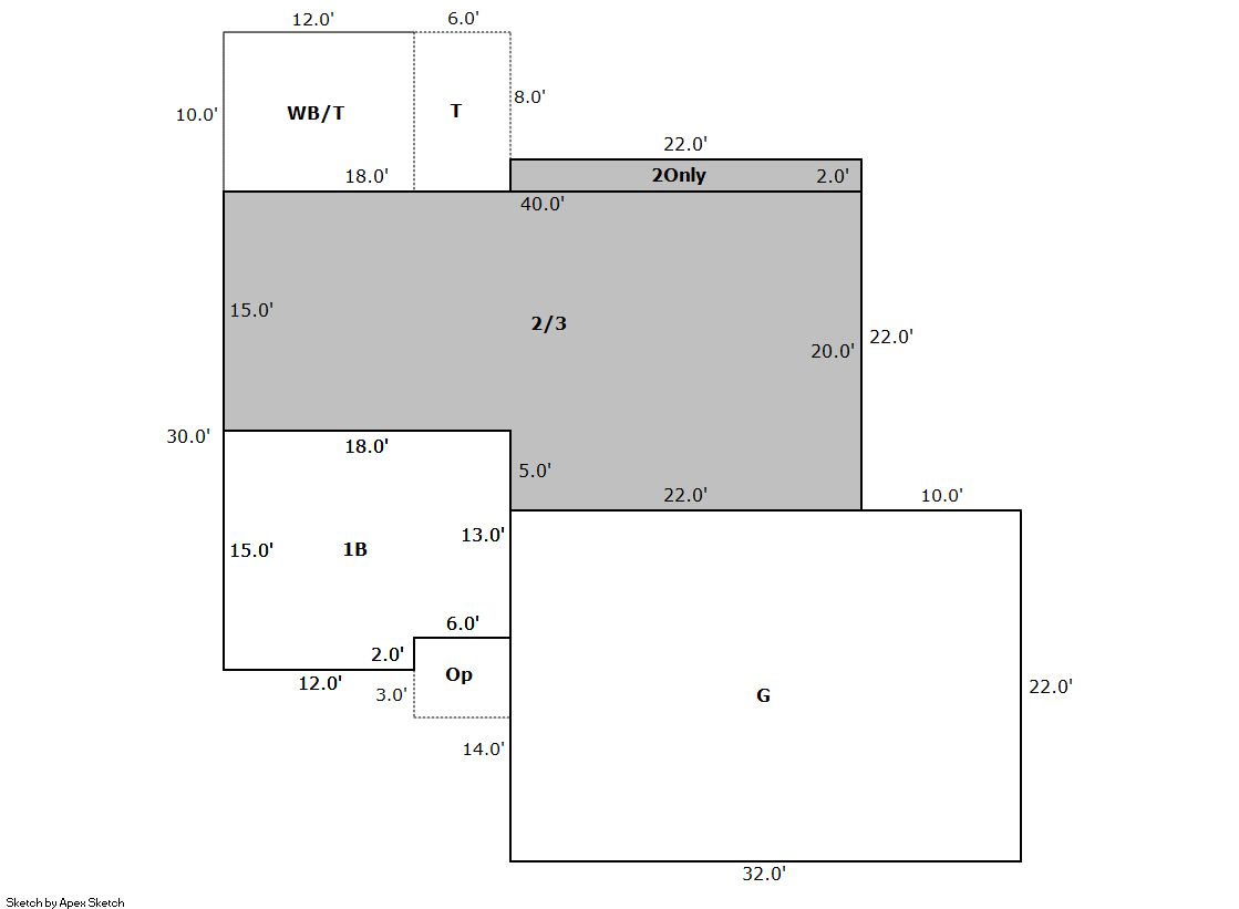
Building 1
| AccountNo | Building ID | Occupancy |
|---|---|---|
| R6889397 | 1 | Single Family Residential |
| ID | Type | NBHD | Occupancy | % Complete | Bedrooms | Baths |
|---|---|---|---|---|---|---|
| 1 | Residential | 2G3011 | Single Family Residential | 100 | 4 | 3.00 |
| ID | Exterior | Roof Cover | Interior | HVAC | Perimeter | Units | Unit Type | Make |
|---|---|---|---|---|---|---|---|---|
| 1 | Frame Siding | Composition Shingle | Drywall | Central Air to Air | 0 | 0 | NA | NA |
| ID | Square Ft | Condo SF | Total Basement SF | Finished Basement SF | Garage SF | Carport SF | Balcony SF | Porch SF |
|---|---|---|---|---|---|---|---|---|
| 1 | 1,722 | 0 | 258 | 258 | 704 | 0 | 120 | 180 |
| ID | Built As | Square Ft | Year Built | Stories | Length | Width |
|---|---|---|---|---|---|---|
| 1.00 | Split Level | 1,722 | 1998 | 3 | 0 | 0 |
| ID | Detail Type | Description | Units |
|---|---|---|---|
| 1 | Balcony | Wood Wood Fin | 120.00 |
| 1 | Basement | Finished | 258.00 |
| 1 | Basement | Total Basement SF | 258.00 |
| 1 | Fixture | Full Bath | 3.00 |
| 1 | Garage | Attached | 704.00 |
| 1 | Porch | Open Slab | 180.00 |
| 1 | Porch | Slab Roof Ceil | 30.00 |
| Account | Parcel | Account Type | Tax Year | Buildings | Actual Value | Local Govt Assessed Value | School Assessed Value |
|---|---|---|---|---|---|---|---|
| R6889397 | 095903130007 | Residential | 2026 | 1 | 417,884 | 26,120 | 29,460 |
| Type | Code | Description | Actual Value | Local Govt Assessed Value | School Assessed Value | Acres | Land SqFt |
|---|---|---|---|---|---|---|---|
| Improvement | 1212 | SINGLE FAMILY RESIDENTIAL IMPROVEMENTS | 332,884 | 20,810 | 23,470 | 0.000 | 0 |
| Land | 1112 | SINGLE FAMILY RESIDENTIAL-LAND | 85,000 | 5,310 | 5,990 | 0.170 | 7,370 |
| Totals | - | - | 417,884 | 26,120 | 29,460 | 0.170 | 7,370 |
Comparable sales for your Residential or Commercial property may be found using our SALES SEARCH TOOL
Values are updated annually on May 1st for Real Property and June 15th for Personal Property and Oil and Gas.
| Account | Parcel | Account Type | Tax Year | Buildings | Actual Value | Local Govt Assessed Value | School Assessed Value |
|---|---|---|---|---|---|---|---|
| R6889397 | 095903130007 | Residential | 2026 | 1 | 417,884 | 26,120 | 29,460 |
| Tax Area | District ID | District Name | Local Govt Mill Levy |
School Mill Levy |
Estimated Taxes |
|---|---|---|---|---|---|
| 0600 | 0700 | AIMS JUNIOR COLLEGE | 6.313 | 0.000 | $164.90 |
| 0600 | 0411 | GREELEY CITY | 11.274 | 0.000 | $294.48 |
| 0600 | 1050 | HIGH PLAINS LIBRARY | 3.044 | 0.000 | $79.51 |
| 0600 | 0301 | NORTHERN COLORADO WATER (NCW) | 1.000 | 0.000 | $26.12 |
| 0600 | 0206 | SCHOOL DIST 6-GREELEY | 0.000 | 47.615 | $1,402.74 |
| 0600 | 0100 | WELD COUNTY | 15.956 | 0.000 | $416.77 |
| Total | - | - | 37.587 | 47.615 | $2,384.51 |
The estimate of tax is based on the prior year mill levy and the 2025 projected assessment rates. Mill levies and tax estimates will be updated yearly on December 22nd for the current year. Additional information can be found at https://assessor.weld.gov



