Account: R6889897

April 5, 2026

Account Parcel Account Type Tax Year Buildings Actual Value Local Govt Assessed Value School Assessed Value
R6889897 095903131004 Residential 2026 1 453,778 28,360 31,990

Legal
GR 8WBW L4 BLK5 WEBER WEST 8TH REPLAT

Subdivision Block Lot Land Economic Area
WEBER WEST 8TH RPLT 5 4 WEBER WEST

Property Address Property City Section Township Range
4969 W 2ND STREET RD GREELEY 03 05 66




Account Parcel Account Type Tax Year Buildings Actual Value Local Govt Assessed Value School Assessed Value
R6889897 095903131004 Residential 2026 1 453,778 28,360 31,990

Account Owner Name Address
R6889897 WULF TROY A 4969 W 2ND STREET RD GREELEY, CO 806344734
R6889897 WULF JAMI S


Account Parcel Account Type Tax Year Buildings Actual Value Local Govt Assessed Value School Assessed Value
R6889897 095903131004 Residential 2026 1 453,778 28,360 31,990

Reception Rec Date Type Grantor Grantee Doc Fee Sale Date Sale Price
2384221 04-18-1994 WDN 0.00 01-01-1900 0
2524504 NA SUB SUBDIVISION WEBER WEST 8TH RPLT 0.00 NA 0
2545107 04-28-1997 WDN PRO LAND LLC RENFROE JACK P 0.00 04-16-1997 0
2633575 08-17-1998 WD RENFROE JACK P HASTINGS HOMES LLC 2.65 08-12-1998 26,500
2633576 08-17-1998 WD HASTINGS HOMES LLC MURRAY DONALD N & DEBRA D 12.98 08-14-1998 129,800
2720460 09-14-1999 QCN MURRAY DONALD N & DEBRA D MURRAY DEBRA D 0.00 07-26-1999 0
2748697 02-08-2000 QCN MURRAY DEBRA D MURRAY DONALD N AKA DONALD NEIL 0.00 01-28-2000 0
3384479 05-03-2006 WD MURRAY DONALD N AKA DONALD NEIL WULF TROY A & 16.75 04-28-2006 167,500
3633766 07-01-2009 QCN WULF TROY A & WULF JAMI S WULF TROY A 0.00 06-25-2009 0
3633768 07-01-2009 QCN WULF TROY A WULF TROY A & WULF JAMI S 0.00 06-25-2009 0



Account Parcel Account Type Tax Year Buildings Actual Value Local Govt Assessed Value School Assessed Value
R6889897 095903131004 Residential 2026 1 453,778 28,360 31,990

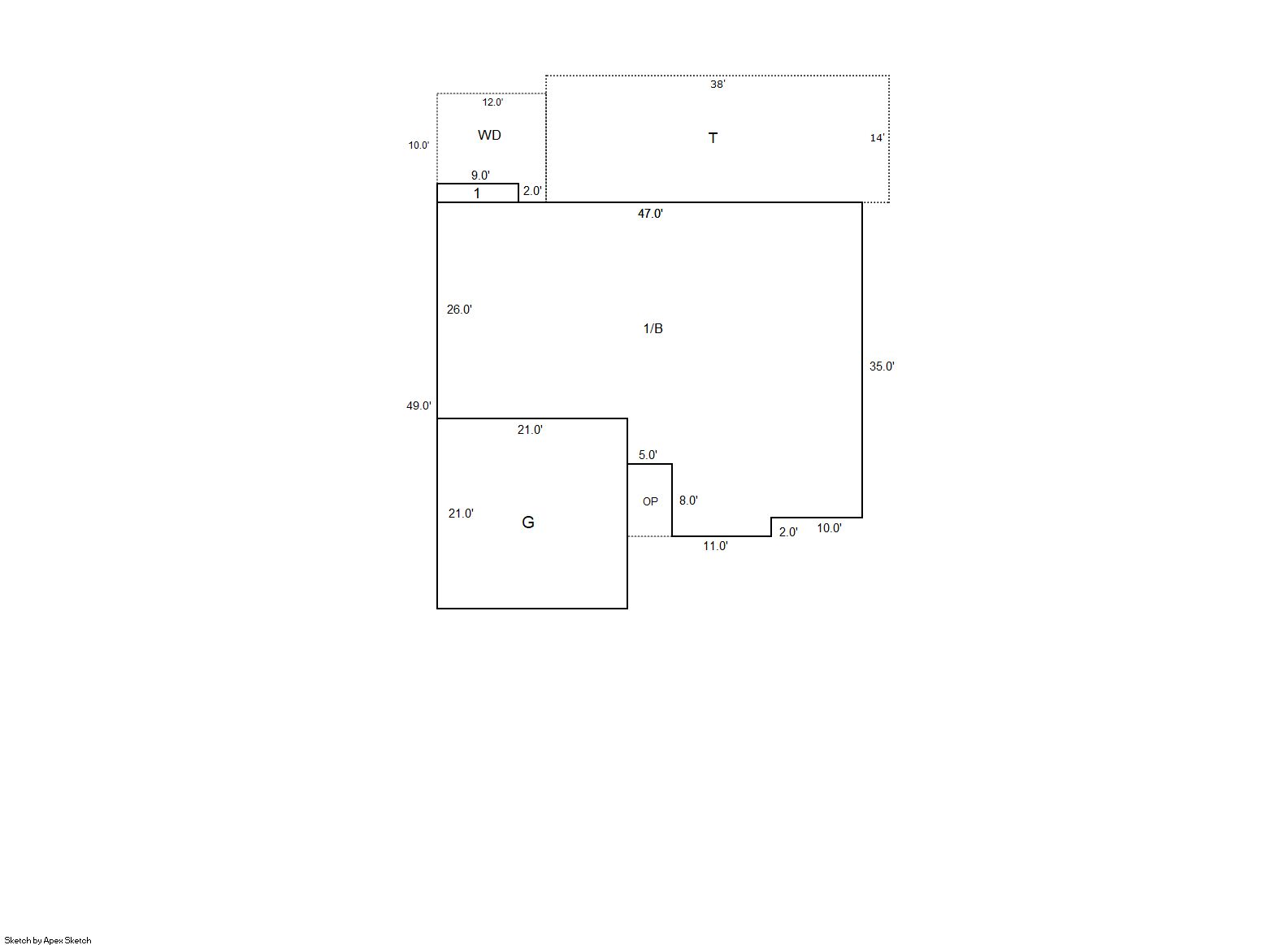
Building 1

AccountNo Building ID Occupancy
R6889897 1 Single Family Residential


ID Type NBHD Occupancy % Complete Bedrooms Baths
1 Residential 2G3011 Single Family Residential 100 4 3.00


ID Exterior Roof Cover Interior HVAC Perimeter Units Unit Type Make
1 Frame Vinyl Composition Shingle Drywall Forced Air 172 0 NA NA


ID Square Ft Condo SF Total Basement SF Finished Basement SF Garage SF Carport SF Balcony SF Porch SF
1 1,424 0 1,406 1,406 441 0 0 40


Built As Details for Building 1
ID Built As Square Ft Year Built Stories Length Width
1.00 Ranch 1 Story 1,424 1998 1 0 0


Additional Details for Building 1
ID Detail Type Description Units
1 Add On Fireplace Gas 1.00
1 Basement Finished 1406.00
1 Basement Total Basement SF 1406.00
1 Fixture Full Bath 3.00
1 Garage Attached 441.00
1 Porch Open Slab 532.00
1 Porch Slab Roof Ceil 40.00
1 Porch Wood Deck 126.00





Account Parcel Account Type Tax Year Buildings Actual Value Local Govt Assessed Value School Assessed Value
R6889897 095903131004 Residential 2026 1 453,778 28,360 31,990

Type Code Description Actual Value Local Govt Assessed Value School Assessed Value Acres Land SqFt
Improvement 1212 SINGLE FAMILY RESIDENTIAL IMPROVEMENTS 368,778 23,050 26,000 0.000 0
Land 1112 SINGLE FAMILY RESIDENTIAL-LAND 85,000 5,310 5,990 0.150 6,672
Totals - - 453,778 28,360 31,990 0.150 6,672


Account Parcel Account Type Tax Year Buildings Actual Value Local Govt Assessed Value School Assessed Value
R6889897 095903131004 Residential 2026 1 453,778 28,360 31,990

Tax Area District ID District Name Local Govt
Mill Levy
School
Mill Levy
Estimated
Taxes
0600 0700 AIMS JUNIOR COLLEGE 6.313 0.000 $179.04
0600 0411 GREELEY CITY 11.274 0.000 $319.73
0600 1050 HIGH PLAINS LIBRARY 3.044 0.000 $86.33
0600 0301 NORTHERN COLORADO WATER (NCW) 1.000 0.000 $28.36
0600 0206 SCHOOL DIST 6-GREELEY 0.000 47.615 $1,523.20
0600 0100 WELD COUNTY 15.956 0.000 $452.51
Total - - 37.587 47.615 $2,589.17


The estimate of tax is based on the prior year mill levy and the 2025 projected assessment rates. Mill levies and tax estimates will be updated yearly on December 22nd for the current year. Additional information can be found at https://assessor.weld.gov










Select Reports to Print: