Account: R6890997

April 5, 2026

Account Parcel Account Type Tax Year Buildings Actual Value Local Govt Assessed Value School Assessed Value
R6890997 095903131015 Residential 2026 1 428,552 26,780 30,210

Legal
GR 8WBW L15 BLK5 WEBER WEST 8TH REPLAT

Subdivision Block Lot Land Economic Area
WEBER WEST 8TH RPLT 5 15 WEBER WEST

Property Address Property City Section Township Range
380 49TH AVENUE PL GREELEY 03 05 66




Account Parcel Account Type Tax Year Buildings Actual Value Local Govt Assessed Value School Assessed Value
R6890997 095903131015 Residential 2026 1 428,552 26,780 30,210

Account Owner Name Address
R6890997 SOUTH ANDREW L 380 49TH AVENUE PL GREELEY, CO 806344733
R6890997 FAWCETT MARY A


Account Parcel Account Type Tax Year Buildings Actual Value Local Govt Assessed Value School Assessed Value
R6890997 095903131015 Residential 2026 1 428,552 26,780 30,210

Reception Rec Date Type Grantor Grantee Doc Fee Sale Date Sale Price
2384221 04-18-1994 WDN 0.00 01-01-1900 0
2524504 NA SUB SUBDIVISION WEBER WEST 8TH RPLT 0.00 NA 0
2545108 04-28-1997 WDN PRO LAND LLC RENFROE SCOTT 0.00 04-16-1997 0
2622772 06-29-1998 WD RENFROE SCOTT STROH GRANT L 2.80 06-22-1998 28,000
2622773 06-29-1998 WD STROH GRANT L KOMANICH KYLE & MICHELLE 12.20 06-26-1998 122,000
3307285 07-28-2005 WD KOMANICH KYLE & MICHELLE BASU CHHANDAK & 18.99 07-26-2005 189,900
3785019 08-08-2011 WD BASU CHHANDAK ENRIQUEZ FERNANDO 17.25 07-19-2011 172,500
4329983 08-24-2017 WD ENRIQUEZ FERNANDO MCLAUGHLIN INVESTMENTS LLC 26.20 08-24-2017 262,000
4569294 02-25-2020 WD MCLAUGHLIN INVESTMENTS LLC SOUTH ANDREW L; FAWCETT MARY A 32.92 02-14-2020 329,200



Account Parcel Account Type Tax Year Buildings Actual Value Local Govt Assessed Value School Assessed Value
R6890997 095903131015 Residential 2026 1 428,552 26,780 30,210

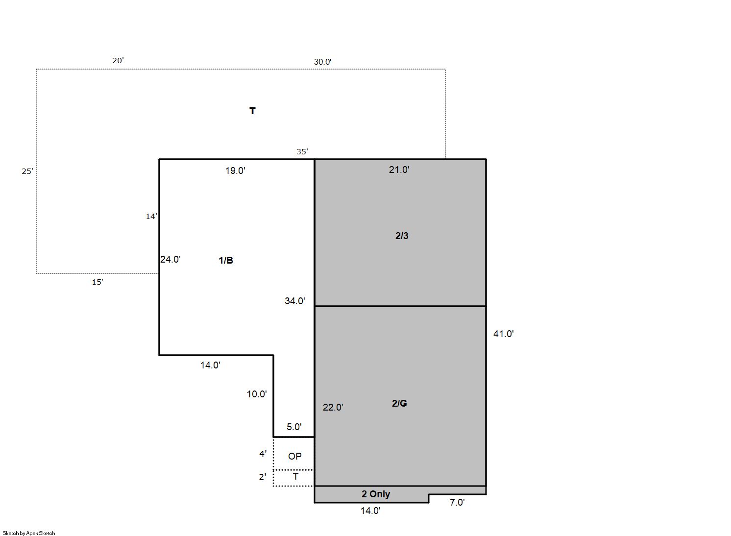
Building 1

AccountNo Building ID Occupancy
R6890997 1 Single Family Residential


ID Type NBHD Occupancy % Complete Bedrooms Baths
1 Residential 2G3011 Single Family Residential 100 4 3.00


ID Exterior Roof Cover Interior HVAC Perimeter Units Unit Type Make
1 Frame Hardboard Composition Shingle Drywall Central Air to Air 310 0 NA NA


ID Square Ft Condo SF Total Basement SF Finished Basement SF Garage SF Carport SF Balcony SF Porch SF
1 1,759 0 506 506 462 0 0 20


Built As Details for Building 1
ID Built As Square Ft Year Built Stories Length Width
1.00 Split Level 1,759 1998 3 0 0


Additional Details for Building 1
ID Detail Type Description Units
1 Basement Finished 506.00
1 Basement Total Basement SF 506.00
1 Fixture Full Bath 3.00
1 Garage Attached 462.00
1 Porch Open Slab 770.00
1 Porch Slab Roof Ceil 20.00





Account Parcel Account Type Tax Year Buildings Actual Value Local Govt Assessed Value School Assessed Value
R6890997 095903131015 Residential 2026 1 428,552 26,780 30,210

Type Code Description Actual Value Local Govt Assessed Value School Assessed Value Acres Land SqFt
Improvement 1212 SINGLE FAMILY RESIDENTIAL IMPROVEMENTS 343,552 21,470 24,220 0.000 0
Land 1112 SINGLE FAMILY RESIDENTIAL-LAND 85,000 5,310 5,990 0.230 9,937
Totals - - 428,552 26,780 30,210 0.230 9,937


Account Parcel Account Type Tax Year Buildings Actual Value Local Govt Assessed Value School Assessed Value
R6890997 095903131015 Residential 2026 1 428,552 26,780 30,210

Tax Area District ID District Name Local Govt
Mill Levy
School
Mill Levy
Estimated
Taxes
0600 0700 AIMS JUNIOR COLLEGE 6.313 0.000 $169.06
0600 0411 GREELEY CITY 11.274 0.000 $301.92
0600 1050 HIGH PLAINS LIBRARY 3.044 0.000 $81.52
0600 0301 NORTHERN COLORADO WATER (NCW) 1.000 0.000 $26.78
0600 0206 SCHOOL DIST 6-GREELEY 0.000 47.615 $1,438.45
0600 0100 WELD COUNTY 15.956 0.000 $427.30
Total - - 37.587 47.615 $2,445.03


The estimate of tax is based on the prior year mill levy and the 2025 projected assessment rates. Mill levies and tax estimates will be updated yearly on December 22nd for the current year. Additional information can be found at https://assessor.weld.gov










Select Reports to Print: