Account: R6893197

April 4, 2026

Account Parcel Account Type Tax Year Buildings Actual Value Local Govt Assessed Value School Assessed Value
R6893197 095903131037 Residential 2026 1 393,012 24,560 27,700

Legal
GR 8WBW L37 BLK5 WEBER WEST 8TH RPLT

Subdivision Block Lot Land Economic Area
WEBER WEST 8TH RPLT 5 37 WEBER WEST

Property Address Property City Section Township Range
365 50TH AVENUE CT GREELEY 03 05 66




Account Parcel Account Type Tax Year Buildings Actual Value Local Govt Assessed Value School Assessed Value
R6893197 095903131037 Residential 2026 1 393,012 24,560 27,700

Account Owner Name Address
R6893197 ARCHIBEQUE MICHAEL L 365 50TH AVENUE CT GREELEY, CO 806344729


Account Parcel Account Type Tax Year Buildings Actual Value Local Govt Assessed Value School Assessed Value
R6893197 095903131037 Residential 2026 1 393,012 24,560 27,700

Reception Rec Date Type Grantor Grantee Doc Fee Sale Date Sale Price
2384221 04-18-1994 WDN 0.00 01-01-1900 0
2524504 NA SUB SUBDIVISION WEBER WEST 8TH RPLT 0.00 NA 0
2545104 04-28-1997 WD PRO LAND LLC WEBER RICHARD D 69.80 04-14-1997 698,000
2545113 04-28-1997 PRD WEBER RICHARD D LOUISRAY LLC 9.40 04-17-1997 94,000
2577057 11-03-1997 WD LOUISRAY LLC PARKS JUNE DENISE HERRELL 12.06 10-31-1997 120,600
2791734 09-05-2000 WD PARKS JUNE DENISE HERRELL SIEBRANDS KELLY J 14.10 09-01-2000 141,000
2937136 03-27-2002 QCN SIEBRANDS KELLY J SIEBRANDS KELLY J & JYL R 0.00 03-22-2002 0
2950236 05-09-2002 QCN SIEBRANDS KELLY J & JYL R SIEBRANDS KELLY J & JYL R 0.00 03-22-2002 0
3010484 12-02-2002 WD SIEBRANDS KELLY J & JYL R SMITH TYLER & RACHELLE M 17.10 11-27-2002 171,000
3360657 02-06-2006 WD SMITH TYLER & HERDMAN SHARON K 18.00 01-30-2006 180,000
4220638 07-20-2016 WD HERDMAN SHARON K MCDONALD DARIN W 22.70 07-15-2016 227,000
4367113 01-12-2018 QCN MCDONALD DARIN W MCDONALD DARIN W; MCDONALD BARBARA 0.00 01-05-2018 0
4602727 06-26-2020 WD MCDONALD DARIN W; MCDONALD BARBARA ARCHIBEQUE MICHAEL L 31.50 06-18-2020 315,000



Account Parcel Account Type Tax Year Buildings Actual Value Local Govt Assessed Value School Assessed Value
R6893197 095903131037 Residential 2026 1 393,012 24,560 27,700

Building 1

AccountNo Building ID Occupancy
R6893197 1 Single Family Residential


ID Type NBHD Occupancy % Complete Bedrooms Baths
1 Residential 2G3011 Single Family Residential 100 3 2.00


ID Exterior Roof Cover Interior HVAC Perimeter Units Unit Type Make
1 Frame Hardboard Composition Shingle Drywall Central Air to Air 0 0 NA NA


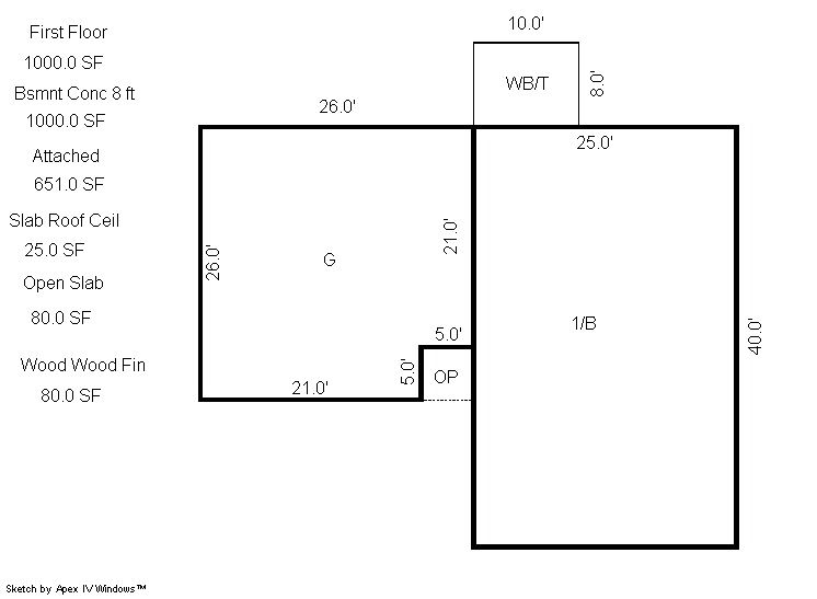
ID Square Ft Condo SF Total Basement SF Finished Basement SF Garage SF Carport SF Balcony SF Porch SF
1 1,000 0 1,000 1,000 651 0 80 25


Built As Details for Building 1
ID Built As Square Ft Year Built Stories Length Width
1.00 Bi Level 1,000 1998 1 0 0


Additional Details for Building 1
ID Detail Type Description Units
1 Balcony Wood Wood Fin 80.00
1 Basement Finished 1000.00
1 Basement Total Basement SF 1000.00
1 Fixture Full Bath 2.00
1 Garage Attached 651.00
1 Porch Open Slab 80.00
1 Porch Slab Roof Ceil 25.00





Account Parcel Account Type Tax Year Buildings Actual Value Local Govt Assessed Value School Assessed Value
R6893197 095903131037 Residential 2026 1 393,012 24,560 27,700

Type Code Description Actual Value Local Govt Assessed Value School Assessed Value Acres Land SqFt
Improvement 1212 SINGLE FAMILY RESIDENTIAL IMPROVEMENTS 308,012 19,250 21,710 0.000 0
Land 1112 SINGLE FAMILY RESIDENTIAL-LAND 85,000 5,310 5,990 0.160 7,075
Totals - - 393,012 24,560 27,700 0.160 7,075


Account Parcel Account Type Tax Year Buildings Actual Value Local Govt Assessed Value School Assessed Value
R6893197 095903131037 Residential 2026 1 393,012 24,560 27,700

Tax Area District ID District Name Local Govt
Mill Levy
School
Mill Levy
Estimated
Taxes
0600 0700 AIMS JUNIOR COLLEGE 6.313 0.000 $155.05
0600 0411 GREELEY CITY 11.274 0.000 $276.89
0600 1050 HIGH PLAINS LIBRARY 3.044 0.000 $74.76
0600 0301 NORTHERN COLORADO WATER (NCW) 1.000 0.000 $24.56
0600 0206 SCHOOL DIST 6-GREELEY 0.000 47.615 $1,318.94
0600 0100 WELD COUNTY 15.956 0.000 $391.88
Total - - 37.587 47.615 $2,242.07


The estimate of tax is based on the prior year mill levy and the 2025 projected assessment rates. Mill levies and tax estimates will be updated yearly on December 22nd for the current year. Additional information can be found at https://assessor.weld.gov










Select Reports to Print: