Account: R6966198

April 4, 2026

Account Parcel Account Type Tax Year Buildings Actual Value Local Govt Assessed Value School Assessed Value
R6966198 080721331073 Residential 2026 1 510,960 31,940 36,030

Legal
WIN 3GF L73 BLK2 GOVERNORS FARM 3RD =====

Subdivision Block Lot Land Economic Area
GOVERNORS FARM 3RD FG 2 73 GOVERNORS FARM

Property Address Property City Section Township Range
304 TUCKAWAY CT WINDSOR 21 06 67




Account Parcel Account Type Tax Year Buildings Actual Value Local Govt Assessed Value School Assessed Value
R6966198 080721331073 Residential 2026 1 510,960 31,940 36,030

Account Owner Name Address
R6966198 BLACKWELL PENNY J 304 TUCKAWAY CT WINDSOR, CO 805505749
R6966198 ECKHADT MELINDA J


Account Parcel Account Type Tax Year Buildings Actual Value Local Govt Assessed Value School Assessed Value
R6966198 080721331073 Residential 2026 1 510,960 31,940 36,030

Reception Rec Date Type Grantor Grantee Doc Fee Sale Date Sale Price
2463147 11-09-1995 QCN CLARKSON INVESTMENT LLC CLARKSON LAND LLC 0.00 09-27-1995 0
2507949 08-26-1996 WDN CLARKSON INVESTMENT LLC CLARKSON LAND, LLC 0.00 08-23-1996 0
2524678 NA SUB SUBDIVISION GOVERNORS FARM 3RD FG 0.00 NA 0
2594649 02-18-1998 WD CLARKSON LAND LLC BERNHARDT HOMES INC 9.00 02-13-1998 90,000
2616329 06-01-1998 WD BERNHARDT HOMES INC RAUSCH LLOYD R & BETTY J 13.84 05-29-1998 138,400
4795516 01-20-2022 AFFD RAUSCH BETTY J RAUSCH BETTY J 0.00 01-20-2022 0
4795517 01-20-2022 DTHC RAUSCH BETTY J RAUSCH LLOYD R 0.00 11-03-2021 0
4838892 06-30-2022 SWDE RAUSCH LLOYD R PARK ROBERT D; PARK JO ANNE E 54.00 06-22-2022 540,000
4916247 08-21-2023 QCN PARK ROBERT D; PARK JO ANNE E PARK ROBERT D; BLACKWELL PENNY J; ECKHADT MELINDA J 0.00 08-16-2023 0
5065285 11-13-2025 DTHC PARK ROBERT D BLACKWELL PENNY J; ECKHADT MELINDA J 0.00 08-09-2025 0



Account Parcel Account Type Tax Year Buildings Actual Value Local Govt Assessed Value School Assessed Value
R6966198 080721331073 Residential 2026 1 510,960 31,940 36,030

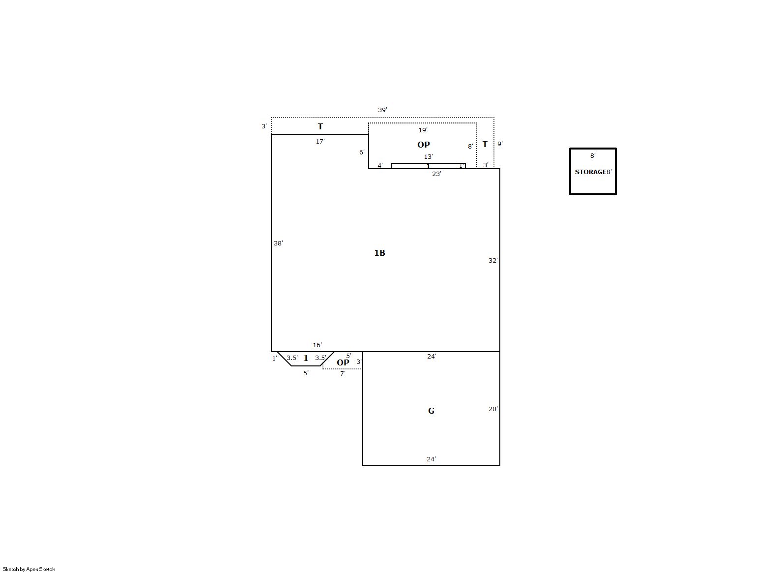
Building 1

AccountNo Building ID Occupancy
R6966198 1 Single Family Residential


ID Type NBHD Occupancy % Complete Bedrooms Baths
1 Residential 2W1005 Single Family Residential 100 4 3.00


ID Exterior Roof Cover Interior HVAC Perimeter Units Unit Type Make
1 Frame Hardboard Composition Shingle Drywall Central Air to Air 160 0 NA NA


ID Square Ft Condo SF Total Basement SF Finished Basement SF Garage SF Carport SF Balcony SF Porch SF
1 1,414 0 1,382 1,382 480 0 0 97


Built As Details for Building 1
ID Built As Square Ft Year Built Stories Length Width
1.00 Ranch 1 Story 1,414 1998 1 0 0


Additional Details for Building 1
ID Detail Type Description Units
1 Add On Fireplace Wood 1.00
1 Basement Finished 1382.00
1 Basement Total Basement SF 1382.00
1 Fixture Full Bath 2.00
1 Garage Attached 480.00
1 Porch Open Slab 97.00
1 Porch Slab Roof Ceil 158.00
1 Storage Wood 64.00





Account Parcel Account Type Tax Year Buildings Actual Value Local Govt Assessed Value School Assessed Value
R6966198 080721331073 Residential 2026 1 510,960 31,940 36,030

Type Code Description Actual Value Local Govt Assessed Value School Assessed Value Acres Land SqFt
Improvement 1212 SINGLE FAMILY RESIDENTIAL IMPROVEMENTS 420,960 26,310 29,680 0.000 0
Land 1112 SINGLE FAMILY RESIDENTIAL-LAND 90,000 5,630 6,350 0.140 6,109
Totals - - 510,960 31,940 36,030 0.140 6,109


Account Parcel Account Type Tax Year Buildings Actual Value Local Govt Assessed Value School Assessed Value
R6966198 080721331073 Residential 2026 1 510,960 31,940 36,030

Tax Area District ID District Name Local Govt
Mill Levy
School
Mill Levy
Estimated
Taxes
0436 0700 AIMS JUNIOR COLLEGE 6.313 0.000 $201.64
0436 1051 CLEARVIEW LIBRARY 3.546 0.000 $113.26
0436 0301 NORTHERN COLORADO WATER (NCW) 1.000 0.000 $31.94
0436 0204 SCHOOL DIST RE4-WINDSOR 0.000 46.646 $1,680.66
0436 0100 WELD COUNTY 15.956 0.000 $509.63
0436 1200 WEST GREELEY CONSERVATION 0.414 0.000 $13.22
0436 0428 WINDSOR TOWN 12.030 0.000 $384.24
0436 0521 WINDSOR-SEVERANCE FIRE 8.535 0.000 $272.61
Total - - 47.794 46.646 $3,207.20


The estimate of tax is based on the prior year mill levy and the 2025 projected assessment rates. Mill levies and tax estimates will be updated yearly on December 22nd for the current year. Additional information can be found at https://assessor.weld.gov










Select Reports to Print: