Account: R6989298
April 1, 2026
| Account | Parcel | Account Type | Tax Year | Buildings | Actual Value | Local Govt Assessed Value | School Assessed Value |
|---|---|---|---|---|---|---|---|
| R6989298 | 130932319002 | Residential | 2026 | 1 | 338,360 | 21,150 | 23,850 |
| Legal |
|---|
| FTL 5LN L2 BLK2 LANCASTER NORTH ADD 5TH == |
| Subdivision | Block | Lot | Land Economic Area |
|---|---|---|---|
| LANCASTER NORTH ADD 5TH FG | 2 | 2 | LANCASTER |
| Property Address | Property City | Section | Township | Range |
|---|---|---|---|---|
| 906 STAGE DR | FORT LUPTON | 32 | 02 | 66 |
| Account | Parcel | Account Type | Tax Year | Buildings | Actual Value | Local Govt Assessed Value | School Assessed Value |
|---|---|---|---|---|---|---|---|
| R6989298 | 130932319002 | Residential | 2026 | 1 | 338,360 | 21,150 | 23,850 |
| Account | Owner Name | Address |
|---|---|---|
| R6989298 | PEREZ NORMA MIRANDA | 906 STAGE DR FORT LUPTON, CO 806212743 |
| R6989298 | GARCIA NORMA |
| Account | Parcel | Account Type | Tax Year | Buildings | Actual Value | Local Govt Assessed Value | School Assessed Value |
|---|---|---|---|---|---|---|---|
| R6989298 | 130932319002 | Residential | 2026 | 1 | 338,360 | 21,150 | 23,850 |
| Reception | Rec Date | Type | Grantor | Grantee | Doc Fee | Sale Date | Sale Price |
|---|---|---|---|---|---|---|---|
| 1831003 | NA | SUB | SUBDIVISION | LANCASTER NORTH ADD 5TH FG | 0.00 | NA | 0 |
| 2454306 | 09-05-1995 | QCN | KOMINSKI DIETER R | D K HOMES & APPRAISAL SERVICE LLC | 0.00 | 08-31-1995 | 0 |
| 2467980 | 12-18-1995 | WD | D K HOMES & APPRAISAL SERVICE | GENESSEE I INC | 32.00 | 12-15-1995 | 320,000 |
| 2649132 | 10-26-1998 | WD | GENESSEE I INC | VILLALOBOS ERNESTO & | 11.39 | 10-22-1998 | 113,900 |
| 3222998 | 09-28-2004 | WD | VILLALOBOS ERNESTO & | GAMEZ GERARDO JR & | 17.00 | 09-28-2004 | 170,000 |
| 3551312 | 05-02-2008 | PTD | GAMEZ GERARDO JR & | FEDERAL HOME LOAN MORTGAGE CORP | 0.00 | 05-01-2008 | 0 |
| 3576470 | 09-04-2008 | SWD | FEDERAL HOME LOAN MORTGAGE CORPORATION | GARCIA MARIO | 9.09 | 08-14-2008 | 90,900 |
| 4131511 | 08-06-2015 | QCN | GARCIA MARIO; GARCIA NORMA | GUADERRAMA MARIO GARCIA; GARCIA NORMA | 0.00 | 08-05-2015 | 0 |
| 4426086 | 08-27-2018 | QCN | GUADERRAMA MARIO GARCIA | PEREZ NORMA MIRANDA | 0.00 | 11-15-2017 | 0 |
*If the hyperlink for the reception number does not work, try a manual search in the Clerk and Recorder records. Use the Grantor or Grantee in your search.
| Account | Parcel | Account Type | Tax Year | Buildings | Actual Value | Local Govt Assessed Value | School Assessed Value |
|---|---|---|---|---|---|---|---|
| R6989298 | 130932319002 | Residential | 2026 | 1 | 338,360 | 21,150 | 23,850 |
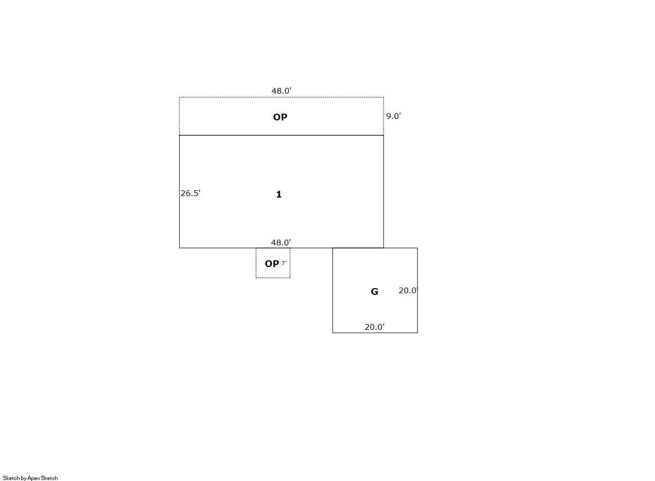
Building 1
| AccountNo | Building ID | Occupancy |
|---|---|---|
| R6989298 | 1 | Single Family Residential |
| ID | Type | NBHD | Occupancy | % Complete | Bedrooms | Baths |
|---|---|---|---|---|---|---|
| 1 | Manufactured Hm | 4F1005 | Single Family Residential | 100 | 4 | 2.00 |
| ID | Exterior | Roof Cover | Interior | HVAC | Perimeter | Units | Unit Type | Make |
|---|---|---|---|---|---|---|---|---|
| 1 | Hardboard Sheet | Shingle Comp | Drywall | Forced Air | 149 | 1 | NA | NA |
| ID | Square Ft | Condo SF | Total Basement SF | Finished Basement SF | Garage SF | Carport SF | Balcony SF | Porch SF |
|---|---|---|---|---|---|---|---|---|
| 1 | 1,272 | 0 | 0 | 0 | 400 | 0 | 0 | 488 |
| ID | Built As | Square Ft | Year Built | Stories | Length | Width |
|---|---|---|---|---|---|---|
| 1.00 | Mnfctrd Home 1 Story | 1,272 | 1997 | 1 | 48 | 26 |
| ID | Detail Type | Description | Units |
|---|---|---|---|
| 1 | Add On | MH Shed - Frame | 200.00 |
| 1 | Fixture | Full Bath | 2.00 |
| 1 | Garage | Attached | 400.00 |
| 1 | Porch | Slab Roof Ceil | 488.00 |
| Account | Parcel | Account Type | Tax Year | Buildings | Actual Value | Local Govt Assessed Value | School Assessed Value |
|---|---|---|---|---|---|---|---|
| R6989298 | 130932319002 | Residential | 2026 | 1 | 338,360 | 21,150 | 23,850 |
| Type | Code | Description | Actual Value | Local Govt Assessed Value | School Assessed Value | Acres | Land SqFt |
|---|---|---|---|---|---|---|---|
| Improvement | 1212 | SINGLE FAMILY RESIDENTIAL IMPROVEMENTS | 258,360 | 16,150 | 18,210 | 0.000 | 0 |
| Land | 1112 | SINGLE FAMILY RESIDENTIAL-LAND | 80,000 | 5,000 | 5,640 | 0.140 | 6,100 |
| Totals | - | - | 338,360 | 21,150 | 23,850 | 0.140 | 6,100 |
Comparable sales for your Residential or Commercial property may be found using our SALES SEARCH TOOL
Values are updated annually on May 1st for Real Property and June 15th for Personal Property and Oil and Gas.
| Account | Parcel | Account Type | Tax Year | Buildings | Actual Value | Local Govt Assessed Value | School Assessed Value |
|---|---|---|---|---|---|---|---|
| R6989298 | 130932319002 | Residential | 2026 | 1 | 338,360 | 21,150 | 23,850 |
| Tax Area | District ID | District Name | Local Govt Mill Levy |
School Mill Levy |
Estimated Taxes |
|---|---|---|---|---|---|
| 0881 | 0700 | AIMS JUNIOR COLLEGE | 6.313 | 0.000 | $133.52 |
| 0881 | 0302 | CENTRAL COLORADO WATER (CCW) | 0.980 | 0.000 | $20.73 |
| 0881 | 0407 | FORT LUPTON CITY | 42.931 | 0.000 | $907.99 |
| 0881 | 0506 | FORT LUPTON FIRE | 9.357 | 0.000 | $197.90 |
| 0881 | 1050 | HIGH PLAINS LIBRARY | 3.044 | 0.000 | $64.38 |
| 0881 | 0301 | NORTHERN COLORADO WATER (NCW) | 1.000 | 0.000 | $21.15 |
| 0881 | 0208 | SCHOOL DIST RE8-FORT LUPTON AND DACONO | 0.000 | 18.198 | $434.02 |
| 0881 | 0100 | WELD COUNTY | 15.956 | 0.000 | $337.47 |
| Total | - | - | 79.581 | 18.198 | $2,117.16 |
The estimate of tax is based on the prior year mill levy and the 2025 projected assessment rates. Mill levies and tax estimates will be updated yearly on December 22nd for the current year. Additional information can be found at https://assessor.weld.gov


