Account: R6991498
April 1, 2026
| Account | Parcel | Account Type | Tax Year | Buildings | Actual Value | Local Govt Assessed Value | School Assessed Value |
|---|---|---|---|---|---|---|---|
| R6991498 | 130932320003 | Residential | 2026 | 1 | 328,637 | 20,540 | 23,170 |
| Legal |
|---|
| FTL 5LN L3 BLK3 LANCASTER NORTH ADD 5TH == |
| Subdivision | Block | Lot | Land Economic Area |
|---|---|---|---|
| LANCASTER NORTH ADD 5TH FG | 3 | 3 | LANCASTER |
| Property Address | Property City | Section | Township | Range |
|---|---|---|---|---|
| 908 LANTERN DR | FORT LUPTON | 32 | 02 | 66 |
| Account | Parcel | Account Type | Tax Year | Buildings | Actual Value | Local Govt Assessed Value | School Assessed Value |
|---|---|---|---|---|---|---|---|
| R6991498 | 130932320003 | Residential | 2026 | 1 | 328,637 | 20,540 | 23,170 |
| Account | Owner Name | Address |
|---|---|---|
| R6991498 | SALAZAR RANDY JUNIOR | 1260 PHILLIPS DR NORTHGLENN, CO 802331278 |
| Account | Parcel | Account Type | Tax Year | Buildings | Actual Value | Local Govt Assessed Value | School Assessed Value |
|---|---|---|---|---|---|---|---|
| R6991498 | 130932320003 | Residential | 2026 | 1 | 328,637 | 20,540 | 23,170 |
| Reception | Rec Date | Type | Grantor | Grantee | Doc Fee | Sale Date | Sale Price |
|---|---|---|---|---|---|---|---|
| 1831003 | NA | SUB | SUBDIVISION | LANCASTER NORTH ADD 5TH FG | 0.00 | NA | 0 |
| 2680387 | 03-16-1999 | WD | GENESSEE I INC | ARAMBULA JOSEPH J & LAURA M | 11.85 | 01-29-1999 | 118,500 |
| 2958990 | 06-06-2002 | WD | ARAMBULA JOSEPH J & LAURA M | RAMIREZ ELVIA & MORALES CARLOS | 14.79 | 06-05-2002 | 147,900 |
| 3297992 | 06-27-2005 | QCN | RAMIREZ ELVIA & | MORALES ELVIA & | 0.00 | 06-17-2005 | 0 |
| 3758828 | 03-29-2011 | PTD | MORALES ELVIA | SECRETARY OF HOUSING AND URBAN DEVELOPMENT | 0.00 | 03-28-2011 | 0 |
| 3784845 | 08-08-2011 | SWD | SECRETARY OF HOUSING AND URBAN DEVELOPMENT | DELGADILLO MARIA CARMEN | 6.40 | 08-05-2011 | 64,000 |
| 4321184 | 07-25-2017 | WD | DELGADILLO MARIA CARMEN | SALAZAR ROGER RANDOLE | 26.10 | 07-20-2017 | 261,000 |
| 4321185 | 07-25-2017 | MHN | SALAZAR ROGER R | SALAZAR ROGER R | 0.00 | 07-20-2017 | 0 |
| 4762182 | 10-01-2021 | QCN | SALAZAR ROGER RANDOLE | SALAZAR RANDY JUNIOR | 0.00 | 02-06-2021 | 0 |
*If the hyperlink for the reception number does not work, try a manual search in the Clerk and Recorder records. Use the Grantor or Grantee in your search.
| Account | Parcel | Account Type | Tax Year | Buildings | Actual Value | Local Govt Assessed Value | School Assessed Value |
|---|---|---|---|---|---|---|---|
| R6991498 | 130932320003 | Residential | 2026 | 1 | 328,637 | 20,540 | 23,170 |
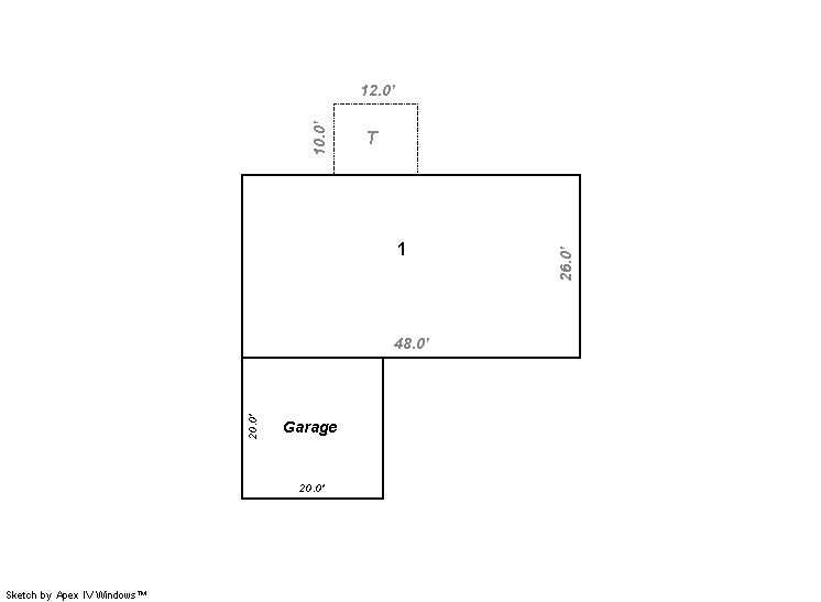
Building 1
| AccountNo | Building ID | Occupancy |
|---|---|---|
| R6991498 | 1 | Single Family Residential |
| ID | Type | NBHD | Occupancy | % Complete | Bedrooms | Baths |
|---|---|---|---|---|---|---|
| 1 | Manufactured Hm | 4F1005 | Single Family Residential | 100 | 3 | 2.00 |
| ID | Exterior | Roof Cover | Interior | HVAC | Perimeter | Units | Unit Type | Make |
|---|---|---|---|---|---|---|---|---|
| 1 | Hardboard Sheet | Shingle Comp | Drywall | Forced Air | 0 | 0 | NA | NA |
| ID | Square Ft | Condo SF | Total Basement SF | Finished Basement SF | Garage SF | Carport SF | Balcony SF | Porch SF |
|---|---|---|---|---|---|---|---|---|
| 1 | 1,248 | 0 | 0 | 0 | 400 | 0 | 0 | 120 |
| ID | Built As | Square Ft | Year Built | Stories | Length | Width |
|---|---|---|---|---|---|---|
| 1.00 | Mnfctrd Home 1 Story | 1,248 | 1998 | 1 | 48 | 26 |
| ID | Detail Type | Description | Units |
|---|---|---|---|
| 1 | Add On | MH Swamp Cooler | 1.00 |
| 1 | Fixture | Full Bath | 2.00 |
| 1 | Garage | Attached | 400.00 |
| 1 | Porch | Open Slab | 120.00 |
| Account | Parcel | Account Type | Tax Year | Buildings | Actual Value | Local Govt Assessed Value | School Assessed Value |
|---|---|---|---|---|---|---|---|
| R6991498 | 130932320003 | Residential | 2026 | 1 | 328,637 | 20,540 | 23,170 |
| Type | Code | Description | Actual Value | Local Govt Assessed Value | School Assessed Value | Acres | Land SqFt |
|---|---|---|---|---|---|---|---|
| Improvement | 1212 | SINGLE FAMILY RESIDENTIAL IMPROVEMENTS | 248,637 | 15,540 | 17,530 | 0.000 | 0 |
| Land | 1112 | SINGLE FAMILY RESIDENTIAL-LAND | 80,000 | 5,000 | 5,640 | 0.140 | 6,000 |
| Totals | - | - | 328,637 | 20,540 | 23,170 | 0.140 | 6,000 |
Comparable sales for your Residential or Commercial property may be found using our SALES SEARCH TOOL
Values are updated annually on May 1st for Real Property and June 15th for Personal Property and Oil and Gas.
| Account | Parcel | Account Type | Tax Year | Buildings | Actual Value | Local Govt Assessed Value | School Assessed Value |
|---|---|---|---|---|---|---|---|
| R6991498 | 130932320003 | Residential | 2026 | 1 | 328,637 | 20,540 | 23,170 |
| Tax Area | District ID | District Name | Local Govt Mill Levy |
School Mill Levy |
Estimated Taxes |
|---|---|---|---|---|---|
| 0881 | 0700 | AIMS JUNIOR COLLEGE | 6.313 | 0.000 | $129.67 |
| 0881 | 0302 | CENTRAL COLORADO WATER (CCW) | 0.980 | 0.000 | $20.13 |
| 0881 | 0407 | FORT LUPTON CITY | 42.931 | 0.000 | $881.80 |
| 0881 | 0506 | FORT LUPTON FIRE | 9.357 | 0.000 | $192.19 |
| 0881 | 1050 | HIGH PLAINS LIBRARY | 3.044 | 0.000 | $62.52 |
| 0881 | 0301 | NORTHERN COLORADO WATER (NCW) | 1.000 | 0.000 | $20.54 |
| 0881 | 0208 | SCHOOL DIST RE8-FORT LUPTON AND DACONO | 0.000 | 18.198 | $421.65 |
| 0881 | 0100 | WELD COUNTY | 15.956 | 0.000 | $327.74 |
| Total | - | - | 79.581 | 18.198 | $2,056.24 |
The estimate of tax is based on the prior year mill levy and the 2025 projected assessment rates. Mill levies and tax estimates will be updated yearly on December 22nd for the current year. Additional information can be found at https://assessor.weld.gov



