Account: R6993598
April 2, 2026
| Account | Parcel | Account Type | Tax Year | Buildings | Actual Value | Local Govt Assessed Value | School Assessed Value |
|---|---|---|---|---|---|---|---|
| R6993598 | 070713215005 | Commercial | 2026 | 2 | 927,057 | 250,310 | 250,310 |
| Legal |
|---|
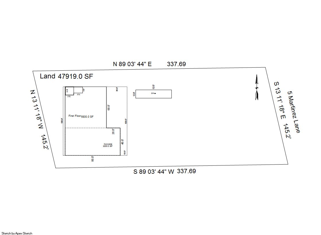
| ALT 2WYKR L5 REP WYKERT SUB 2ND FG |
| Subdivision | Block | Lot | Land Economic Area |
|---|---|---|---|
| WYKERT SUB 2ND FG RPLT | 5 | AULT INDUSTRIAL |
| Property Address | Property City | Section | Township | Range |
|---|---|---|---|---|
| 5 JOE P MARTINEZ LN | AULT | 13 | 07 | 66 |
| Account | Parcel | Account Type | Tax Year | Buildings | Actual Value | Local Govt Assessed Value | School Assessed Value |
|---|---|---|---|---|---|---|---|
| R6993598 | 070713215005 | Commercial | 2026 | 2 | 927,057 | 250,310 | 250,310 |
| Account | Owner Name | Address |
|---|---|---|
| R6993598 | EMPIRE TRUCK CENTER LLC | PO BOX 1086 AULT, CO 806101086 |
| Account | Parcel | Account Type | Tax Year | Buildings | Actual Value | Local Govt Assessed Value | School Assessed Value |
|---|---|---|---|---|---|---|---|
| R6993598 | 070713215005 | Commercial | 2026 | 2 | 927,057 | 250,310 | 250,310 |
| Reception | Rec Date | Type | Grantor | Grantee | Doc Fee | Sale Date | Sale Price |
|---|---|---|---|---|---|---|---|
| 2307216 | 10-16-1992 | PRDN | CROWN INV | 0.00 | 10-16-1992 | 0 | |
| 2618224 | NA | SUB | SUBDIVISION | WYKERT 2ND FG RPLT | 0.00 | NA | 0 |
| 2702365 | 06-24-1999 | QCN | CROWN INV | CANNON BOBBY D | 0.00 | 06-24-1999 | 0 |
| 2714547 | 08-18-1999 | WD | CANNON BOBBY D | BRANT STEVEN R & | 3.33 | 08-10-1999 | 33,300 |
| 2864692 | 07-10-2001 | QCN | BRANT STEVEN R & | BRANT STEVEN R & | 0.00 | 07-03-2001 | 0 |
| 2965537 | 07-01-2002 | QCN | MCLAUGHLIN DALE B | MCLAUGHLIN ROBBIN | 0.00 | 06-27-2002 | 0 |
| 2967992 | 07-10-2002 | QCN | MCLAUGHLIN ROBBIN | JSD ENTERPRISES LLC | 0.00 | 07-09-2002 | 0 |
| 3225730 | 10-06-2004 | WDN | BRANT STEVEN R & | JSD ENTERPIRSES LLC | 0.00 | 10-05-2004 | 0 |
| 3990633 | 01-17-2014 | WD | JSD ENTERPRISES LLC | EMPIRE TRUCK CENTER LLC | 50.00 | 12-31-2013 | 500,000 |
*If the hyperlink for the reception number does not work, try a manual search in the Clerk and Recorder records. Use the Grantor or Grantee in your search.
| Account | Parcel | Account Type | Tax Year | Buildings | Actual Value | Local Govt Assessed Value | School Assessed Value |
|---|---|---|---|---|---|---|---|
| R6993598 | 070713215005 | Commercial | 2026 | 2 | 927,057 | 250,310 | 250,310 |
Building 1
| AccountNo | Building ID | Occupancy |
|---|---|---|
| R6993598 | 1 | Warehouse |
| ID | Type | NBHD | Occupancy | % Complete | Bedrooms | Baths |
|---|---|---|---|---|---|---|
| 1 | Commercial | 9915 | Warehouse | 100 | 0 | 0.00 |
| ID | Exterior | Roof Cover | Interior | HVAC | Perimeter | Units | Unit Type | Make |
|---|---|---|---|---|---|---|---|---|
| 1 | NA | NA | NA | Space Heater | 360 | 0 | NA | NA |
| ID | Square Ft | Condo SF | Total Basement SF | Finished Basement SF | Garage SF | Carport SF | Balcony SF | Porch SF |
|---|---|---|---|---|---|---|---|---|
| 1 | 6,800 | 0 | 0 | 0 | 0 | 0 | 0 | 0 |
| ID | Built As | Square Ft | Year Built | Stories | Length | Width |
|---|---|---|---|---|---|---|
| 1.00 | Service Garage | 3,600 | 2000 | 1 | 0 | 0 |
| 1.00 | Service Garage | 3,200 | 2002 | 1 | 0 | 0 |
No Additional Details for Building 1
Building 2
| AccountNo | Building ID | Occupancy |
|---|---|---|
| R6993598 | 2 | Office Building |
| ID | Type | NBHD | Occupancy | % Complete | Bedrooms | Baths |
|---|---|---|---|---|---|---|
| 2 | Commercial | 9915 | Office Building | 100 | 0 | 0.00 |
| ID | Exterior | Roof Cover | Interior | HVAC | Perimeter | Units | Unit Type | Make |
|---|---|---|---|---|---|---|---|---|
| 2 | NA | NA | NA | Forced Air | 128 | 0 | NA | NA |
| ID | Square Ft | Condo SF | Total Basement SF | Finished Basement SF | Garage SF | Carport SF | Balcony SF | Porch SF |
|---|---|---|---|---|---|---|---|---|
| 2 | 624 | 0 | 0 | 0 | 0 | 0 | 0 | 0 |
| ID | Built As | Square Ft | Year Built | Stories | Length | Width |
|---|---|---|---|---|---|---|
| 2.00 | Modular Office | 624 | 1985 | 1 | 0 | 0 |
No Additional Details for Building 2
| Account | Parcel | Account Type | Tax Year | Buildings | Actual Value | Local Govt Assessed Value | School Assessed Value |
|---|---|---|---|---|---|---|---|
| R6993598 | 070713215005 | Commercial | 2026 | 2 | 927,057 | 250,310 | 250,310 |
| Type | Code | Description | Actual Value | Local Govt Assessed Value | School Assessed Value | Acres | Land SqFt |
|---|---|---|---|---|---|---|---|
| Improvement | 2220 | OFFICES-IMPROVEMENTS | 7,620 | 2,060 | 2,060 | 0.000 | 0 |
| Improvement | 2230 | SPECIAL PURPOSE-IMPROVEMENTS | 775,689 | 209,440 | 209,440 | 0.000 | 0 |
| Land | 2130 | SPECIAL PURPOSE-LAND | 143,748 | 38,810 | 38,810 | 1.100 | 47,916 |
| Totals | - | - | 927,057 | 250,310 | 250,310 | 1.100 | 47,916 |
Comparable sales for your Residential or Commercial property may be found using our SALES SEARCH TOOL
Values are updated annually on May 1st for Real Property and June 15th for Personal Property and Oil and Gas.
| Account | Parcel | Account Type | Tax Year | Buildings | Actual Value | Local Govt Assessed Value | School Assessed Value |
|---|---|---|---|---|---|---|---|
| R6993598 | 070713215005 | Commercial | 2026 | 2 | 927,057 | 250,310 | 250,310 |
| Tax Area | District ID | District Name | Local Govt Mill Levy |
School Mill Levy |
Estimated Taxes |
|---|---|---|---|---|---|
| 0931 | 0700 | AIMS JUNIOR COLLEGE | 6.313 | 0.000 | $1,580.21 |
| 0931 | 0501 | AULT FIRE | 7.266 | 0.000 | $1,818.75 |
| 0931 | 0401 | AULT TOWN | 6.741 | 0.000 | $1,687.34 |
| 0931 | 1050 | HIGH PLAINS LIBRARY | 3.044 | 0.000 | $761.94 |
| 0931 | 0301 | NORTHERN COLORADO WATER (NCW) | 1.000 | 0.000 | $250.31 |
| 0931 | 0209 | SCHOOL DIST RE9-AULT | 0.000 | 34.176 | $8,554.59 |
| 0931 | 0100 | WELD COUNTY | 15.956 | 0.000 | $3,993.95 |
| 0931 | 1200 | WEST GREELEY CONSERVATION | 0.414 | 0.000 | $103.63 |
| Total | - | - | 40.734 | 34.176 | $18,750.72 |
The estimate of tax is based on the prior year mill levy and the 2025 projected assessment rates. Mill levies and tax estimates will be updated yearly on December 22nd for the current year. Additional information can be found at https://assessor.weld.gov



