Account: R6996898
April 2, 2026
| Account | Parcel | Account Type | Tax Year | Buildings | Actual Value | Local Govt Assessed Value | School Assessed Value |
|---|---|---|---|---|---|---|---|
| R6996898 | 105915401020 | Residential | 2026 | 2 | 739,528 | 46,220 | 52,130 |
| Legal |
|---|
| MIL WA L20 WILDCAT ACRES ===== |
| Subdivision | Block | Lot | Land Economic Area |
|---|---|---|---|
| WILDCAT ACRES | 20 | WILDCAT |
| Property Address | Property City | Section | Township | Range |
|---|---|---|---|---|
| 420 BOBCAT DR | MILLIKEN | 15 | 04 | 67 |
| Account | Parcel | Account Type | Tax Year | Buildings | Actual Value | Local Govt Assessed Value | School Assessed Value |
|---|---|---|---|---|---|---|---|
| R6996898 | 105915401020 | Residential | 2026 | 2 | 739,528 | 46,220 | 52,130 |
| Account | Owner Name | Address |
|---|---|---|
| R6996898 | BASS JUSTIN | 1510 KINGS CROWN DR MILLIKEN, CO 805438435 |
| R6996898 | BASS WHITNEY |
| Account | Parcel | Account Type | Tax Year | Buildings | Actual Value | Local Govt Assessed Value | School Assessed Value |
|---|---|---|---|---|---|---|---|
| R6996898 | 105915401020 | Residential | 2026 | 2 | 739,528 | 46,220 | 52,130 |
| Reception | Rec Date | Type | Grantor | Grantee | Doc Fee | Sale Date | Sale Price |
|---|---|---|---|---|---|---|---|
| 2521671 | NA | SUB | SUBDIVISION | WILDCAT ACRES | 0.00 | NA | 0 |
| 2523815 | 12-06-1996 | WD | WILDCAT ACRES LLC | LOT HOLDING INVESTMENTS LLC | 60.00 | 12-04-1996 | 600,000 |
| 2635473 | 08-25-1998 | WD | LOT HOLDING INVESTMENTS LLC | WILDCAT ACRES LLC | 2.07 | 08-24-1998 | 20,700 |
| 2635474 | 08-25-1998 | WD | WILDCAT ACRES LLC | GRIMALDO JOHN R & LORI KAREN | 4.00 | 08-24-1998 | 40,000 |
| 3869042 | 08-27-2012 | WDE | GRIMALDO JOHN R | MANN RUSSELL W | 32.50 | 08-24-2012 | 325,000 |
| 4950915 | 03-25-2024 | WD | MANN KRISTIN L; MANN RUSSELL W | BASS JUSTIN; BASS WHITNEY | 76.50 | 03-22-2024 | 765,000 |
*If the hyperlink for the reception number does not work, try a manual search in the Clerk and Recorder records. Use the Grantor or Grantee in your search.
| Account | Parcel | Account Type | Tax Year | Buildings | Actual Value | Local Govt Assessed Value | School Assessed Value |
|---|---|---|---|---|---|---|---|
| R6996898 | 105915401020 | Residential | 2026 | 2 | 739,528 | 46,220 | 52,130 |
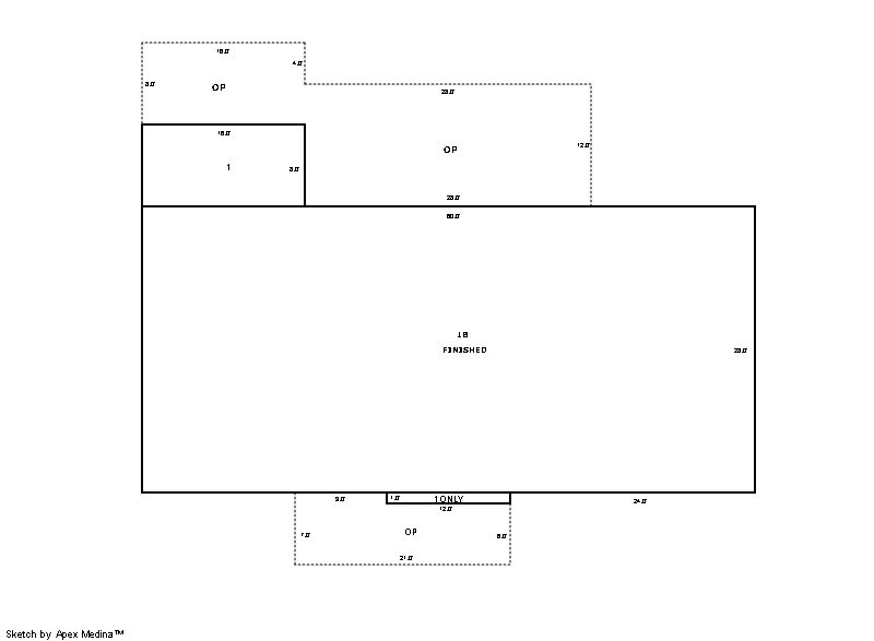
Building 1
| AccountNo | Building ID | Occupancy |
|---|---|---|
| R6996898 | 1 | Single Family Residential |
| ID | Type | NBHD | Occupancy | % Complete | Bedrooms | Baths |
|---|---|---|---|---|---|---|
| 1 | Residential | 0M0072 | Single Family Residential | 100 | 3 | 3.00 |
| ID | Exterior | Roof Cover | Interior | HVAC | Perimeter | Units | Unit Type | Make |
|---|---|---|---|---|---|---|---|---|
| 1 | Frame Vinyl | Composition Shingle | Drywall | Central Air to Air | 0 | 0 | NA | NA |
| ID | Square Ft | Condo SF | Total Basement SF | Finished Basement SF | Garage SF | Carport SF | Balcony SF | Porch SF |
|---|---|---|---|---|---|---|---|---|
| 1 | 1,820 | 0 | 1,680 | 1,680 | 0 | 0 | 0 | 599 |
| ID | Built As | Square Ft | Year Built | Stories | Length | Width |
|---|---|---|---|---|---|---|
| 1.00 | Modular 1 Story | 1,820 | 1998 | 1 | 0 | 0 |
| ID | Detail Type | Description | Units |
|---|---|---|---|
| 1 | Add On | Flue Only | 1.00 |
| 1 | Basement | Finished | 1680.00 |
| 1 | Basement | Total Basement SF | 1680.00 |
| 1 | Fixture | Full Bath | 3.00 |
| 1 | Fixture | Wet Bar | 1.00 |
| 1 | Porch | Slab Roof Ceil | 599.00 |
Building 2
| AccountNo | Building ID | Occupancy |
|---|---|---|
| R6996898 | 2 | Utility Building |
| ID | Type | NBHD | Occupancy | % Complete | Bedrooms | Baths |
|---|---|---|---|---|---|---|
| 2 | Out Building | NA | Utility Building | 100 | 0 | 0.00 |
| ID | Exterior | Roof Cover | Interior | HVAC | Perimeter | Units | Unit Type | Make |
|---|---|---|---|---|---|---|---|---|
| 2 | NA | NA | NA | None | 140 | 0 | NA | NA |
| ID | Square Ft | Condo SF | Total Basement SF | Finished Basement SF | Garage SF | Carport SF | Balcony SF | Porch SF |
|---|---|---|---|---|---|---|---|---|
| 2 | 1,200 | 0 | 0 | 0 | 0 | 0 | 0 | 0 |
| ID | Built As | Square Ft | Year Built | Stories | Length | Width |
|---|---|---|---|---|---|---|
| 2.00 | Utility Building | 1,200 | 1998 | 1 | 40 | 30 |
No Additional Details for Building 2
| Account | Parcel | Account Type | Tax Year | Buildings | Actual Value | Local Govt Assessed Value | School Assessed Value |
|---|---|---|---|---|---|---|---|
| R6996898 | 105915401020 | Residential | 2026 | 2 | 739,528 | 46,220 | 52,130 |
| Type | Code | Description | Actual Value | Local Govt Assessed Value | School Assessed Value | Acres | Land SqFt |
|---|---|---|---|---|---|---|---|
| Improvement | 1212 | SINGLE FAMILY RESIDENTIAL IMPROVEMENTS | 574,639 | 35,910 | 40,510 | 0.000 | 0 |
| Land | 1112 | SINGLE FAMILY RESIDENTIAL-LAND | 164,889 | 10,310 | 11,620 | 1.500 | 65,354 |
| Totals | - | - | 739,528 | 46,220 | 52,130 | 1.500 | 65,354 |
Comparable sales for your Residential or Commercial property may be found using our SALES SEARCH TOOL
Values are updated annually on May 1st for Real Property and June 15th for Personal Property and Oil and Gas.
| Account | Parcel | Account Type | Tax Year | Buildings | Actual Value | Local Govt Assessed Value | School Assessed Value |
|---|---|---|---|---|---|---|---|
| R6996898 | 105915401020 | Residential | 2026 | 2 | 739,528 | 46,220 | 52,130 |
| Tax Area | District ID | District Name | Local Govt Mill Levy |
School Mill Levy |
Estimated Taxes |
|---|---|---|---|---|---|
| 5732 | 0700 | AIMS JUNIOR COLLEGE | 6.313 | 0.000 | $291.79 |
| 5732 | 0510 | FRONT RANGE FIRE RESCUE FIRE PROTECTION DISTRICT | 11.483 | 0.000 | $530.74 |
| 5732 | 1050 | HIGH PLAINS LIBRARY | 3.044 | 0.000 | $140.69 |
| 5732 | 0421 | MILLIKEN TOWN | 26.301 | 0.000 | $1,215.63 |
| 5732 | 0301 | NORTHERN COLORADO WATER (NCW) | 1.000 | 0.000 | $46.22 |
| 5732 | 0205 | SCHOOL DIST RE5J-JOHNSTOWN | 0.000 | 36.271 | $1,890.81 |
| 5732 | 0901 | THOMPSON RIVER REC | 3.594 | 0.000 | $166.11 |
| 5732 | 0100 | WELD COUNTY | 15.956 | 0.000 | $737.49 |
| 5732 | 1200 | WEST GREELEY CONSERVATION | 0.414 | 0.000 | $19.14 |
| Total | - | - | 68.105 | 36.271 | $5,038.62 |
The estimate of tax is based on the prior year mill levy and the 2025 projected assessment rates. Mill levies and tax estimates will be updated yearly on December 22nd for the current year. Additional information can be found at https://assessor.weld.gov




