Account: R6997998

April 1, 2026

Account Parcel Account Type Tax Year Buildings Actual Value Local Govt Assessed Value School Assessed Value
R6997998 105915401031 Residential 2026 1 685,266 42,830 48,320

Legal
MIL WA L31 WILDCAT ACRES =====

Subdivision Block Lot Land Economic Area
WILDCAT ACRES 31 WILDCAT

Property Address Property City Section Township Range
301 BOBCAT DR MILLIKEN 15 04 67




Account Parcel Account Type Tax Year Buildings Actual Value Local Govt Assessed Value School Assessed Value
R6997998 105915401031 Residential 2026 1 685,266 42,830 48,320

Account Owner Name Address
R6997998 WISE JASON 301 BOBCAT DR MILLIKEN, CO 805439442
R6997998 WISE ANGELA


Account Parcel Account Type Tax Year Buildings Actual Value Local Govt Assessed Value School Assessed Value
R6997998 105915401031 Residential 2026 1 685,266 42,830 48,320

Reception Rec Date Type Grantor Grantee Doc Fee Sale Date Sale Price
2521671 NA SUB SUBDIVISION WILDCAT ACRES 0.00 NA 0
2770271 05-24-2000 WD WILDCAT ACRES LLC OLEHR LLC 16.50 05-23-2000 165,000
2987790 09-16-2002 WD OLEHR LLC WISE JASON & ANGELA 25.99 09-12-2002 259,900



Account Parcel Account Type Tax Year Buildings Actual Value Local Govt Assessed Value School Assessed Value
R6997998 105915401031 Residential 2026 1 685,266 42,830 48,320

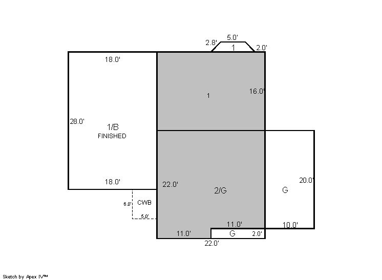
Building 1

AccountNo Building ID Occupancy
R6997998 1 Single Family Residential


ID Type NBHD Occupancy % Complete Bedrooms Baths
1 Residential 0M0072 Single Family Residential 100 3 3.00


ID Exterior Roof Cover Interior HVAC Perimeter Units Unit Type Make
1 Frame Hardboard Composition Shingle Drywall Forced Air 0 0 NA NA


ID Square Ft Condo SF Total Basement SF Finished Basement SF Garage SF Carport SF Balcony SF Porch SF
1 1,684 0 504 504 684 0 30 0


Built As Details for Building 1
ID Built As Square Ft Year Built Stories Length Width
1.00 2 Story 1,684 2001 2 0 0


Additional Details for Building 1
ID Detail Type Description Units
1 Add On Fireplace Gas 1.00
1 Balcony Cover Wood Balc 30.00
1 Basement Finished 504.00
1 Basement Total Basement SF 504.00
1 Fixture Full Bath 2.00
1 Fixture Half Bath 1.00
1 Garage Attached 684.00





Account Parcel Account Type Tax Year Buildings Actual Value Local Govt Assessed Value School Assessed Value
R6997998 105915401031 Residential 2026 1 685,266 42,830 48,320

Type Code Description Actual Value Local Govt Assessed Value School Assessed Value Acres Land SqFt
Improvement 1212 SINGLE FAMILY RESIDENTIAL IMPROVEMENTS 516,253 32,270 36,400 0.000 0
Land 1112 SINGLE FAMILY RESIDENTIAL-LAND 169,013 10,560 11,920 1.610 70,300
Totals - - 685,266 42,830 48,320 1.610 70,300


Account Parcel Account Type Tax Year Buildings Actual Value Local Govt Assessed Value School Assessed Value
R6997998 105915401031 Residential 2026 1 685,266 42,830 48,320

Tax Area District ID District Name Local Govt
Mill Levy
School
Mill Levy
Estimated
Taxes
5732 0700 AIMS JUNIOR COLLEGE 6.313 0.000 $270.39
5732 0510 FRONT RANGE FIRE RESCUE FIRE PROTECTION DISTRICT 11.483 0.000 $491.82
5732 1050 HIGH PLAINS LIBRARY 3.044 0.000 $130.37
5732 0421 MILLIKEN TOWN 26.301 0.000 $1,126.47
5732 0301 NORTHERN COLORADO WATER (NCW) 1.000 0.000 $42.83
5732 0205 SCHOOL DIST RE5J-JOHNSTOWN 0.000 36.271 $1,752.61
5732 0901 THOMPSON RIVER REC 3.594 0.000 $153.93
5732 0100 WELD COUNTY 15.956 0.000 $683.40
5732 1200 WEST GREELEY CONSERVATION 0.414 0.000 $17.73
Total - - 68.105 36.271 $4,669.55


The estimate of tax is based on the prior year mill levy and the 2025 projected assessment rates. Mill levies and tax estimates will be updated yearly on December 22nd for the current year. Additional information can be found at https://assessor.weld.gov










Select Reports to Print: