Account: R7033898
April 1, 2026
| Account | Parcel | Account Type | Tax Year | Buildings | Actual Value | Local Govt Assessed Value | School Assessed Value |
|---|---|---|---|---|---|---|---|
| R7033898 | 095903314009 | Residential | 2026 | 1 | 567,237 | 35,450 | 39,990 |
| Legal |
|---|
| GR 4WP L9 BLK3 WEST POINT 4TH |
| Subdivision | Block | Lot | Land Economic Area |
|---|---|---|---|
| WEST POINT 4TH FG | 3 | 9 | WEST POINT |
| Property Address | Property City | Section | Township | Range |
|---|---|---|---|---|
| 917 52ND AVE | GREELEY | 03 | 05 | 66 |
| Account | Parcel | Account Type | Tax Year | Buildings | Actual Value | Local Govt Assessed Value | School Assessed Value |
|---|---|---|---|---|---|---|---|
| R7033898 | 095903314009 | Residential | 2026 | 1 | 567,237 | 35,450 | 39,990 |
| Account | Owner Name | Address |
|---|---|---|
| R7033898 | HORNADAY PROMISE A | 917 52ND AVE GREELEY, CO 806344446 |
| R7033898 | ABEL KENDRA |
| Account | Parcel | Account Type | Tax Year | Buildings | Actual Value | Local Govt Assessed Value | School Assessed Value |
|---|---|---|---|---|---|---|---|
| R7033898 | 095903314009 | Residential | 2026 | 1 | 567,237 | 35,450 | 39,990 |
| Reception | Rec Date | Type | Grantor | Grantee | Doc Fee | Sale Date | Sale Price |
|---|---|---|---|---|---|---|---|
| 2251379 | 05-28-1994 | WDN | WEST POINT PARTNERSHIP; WEST POINT | WEST POINT DEVELOPMENT CO INC | 0.00 | 05-24-1991 | 0 |
| 2416415 | NA | SUB | SUBDIVISION | WEST POINT 4TH FG | 0.00 | NA | 0 |
| 2614538 | 05-22-1998 | WD | WEST POINT DEVELOPMENT CO INC | FELL CHRISTIAN JACOB | 2.85 | 05-21-1998 | 28,500 |
| 2674272 | 02-19-1999 | QCN | FELL CHRISTIAN JACOB | FELL CHRISTIAN JACOB & TANYA J | 0.00 | 02-04-1999 | 0 |
| 3232283 | 11-02-2004 | PTD | FELL CHRISTIAN JACOB & TANYA J | PEOPLES MORTGAGE CORPORATION | 0.00 | 11-02-2004 | 0 |
| 3240535 | 12-02-2004 | PTD | PEOPLES MORTGAGE CORPORATION | FEDERAL HOME LOAN MORTGAGE CORP | 0.00 | 11-02-2004 | 0 |
| 3301034 | 07-07-2005 | SWD | FEDERAL HOME LOAN MORTGAGE CORPORATION | COLORADO EQUITIES LLC | 23.10 | 06-08-2005 | 231,000 |
| 3501988 | 09-05-2007 | WD | COLORADO EQUITIES LLC | BURNHAM ROBERT | 23.50 | 08-22-2007 | 235,000 |
| 4420068 | 08-01-2018 | WD | BURNHAM ROBERT | HORNADAY PROMISE A; HERBERT BRIAN R | 39.50 | 07-30-2018 | 395,000 |
| 4670295 | 01-12-2021 | QCN | HERBERT BRIAN R | ABEL KENDRA | 0.00 | 12-23-2020 | 0 |
*If the hyperlink for the reception number does not work, try a manual search in the Clerk and Recorder records. Use the Grantor or Grantee in your search.
| Account | Parcel | Account Type | Tax Year | Buildings | Actual Value | Local Govt Assessed Value | School Assessed Value |
|---|---|---|---|---|---|---|---|
| R7033898 | 095903314009 | Residential | 2026 | 1 | 567,237 | 35,450 | 39,990 |
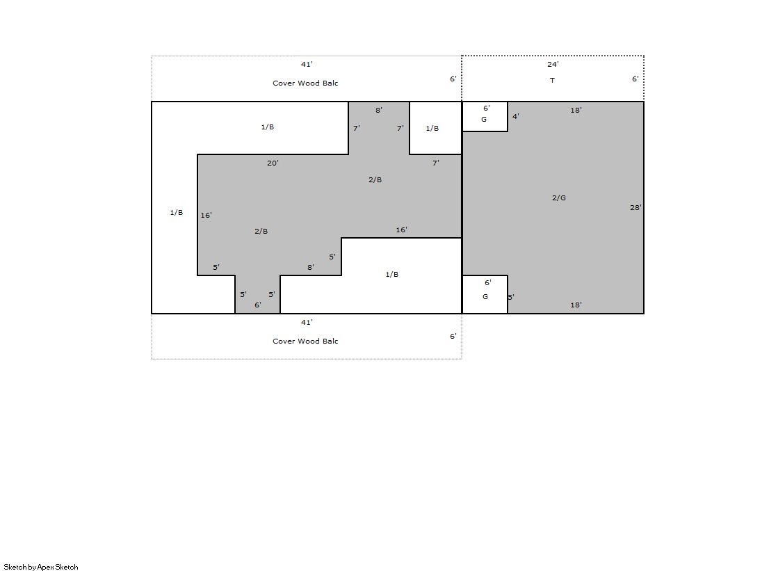
Building 1
| AccountNo | Building ID | Occupancy |
|---|---|---|
| R7033898 | 1 | Single Family Residential |
| ID | Type | NBHD | Occupancy | % Complete | Bedrooms | Baths |
|---|---|---|---|---|---|---|
| 1 | Residential | 2G3010 | Single Family Residential | 100 | 5 | 4.00 |
| ID | Exterior | Roof Cover | Interior | HVAC | Perimeter | Units | Unit Type | Make |
|---|---|---|---|---|---|---|---|---|
| 1 | Frame Siding | Composition Shingle | Drywall | Central Air to Air | 346 | 0 | NA | NA |
| ID | Square Ft | Condo SF | Total Basement SF | Finished Basement SF | Garage SF | Carport SF | Balcony SF | Porch SF |
|---|---|---|---|---|---|---|---|---|
| 1 | 2,331 | 0 | 1,148 | 1,148 | 672 | 0 | 492 | 144 |
| ID | Built As | Square Ft | Year Built | Stories | Length | Width |
|---|---|---|---|---|---|---|
| 1.00 | 2 Story | 2,331 | 1998 | 1 | 0 | 0 |
| ID | Detail Type | Description | Units |
|---|---|---|---|
| 1 | Add On | Fireplace Gas | 1.00 |
| 1 | Balcony | Cover Wood Balc | 492.00 |
| 1 | Basement | Finished | 1148.00 |
| 1 | Basement | Total Basement SF | 1148.00 |
| 1 | Fixture | Full Bath | 4.00 |
| 1 | Garage | Attached | 672.00 |
| 1 | Porch | Open Slab | 144.00 |
| Account | Parcel | Account Type | Tax Year | Buildings | Actual Value | Local Govt Assessed Value | School Assessed Value |
|---|---|---|---|---|---|---|---|
| R7033898 | 095903314009 | Residential | 2026 | 1 | 567,237 | 35,450 | 39,990 |
| Type | Code | Description | Actual Value | Local Govt Assessed Value | School Assessed Value | Acres | Land SqFt |
|---|---|---|---|---|---|---|---|
| Improvement | 1212 | SINGLE FAMILY RESIDENTIAL IMPROVEMENTS | 452,237 | 28,260 | 31,880 | 0.000 | 0 |
| Land | 1112 | SINGLE FAMILY RESIDENTIAL-LAND | 115,000 | 7,190 | 8,110 | 0.170 | 7,188 |
| Totals | - | - | 567,237 | 35,450 | 39,990 | 0.170 | 7,188 |
Comparable sales for your Residential or Commercial property may be found using our SALES SEARCH TOOL
Values are updated annually on May 1st for Real Property and June 15th for Personal Property and Oil and Gas.
| Account | Parcel | Account Type | Tax Year | Buildings | Actual Value | Local Govt Assessed Value | School Assessed Value |
|---|---|---|---|---|---|---|---|
| R7033898 | 095903314009 | Residential | 2026 | 1 | 567,237 | 35,450 | 39,990 |
| Tax Area | District ID | District Name | Local Govt Mill Levy |
School Mill Levy |
Estimated Taxes |
|---|---|---|---|---|---|
| 0683 | 0700 | AIMS JUNIOR COLLEGE | 6.313 | 0.000 | $223.80 |
| 0683 | 0411 | GREELEY CITY | 11.274 | 0.000 | $399.66 |
| 0683 | 1050 | HIGH PLAINS LIBRARY | 3.044 | 0.000 | $107.91 |
| 0683 | 0301 | NORTHERN COLORADO WATER (NCW) | 1.000 | 0.000 | $35.45 |
| 0683 | 0206 | SCHOOL DIST 6-GREELEY | 0.000 | 47.615 | $1,904.12 |
| 0683 | 0100 | WELD COUNTY | 15.956 | 0.000 | $565.64 |
| 0683 | 1200 | WEST GREELEY CONSERVATION | 0.414 | 0.000 | $14.68 |
| Total | - | - | 38.001 | 47.615 | $3,251.26 |
The estimate of tax is based on the prior year mill levy and the 2025 projected assessment rates. Mill levies and tax estimates will be updated yearly on December 22nd for the current year. Additional information can be found at https://assessor.weld.gov



