Account: R7044698

April 1, 2026

Account Parcel Account Type Tax Year Buildings Actual Value Local Govt Assessed Value School Assessed Value
R7044698 131308102010 Commercial 2026 1 2,550,000 688,500 688,500

Legal
VCC L10 BLK2 VISTA COMMERCIAL CENTER FG #1

Subdivision Block Lot Land Economic Area
VISTA COMMERCIAL CENTER FG#1 2 10 VISTA COMMERCIAL LONGMONT

Property Address Property City Section Township Range
1567 SKYWAY DR WELD 08 02 68




Account Parcel Account Type Tax Year Buildings Actual Value Local Govt Assessed Value School Assessed Value
R7044698 131308102010 Commercial 2026 1 2,550,000 688,500 688,500

Account Owner Name Address
R7044698 1567 SKYWAY DRIVE LLC 3101 IRIS AVE STE 240 BOULDER, CO 803011495


Account Parcel Account Type Tax Year Buildings Actual Value Local Govt Assessed Value School Assessed Value
R7044698 131308102010 Commercial 2026 1 2,550,000 688,500 688,500

Reception Rec Date Type Grantor Grantee Doc Fee Sale Date Sale Price
06-27-2000 SPR SITE PLAN REVIEW SPR-318 0.00 NA 0
2292346 06-18-1992 COZ WELD COUNTY ZONING CASE: Z-465 ZONING C-3, I-1, PUD 0.00 NA 0
2447115 07-19-1995 DN JACK WILBUR RICHARDSON TRUST; SANDRA MAY SAUNDERS TRUST HORIZON INVESTMENTS LLC 0.00 07-17-1995 0
2566006 NA SUB SUBDIVISION VISTA COMMERCIAL CENTER FG#1 CORR 0.00 NA 0
2699851 06-11-1999 WD HORIZON INVESTMENT LLC WYNJA VISTA LLLP 15.00 05-26-1999 150,000
4858829 10-03-2022 SWDN WYNJA VISTA LLLP 1567 SKYWAY DRIVE LLC 0.00 09-13-2022 0



Account Parcel Account Type Tax Year Buildings Actual Value Local Govt Assessed Value School Assessed Value
R7044698 131308102010 Commercial 2026 1 2,550,000 688,500 688,500

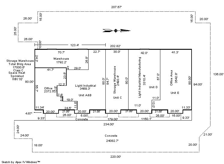
Building 1

AccountNo Building ID Occupancy
R7044698 1 Warehouse


ID Type NBHD Occupancy % Complete Bedrooms Baths
1 Commercial 3921 Warehouse 100 0 0.00


ID Exterior Roof Cover Interior HVAC Perimeter Units Unit Type Make
1 NA NA NA Package Unit 620 0 NA NA


ID Square Ft Condo SF Total Basement SF Finished Basement SF Garage SF Carport SF Balcony SF Porch SF
1 17,001 0 0 0 0 0 0 0


Built As Details for Building 1
ID Built As Square Ft Year Built Stories Length Width
1.00 Indust Lght Manufacturing 6,800 2000 1 0 0
1.00 Office Building 5,915 2000 1 0 0
1.00 Storage Warehouse 4,286 2000 1 0 0


Additional Details for Building 1
ID Detail Type Description Units
1 Add On Concrete Slab Average 25234.00





Account Parcel Account Type Tax Year Buildings Actual Value Local Govt Assessed Value School Assessed Value
R7044698 131308102010 Commercial 2026 1 2,550,000 688,500 688,500

Type Code Description Actual Value Local Govt Assessed Value School Assessed Value Acres Land SqFt
Improvement 2230 SPECIAL PURPOSE-IMPROVEMENTS 2,183,305 589,490 589,490 0.000 0
Land 2130 SPECIAL PURPOSE-LAND 366,695 99,010 99,010 1.200 52,385
Totals - - 2,550,000 688,500 688,500 1.200 52,385


Account Parcel Account Type Tax Year Buildings Actual Value Local Govt Assessed Value School Assessed Value
R7044698 131308102010 Commercial 2026 1 2,550,000 688,500 688,500

Tax Area District ID District Name Local Govt
Mill Levy
School
Mill Levy
Estimated
Taxes
2342 1050 HIGH PLAINS LIBRARY 3.044 0.000 $2,095.79
2342 0311 LEFT HAND WATER 0.000 0.000 $0.00
2342 1202 LONGMONT CONSERVATION 0.000 0.000 $0.00
2342 0512 MOUNTAIN VIEW FIRE PROTECTION DISTRICT 16.342 0.000 $11,251.47
2342 0301 NORTHERN COLORADO WATER (NCW) 1.000 0.000 $688.50
2342 0213 SCHOOL DIST RE1J-LONGMONT 0.000 57.717 $39,738.15
2342 0303 ST VRAIN LEFT HAND WATER (SVW) 1.406 0.000 $968.03
2342 0620 ST VRAIN SANITATION 0.316 0.000 $217.57
2342 0100 WELD COUNTY 15.956 0.000 $10,985.71
Total - - 38.064 57.717 $65,945.22


The estimate of tax is based on the prior year mill levy and the 2025 projected assessment rates. Mill levies and tax estimates will be updated yearly on December 22nd for the current year. Additional information can be found at https://assessor.weld.gov










Select Reports to Print: