Account: R7053798
April 5, 2026
| Account | Parcel | Account Type | Tax Year | Buildings | Actual Value | Local Govt Assessed Value | School Assessed Value |
|---|---|---|---|---|---|---|---|
| R7053798 | 120723203007 | Industrial | 2026 | 1 | 4,815,074 | 1,300,070 | 1,300,070 |
| Legal |
|---|
| RAD L7 BLK2 RADEMACHER BUSINESS PARK PUD AMD PLAT=== |
| Subdivision | Block | Lot | Land Economic Area |
|---|---|---|---|
| RADEMACHER BUSINESS PARK PUD AM PLAT | 2 | 7 | MEAD RADEMAKER BUSINESS PARK |
| Property Address | Property City | Section | Township | Range |
|---|---|---|---|---|
| 4057 CAMELOT CIR | WELD | 23 | 03 | 68 |
| Account | Parcel | Account Type | Tax Year | Buildings | Actual Value | Local Govt Assessed Value | School Assessed Value |
|---|---|---|---|---|---|---|---|
| R7053798 | 120723203007 | Industrial | 2026 | 1 | 4,815,074 | 1,300,070 | 1,300,070 |
| Account | Owner Name | Address |
|---|---|---|
| R7053798 | 4057 CAMELOT GIP LLC | 1760 PLATTE ST STE 100 DENVER, CO 802021081 |
| Account | Parcel | Account Type | Tax Year | Buildings | Actual Value | Local Govt Assessed Value | School Assessed Value |
|---|---|---|---|---|---|---|---|
| R7053798 | 120723203007 | Industrial | 2026 | 1 | 4,815,074 | 1,300,070 | 1,300,070 |
| Reception | Rec Date | Type | Grantor | Grantee | Doc Fee | Sale Date | Sale Price |
|---|---|---|---|---|---|---|---|
| 06-20-2007 | SPR | SITE PLAN REVIEW | SPR-409 | 0.00 | NA | 0 | |
| 1963692 | 02-29-1984 | COZ | WELD COUNTY ZONING | CASE: Z-397 ZONING C-3, I-3, PUD | 0.00 | NA | 0 |
| 2561541 | NA | SUB | SUBDIVISION | RADEMACHER BUS PARK PUD AMD | 0.00 | NA | 0 |
| 3600320 | 01-20-2009 | SWD | ZEEK PARTNERSHIP LLLP | HOAD INC | 290.00 | 01-16-2009 | 2,900,000 |
| 4870825 | 12-07-2022 | AFFD | HOAD INC | WOOD GROUP USA INC | 0.00 | 01-14-2016 | 0 |
| 4870826 | 12-07-2022 | SWD | WOOD GROUP USA INC | 4057 CAMELOT GIP LLC | 600.00 | 12-01-2022 | 6,000,000 |
*If the hyperlink for the reception number does not work, try a manual search in the Clerk and Recorder records. Use the Grantor or Grantee in your search.
| Account | Parcel | Account Type | Tax Year | Buildings | Actual Value | Local Govt Assessed Value | School Assessed Value |
|---|---|---|---|---|---|---|---|
| R7053798 | 120723203007 | Industrial | 2026 | 1 | 4,815,074 | 1,300,070 | 1,300,070 |
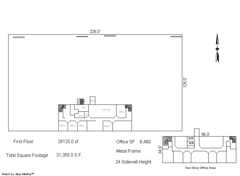
Building 1
| AccountNo | Building ID | Occupancy |
|---|---|---|
| R7053798 | 1 | Warehouse |
| ID | Type | NBHD | Occupancy | % Complete | Bedrooms | Baths |
|---|---|---|---|---|---|---|
| 1 | Commercial | 3925 | Warehouse | 100 | 0 | 0.00 |
| ID | Exterior | Roof Cover | Interior | HVAC | Perimeter | Units | Unit Type | Make |
|---|---|---|---|---|---|---|---|---|
| 1 | NA | NA | NA | Radiant | 700 | 0 | NA | NA |
| ID | Square Ft | Condo SF | Total Basement SF | Finished Basement SF | Garage SF | Carport SF | Balcony SF | Porch SF |
|---|---|---|---|---|---|---|---|---|
| 1 | 31,355 | 0 | 0 | 0 | 0 | 0 | 0 | 0 |
| ID | Built As | Square Ft | Year Built | Stories | Length | Width |
|---|---|---|---|---|---|---|
| 1.00 | Industrial Interior Office Space | 3,230 | 2007 | 1 | 0 | 0 |
| 1.00 | Storage Warehouse | 28,125 | 2007 | 1 | 0 | 0 |
| ID | Detail Type | Description | Units |
|---|---|---|---|
| 1 | Add On | Asphalt Average | 63300.00 |
| 1 | Add On | Concrete Slab Average | 1700.00 |
| 1 | Add On | Loading Wells Excavated Conc Walls & Floor | 1750.00 |
| Account | Parcel | Account Type | Tax Year | Buildings | Actual Value | Local Govt Assessed Value | School Assessed Value |
|---|---|---|---|---|---|---|---|
| R7053798 | 120723203007 | Industrial | 2026 | 1 | 4,815,074 | 1,300,070 | 1,300,070 |
| Type | Code | Description | Actual Value | Local Govt Assessed Value | School Assessed Value | Acres | Land SqFt |
|---|---|---|---|---|---|---|---|
| Improvement | 2235 | WAREHOUSE/STORAGE-IMPS | 4,162,981 | 1,124,000 | 1,124,000 | 0.000 | 0 |
| Land | 2135 | WAREHOUSE/STORAGE-LAND | 652,093 | 176,070 | 176,070 | 2.994 | 130,419 |
| Totals | - | - | 4,815,074 | 1,300,070 | 1,300,070 | 2.994 | 130,419 |
Comparable sales for your Residential or Commercial property may be found using our SALES SEARCH TOOL
Values are updated annually on May 1st for Real Property and June 15th for Personal Property and Oil and Gas.
| Account | Parcel | Account Type | Tax Year | Buildings | Actual Value | Local Govt Assessed Value | School Assessed Value |
|---|---|---|---|---|---|---|---|
| R7053798 | 120723203007 | Industrial | 2026 | 1 | 4,815,074 | 1,300,070 | 1,300,070 |
| Tax Area | District ID | District Name | Local Govt Mill Levy |
School Mill Levy |
Estimated Taxes |
|---|---|---|---|---|---|
| 2335 | 1050 | HIGH PLAINS LIBRARY | 3.044 | 0.000 | $3,957.41 |
| 2335 | 0306 | LITTLE THOMPSON WATER (LTW) | 0.000 | 0.000 | $0.00 |
| 2335 | 1202 | LONGMONT CONSERVATION | 0.000 | 0.000 | $0.00 |
| 2335 | 0512 | MOUNTAIN VIEW FIRE PROTECTION DISTRICT | 16.342 | 0.000 | $21,245.74 |
| 2335 | 0301 | NORTHERN COLORADO WATER (NCW) | 1.000 | 0.000 | $1,300.07 |
| 2335 | 0213 | SCHOOL DIST RE1J-LONGMONT | 0.000 | 57.717 | $75,036.14 |
| 2335 | 0303 | ST VRAIN LEFT HAND WATER (SVW) | 1.406 | 0.000 | $1,827.90 |
| 2335 | 0620 | ST VRAIN SANITATION | 0.316 | 0.000 | $410.82 |
| 2335 | 0100 | WELD COUNTY | 15.956 | 0.000 | $20,743.92 |
| Total | - | - | 38.064 | 57.717 | $124,522.00 |
The estimate of tax is based on the prior year mill levy and the 2025 projected assessment rates. Mill levies and tax estimates will be updated yearly on December 22nd for the current year. Additional information can be found at https://assessor.weld.gov



