Account: R7056898
December 13, 2025
| Account | Parcel | Account Type | Tax Year | Buildings | Actual Value | Local Govt Assessed Value | School Assessed Value |
|---|---|---|---|---|---|---|---|
| R7056898 | 131326202007 | Industrial | 2025 | 1 | 6,376,992 | 1,721,790 | 1,721,790 |
| Legal |
|---|
| FRE 2FWBC L7 BLK2 FREDERICK WEST BUSINESS CENTER FG #2 |
| Subdivision | Block | Lot | Land Economic Area |
|---|---|---|---|
| FREDERICK WEST BUSINESS CENTER FG#2 | 2 | 7 | FREDERICK WEST BUSINESS CENTER |
| Property Address | Property City | Section | Township | Range |
|---|---|---|---|---|
| 7755 MILLER DR | FREDERICK | 26 | 02 | 68 |
| Account | Parcel | Account Type | Tax Year | Buildings | Actual Value | Local Govt Assessed Value | School Assessed Value |
|---|---|---|---|---|---|---|---|
| R7056898 | 131326202007 | Industrial | 2025 | 1 | 6,376,992 | 1,721,790 | 1,721,790 |
| Account | Owner Name | Address |
|---|---|---|
| R7056898 | AQUA-HOT HEATING SYSTEMS LLC | 7755 MILLER DR FREDERICK, CO 805045456 |
| Account | Parcel | Account Type | Tax Year | Buildings | Actual Value | Local Govt Assessed Value | School Assessed Value |
|---|---|---|---|---|---|---|---|
| R7056898 | 131326202007 | Industrial | 2025 | 1 | 6,376,992 | 1,721,790 | 1,721,790 |
| Reception | Rec Date | Type | Grantor | Grantee | Doc Fee | Sale Date | Sale Price |
|---|---|---|---|---|---|---|---|
| 1586446 | 03-28-1972 | WDN | GRANT BROTHERS | 0.00 | 03-28-1972 | 0 | |
| 2577918 | NA | SUB | SUBDIVISION | FREDERICK WEST BUSINESS CENTER FG #2 | 0.00 | NA | 0 |
| 2801834 | 10-23-2000 | WD | GRANT BROTHERS LLP | GDP INC | 4.75 | 10-18-2000 | 47,500 |
| 2801835 | 10-23-2000 | WD | GDP INC | BRALY FAMILY LLC | 15.50 | 10-18-2000 | 155,000 |
| 2969266 | 07-15-2002 | WDN | BRALY FAMILY LLC | OIL WELL LLC | 0.00 | 07-12-2002 | 0 |
| 3320917 | 09-08-2005 | WDN | OIL WELL LLC (49% INT) & | OIL WELL LLC (49% INT) & | 0.00 | 08-30-2005 | 0 |
| 3320918 | 09-08-2005 | WDN | OIL WELL LLC (49% INT) & | OIL WELL LLC (20.5% INT) & | 0.00 | 08-30-2005 | 0 |
| 3320919 | 09-08-2005 | SWD | OIL WELL LLC (20.5% INT) & | 7755 MD LLC | 435.00 | 08-30-2005 | 4,350,000 |
| 3931064 | 05-09-2013 | SWD | 7755 MD LLC | MERRITT COMPANIES LLC | 310.00 | 05-06-2013 | 3,100,000 |
| 4100358 | 04-21-2015 | BOSN | MERRITT COMPANIES LLC; MERRITT PROFESSIONAL PROPERTIES LLC | 7755 MILLER DRIVE LLC | 0.00 | 04-15-2015 | 0 |
| 4102033 | 04-27-2015 | BSDN | MERRITT PROFESSIONAL PROPERTIES LLC | 7755 MILLER DRIVE LLC | 0.00 | 04-15-2015 | 0 |
| 4361214 | 12-19-2017 | SWD | 7755 MILLER DRIVE LLC | ADVANCED PROPERTY SERVICES | 450.00 | 12-19-2017 | 4,500,000 |
| 4844892 | 07-29-2022 | SWD | ADVANCED PROPERTY SERVICES | AQUA-HOT HEATING SYSTEMS LLC | 650.00 | 07-26-2022 | 6,500,000 |
*If the hyperlink for the reception number does not work, try a manual search in the Clerk and Recorder records. Use the Grantor or Grantee in your search.
| Account | Parcel | Account Type | Tax Year | Buildings | Actual Value | Local Govt Assessed Value | School Assessed Value |
|---|---|---|---|---|---|---|---|
| R7056898 | 131326202007 | Industrial | 2025 | 1 | 6,376,992 | 1,721,790 | 1,721,790 |
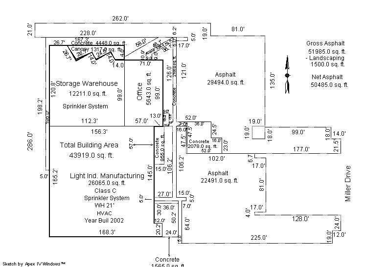
Building 1
| AccountNo | Building ID | Occupancy |
|---|---|---|
| R7056898 | 1 | Warehouse |
| ID | Type | NBHD | Occupancy | % Complete | Bedrooms | Baths |
|---|---|---|---|---|---|---|
| 1 | Commercial | 3913 | Warehouse | 100 | 0 | 0.00 |
| ID | Exterior | Roof Cover | Interior | HVAC | Perimeter | Units | Unit Type | Make |
|---|---|---|---|---|---|---|---|---|
| 1 | NA | NA | NA | Complete HVAC | 947 | 0 | NA | NA |
| ID | Square Ft | Condo SF | Total Basement SF | Finished Basement SF | Garage SF | Carport SF | Balcony SF | Porch SF |
|---|---|---|---|---|---|---|---|---|
| 1 | 43,919 | 0 | 0 | 0 | 0 | 0 | 0 | 0 |
| ID | Built As | Square Ft | Year Built | Stories | Length | Width |
|---|---|---|---|---|---|---|
| 1.00 | Indust Lght Manufacturing | 31,708 | 2002 | 1 | 0 | 0 |
| 1.00 | Storage Warehouse | 12,211 | 2002 | 1 | 0 | 0 |
| ID | Detail Type | Description | Units |
|---|---|---|---|
| 1 | Add On | Asphalt Average | 50485.00 |
| 1 | Add On | Com Canopies Steel Average | 2480.00 |
| 1 | Add On | Concrete Slab Average | 6686.00 |
| 1 | Add On | Loading Docks Filled Conc Walls & Floor | 4448.00 |
| Account | Parcel | Account Type | Tax Year | Buildings | Actual Value | Local Govt Assessed Value | School Assessed Value |
|---|---|---|---|---|---|---|---|
| R7056898 | 131326202007 | Industrial | 2025 | 1 | 6,376,992 | 1,721,790 | 1,721,790 |
| Type | Code | Description | Actual Value | Local Govt Assessed Value | School Assessed Value | Acres | Land SqFt |
|---|---|---|---|---|---|---|---|
| Improvement | 3215 | MANUFACTURED PROCESSING-IMPS | 5,453,084 | 1,472,330 | 1,472,330 | 0.000 | 0 |
| Land | 3115 | MANUFACTURED/PROCESSING-LAND | 923,908 | 249,460 | 249,460 | 3.535 | 153,985 |
| Totals | - | - | 6,376,992 | 1,721,790 | 1,721,790 | 3.535 | 153,985 |
Comparable sales for your Residential or Commercial property may be found using our SALES SEARCH TOOL
Values are updated annually on May 1st for Real Property and June 15th for Personal Property and Oil and Gas.
| Account | Parcel | Account Type | Tax Year | Buildings | Actual Value | Local Govt Assessed Value | School Assessed Value |
|---|---|---|---|---|---|---|---|
| R7056898 | 131326202007 | Industrial | 2025 | 1 | 6,376,992 | 1,721,790 | 1,721,790 |
| Tax Area | District ID | District Name | Local Govt Mill Levy |
School Mill Levy |
Estimated Taxes |
|---|---|---|---|---|---|
| 1459 | 0900 | CARBON VALLEY REC | 4.427 | 0.000 | $7,622.36 |
| 1459 | 0408 | FREDERICK TOWN | 6.555 | 0.000 | $11,286.33 |
| 1459 | 0507 | FREDERICK-FIRESTONE FIRE | 15.534 | 0.000 | $26,746.29 |
| 1459 | 1050 | HIGH PLAINS LIBRARY | 3.179 | 0.000 | $5,473.57 |
| 1459 | 0301 | NORTHERN COLORADO WATER (NCW) | 1.000 | 0.000 | $1,721.79 |
| 1459 | 0213 | SCHOOL DIST RE1J-LONGMONT | 0.000 | 57.168 | $98,431.29 |
| 1459 | 0620 | ST VRAIN SANITATION | 0.316 | 0.000 | $544.09 |
| 1459 | 0100 | WELD COUNTY | 15.956 | 0.000 | $27,472.88 |
| Total | - | - | 46.967 | 57.168 | $179,298.60 |
The estimate of tax is based on the prior year mill levy and the 2025 assessment rates. Mill levies and tax estimates will be updated yearly on December 22nd for the current year. Additional information can be found at https://assessor.weld.gov



