Account: R7101298
April 5, 2026
| Account | Parcel | Account Type | Tax Year | Buildings | Actual Value | Local Govt Assessed Value | School Assessed Value |
|---|---|---|---|---|---|---|---|
| R7101298 | 095926333017 | Residential | 2026 | 1 | 263,109 | 16,440 | 18,550 |
| Legal |
|---|
| 4WHP L17 BLK12 WEST HILL-N-PARK 4TH |
| Subdivision | Block | Lot | Land Economic Area |
|---|---|---|---|
| WEST HILL N PARK 4TH FG | 12 | 17 | HILL N PARK |
| Property Address | Property City | Section | Township | Range |
|---|---|---|---|---|
| 4517 N SHENANDOAH ST | WELD | 26 | 05 | 66 |
| Account | Parcel | Account Type | Tax Year | Buildings | Actual Value | Local Govt Assessed Value | School Assessed Value |
|---|---|---|---|---|---|---|---|
| R7101298 | 095926333017 | Residential | 2026 | 1 | 263,109 | 16,440 | 18,550 |
| Account | Owner Name | Address |
|---|---|---|
| R7101298 | FISCHER ALLEN RAYMOND | 4517 N SHENANDOAH ST GREELEY, CO 806349284 |
| Account | Parcel | Account Type | Tax Year | Buildings | Actual Value | Local Govt Assessed Value | School Assessed Value |
|---|---|---|---|---|---|---|---|
| R7101298 | 095926333017 | Residential | 2026 | 1 | 263,109 | 16,440 | 18,550 |
| Reception | Rec Date | Type | Grantor | Grantee | Doc Fee | Sale Date | Sale Price |
|---|---|---|---|---|---|---|---|
| 1706661 | 12-22-1976 | COZ | WELD COUNTY ZONING | CASE: Z-167* ZONING R-5 | 0.00 | NA | 0 |
| 2512871 | NA | SUB | SUBDIVISION | WEST HILL N PARK 4TH FG | 0.00 | NA | 0 |
| 2623793 | 07-02-1998 | WD | WEST HILL N PARK INC | JENS DALE E & PATRICIA A | 2.50 | 07-02-1998 | 25,000 |
| 2767214 | 05-10-2000 | WD | JENS DALE E & PATRICIA A | WAGNER CLIFFORD L & CHERYLE Y | 13.00 | 05-08-2000 | 130,000 |
| 2767613 | 05-11-2000 | QCN | WAGNER CLIFFORD L & CHERYLE Y | WAGNER CLIFFORD L & CHERYLE Y & GETTMAN | 0.00 | 05-08-2000 | 0 |
| 3302393 | 07-12-2005 | WD | GETTMAN DESIRAE D & | FISCHER ALLEN RAYMOND | 10.10 | 06-28-2005 | 101,000 |
| 4527518 | 09-27-2019 | BN | FISCHER ALLEN RAYMOND | FISCHER ALLEN RAYMOND (BN) | 0.00 | 09-27-2019 | 0 |
*If the hyperlink for the reception number does not work, try a manual search in the Clerk and Recorder records. Use the Grantor or Grantee in your search.
| Account | Parcel | Account Type | Tax Year | Buildings | Actual Value | Local Govt Assessed Value | School Assessed Value |
|---|---|---|---|---|---|---|---|
| R7101298 | 095926333017 | Residential | 2026 | 1 | 263,109 | 16,440 | 18,550 |
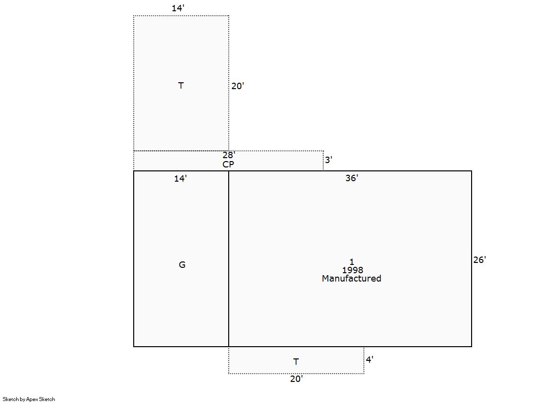
Building 1
| AccountNo | Building ID | Occupancy |
|---|---|---|
| R7101298 | 1 | Single Family Residential |
| ID | Type | NBHD | Occupancy | % Complete | Bedrooms | Baths |
|---|---|---|---|---|---|---|
| 1 | Manufactured Hm | 2R0056 | Single Family Residential | 100 | 3 | 2.00 |
| ID | Exterior | Roof Cover | Interior | HVAC | Perimeter | Units | Unit Type | Make |
|---|---|---|---|---|---|---|---|---|
| 1 | Vinyl Siding | Shingle Comp | Drywall | Forced Air | 124 | 0 | NA | Champion |
| ID | Square Ft | Condo SF | Total Basement SF | Finished Basement SF | Garage SF | Carport SF | Balcony SF | Porch SF |
|---|---|---|---|---|---|---|---|---|
| 1 | 936 | 0 | 0 | 0 | 364 | 0 | 0 | 360 |
| ID | Built As | Square Ft | Year Built | Stories | Length | Width |
|---|---|---|---|---|---|---|
| 1.00 | Mnfctrd Home 1 Story | 936 | 1998 | 1 | 36 | 26 |
| ID | Detail Type | Description | Units |
|---|---|---|---|
| 1 | Add On | Heat Evaporative Coolers | 1.00 |
| 1 | Fixture | Full Bath | 2.00 |
| 1 | Garage | Attached | 364.00 |
| 1 | Porch | Open Slab | 360.00 |
| 1 | Porch | Slab Roof Ceil | 84.00 |
| Account | Parcel | Account Type | Tax Year | Buildings | Actual Value | Local Govt Assessed Value | School Assessed Value |
|---|---|---|---|---|---|---|---|
| R7101298 | 095926333017 | Residential | 2026 | 1 | 263,109 | 16,440 | 18,550 |
| Type | Code | Description | Actual Value | Local Govt Assessed Value | School Assessed Value | Acres | Land SqFt |
|---|---|---|---|---|---|---|---|
| Improvement | 1212 | SINGLE FAMILY RESIDENTIAL IMPROVEMENTS | 183,109 | 11,440 | 12,910 | 0.000 | 0 |
| Land | 1112 | SINGLE FAMILY RESIDENTIAL-LAND | 80,000 | 5,000 | 5,640 | 0.160 | 6,800 |
| Totals | - | - | 263,109 | 16,440 | 18,550 | 0.160 | 6,800 |
Comparable sales for your Residential or Commercial property may be found using our SALES SEARCH TOOL
Values are updated annually on May 1st for Real Property and June 15th for Personal Property and Oil and Gas.
| Account | Parcel | Account Type | Tax Year | Buildings | Actual Value | Local Govt Assessed Value | School Assessed Value |
|---|---|---|---|---|---|---|---|
| R7101298 | 095926333017 | Residential | 2026 | 1 | 263,109 | 16,440 | 18,550 |
| Tax Area | District ID | District Name | Local Govt Mill Levy |
School Mill Levy |
Estimated Taxes |
|---|---|---|---|---|---|
| 5728 | 0700 | AIMS JUNIOR COLLEGE | 6.313 | 0.000 | $103.79 |
| 5728 | 0510 | FRONT RANGE FIRE RESCUE FIRE PROTECTION DISTRICT | 11.483 | 0.000 | $188.78 |
| 5728 | 1050 | HIGH PLAINS LIBRARY | 3.044 | 0.000 | $50.04 |
| 5728 | 0301 | NORTHERN COLORADO WATER (NCW) | 1.000 | 0.000 | $16.44 |
| 5728 | 0206 | SCHOOL DIST 6-GREELEY | 0.000 | 47.615 | $883.26 |
| 5728 | 0100 | WELD COUNTY | 15.956 | 0.000 | $262.32 |
| 5728 | 1200 | WEST GREELEY CONSERVATION | 0.414 | 0.000 | $6.81 |
| Total | - | - | 38.21 | 47.615 | $1,511.43 |
The estimate of tax is based on the prior year mill levy and the 2025 projected assessment rates. Mill levies and tax estimates will be updated yearly on December 22nd for the current year. Additional information can be found at https://assessor.weld.gov


