Account: R7250198

April 1, 2026

Account Parcel Account Type Tax Year Buildings Actual Value Local Govt Assessed Value School Assessed Value
R7250198 080721430005 Residential 2026 1 453,281 28,340 31,960

Legal
WIN 4CS L5 BLK1 CORNERSTONE SUB 4TH FILING

Subdivision Block Lot Land Economic Area
CORNERSTONE SUB 4TH FG 1 5 CORNERSTONE

Property Address Property City Section Township Range
950 EMERALD DR WINDSOR 21 06 67




Account Parcel Account Type Tax Year Buildings Actual Value Local Govt Assessed Value School Assessed Value
R7250198 080721430005 Residential 2026 1 453,281 28,340 31,960

Account Owner Name Address
R7250198 RICE MICHAEL J 950 EMERALD DR WINDSOR, CO 805505492


Account Parcel Account Type Tax Year Buildings Actual Value Local Govt Assessed Value School Assessed Value
R7250198 080721430005 Residential 2026 1 453,281 28,340 31,960

Reception Rec Date Type Grantor Grantee Doc Fee Sale Date Sale Price
2529691 01-17-1997 SWDN ROSE CREEK PROPERTIES LTD WINDSOR-CORNERSTONE LLC 0.00 01-17-1997 0
2533814 NA SUB SUBDIVISION CORNERSTONE 4TH FG 0.00 NA 0
2573762 10-13-1997 WD WINDSOR-CORNERSTONE LLC HOCHSTETLER WAYNE 14.00 10-07-1997 140,000
2579915 11-19-1997 QCN HOCHSTETLER WAYNE HOCHSTETLER WAYNE INC 0.00 11-17-1997 0
2590351 01-22-1998 WDN HOCHSTETLER WAYNE INC T & J BUILDERS INC 0.00 01-21-1998 0
2607851 04-22-1998 WD T & J BUILDERS INC EDWARDS JAMES B & MARY L 13.59 04-17-1998 135,900
2697751 06-02-1999 WD EDWARDS JAMES B & MARY L RICE MICHAEL J 14.75 05-27-1999 147,500



Account Parcel Account Type Tax Year Buildings Actual Value Local Govt Assessed Value School Assessed Value
R7250198 080721430005 Residential 2026 1 453,281 28,340 31,960

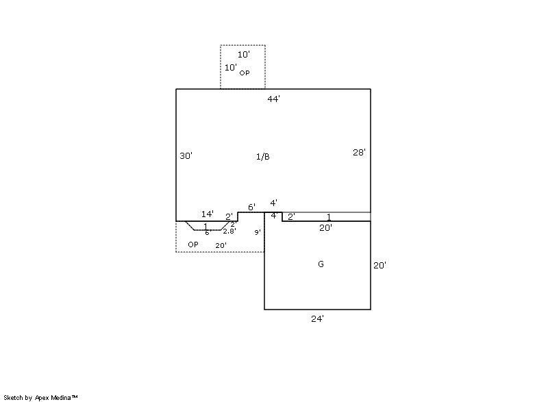
Building 1

AccountNo Building ID Occupancy
R7250198 1 Single Family Residential


ID Type NBHD Occupancy % Complete Bedrooms Baths
1 Residential 2W1005 Single Family Residential 100 3 2.00


ID Exterior Roof Cover Interior HVAC Perimeter Units Unit Type Make
1 Frame Siding Composition Shingle Drywall Forced Air 0 0 NA NA


ID Square Ft Condo SF Total Basement SF Finished Basement SF Garage SF Carport SF Balcony SF Porch SF
1 1,316 0 1,260 0 488 0 0 236


Built As Details for Building 1
ID Built As Square Ft Year Built Stories Length Width
1.00 Ranch 1 Story 1,316 1998 1 0 0


Additional Details for Building 1
ID Detail Type Description Units
1 Add On Fireplace Wood 1.00
1 Basement Total Basement SF 1260.00
1 Fixture Full Bath 2.00
1 Garage Attached 488.00
1 Porch Slab Roof Ceil 236.00
1 Rough In Rough In 1.00





Account Parcel Account Type Tax Year Buildings Actual Value Local Govt Assessed Value School Assessed Value
R7250198 080721430005 Residential 2026 1 453,281 28,340 31,960

Type Code Description Actual Value Local Govt Assessed Value School Assessed Value Acres Land SqFt
Improvement 1212 SINGLE FAMILY RESIDENTIAL IMPROVEMENTS 363,281 22,710 25,610 0.000 0
Land 1112 SINGLE FAMILY RESIDENTIAL-LAND 90,000 5,630 6,350 0.170 7,213
Totals - - 453,281 28,340 31,960 0.170 7,213


Account Parcel Account Type Tax Year Buildings Actual Value Local Govt Assessed Value School Assessed Value
R7250198 080721430005 Residential 2026 1 453,281 28,340 31,960

Tax Area District ID District Name Local Govt
Mill Levy
School
Mill Levy
Estimated
Taxes
0436 0700 AIMS JUNIOR COLLEGE 6.313 0.000 $178.91
0436 1051 CLEARVIEW LIBRARY 3.546 0.000 $100.49
0436 0301 NORTHERN COLORADO WATER (NCW) 1.000 0.000 $28.34
0436 0204 SCHOOL DIST RE4-WINDSOR 0.000 46.646 $1,490.81
0436 0100 WELD COUNTY 15.956 0.000 $452.19
0436 1200 WEST GREELEY CONSERVATION 0.414 0.000 $11.73
0436 0428 WINDSOR TOWN 12.030 0.000 $340.93
0436 0521 WINDSOR-SEVERANCE FIRE 8.535 0.000 $241.88
Total - - 47.794 46.646 $2,845.29


The estimate of tax is based on the prior year mill levy and the 2025 projected assessment rates. Mill levies and tax estimates will be updated yearly on December 22nd for the current year. Additional information can be found at https://assessor.weld.gov










Select Reports to Print: