Account: R7250798

April 1, 2026

Account Parcel Account Type Tax Year Buildings Actual Value Local Govt Assessed Value School Assessed Value
R7250798 080721431001 Residential 2026 1 500,492 31,290 35,290

Legal
WIN 4CS L1 BLK2 CORNERSTONE SUB 4TH FILING

Subdivision Block Lot Land Economic Area
CORNERSTONE SUB 4TH FG 2 1 CORNERSTONE

Property Address Property City Section Township Range
981 EMERALD DR WINDSOR 21 06 67




Account Parcel Account Type Tax Year Buildings Actual Value Local Govt Assessed Value School Assessed Value
R7250798 080721431001 Residential 2026 1 500,492 31,290 35,290

Account Owner Name Address
R7250798 RYAN KYLE E 981 EMERALD DR WINDSOR, CO 805505493
R7250798 MCCORKLE ALEXANDRA


Account Parcel Account Type Tax Year Buildings Actual Value Local Govt Assessed Value School Assessed Value
R7250798 080721431001 Residential 2026 1 500,492 31,290 35,290

Reception Rec Date Type Grantor Grantee Doc Fee Sale Date Sale Price
2529691 01-17-1997 SWDN ROSE CREEK PROPERTIES LTD WINDSOR-CORNERSTONE LLC 0.00 01-17-1997 0
2533814 NA SUB SUBDIVISION CORNERSTONE 4TH FG 0.00 NA 0
2573319 10-09-1997 WD WINDSOR-CORNERSTONE LLC RUST CONSTRUCTION INC 13.75 10-03-1997 137,500
2601875 03-26-1998 WD RUST CONSTRUCTION INC TROILO ROBERT PETER & DAWN R 14.09 03-19-1998 140,900
2712482 08-09-1999 QCN TROILO ROBERT PETER & DAWN R TROILO ROBERT PETER 0.00 07-21-1999 0
2890663 10-09-2001 WD TROILO ROBERT PETER WEEKS PETER B 19.99 10-05-2001 199,900
4279193 02-17-2017 WD WEEKS PETER B OHALLORAN KATE; OHALLORAN SEAN; BAMFORTH BRIAN 30.50 02-16-2017 305,000
4839136 06-30-2022 QCN OHALLORAN MARY SEAN; BAMFORTH DOUGLAS BRIAN; OHALLORAN KATE BAMFORTH DOUGLAS BRIAN; OHALLORAN KATE 0.00 06-29-2022 0
4851797 08-29-2022 WD BAMFORTH DOUGLAS BRIAN; OHALLORAN KATE RYAN KYLE E; MCCORKLE ALEXANDRA 46.60 08-26-2022 466,000



Account Parcel Account Type Tax Year Buildings Actual Value Local Govt Assessed Value School Assessed Value
R7250798 080721431001 Residential 2026 1 500,492 31,290 35,290

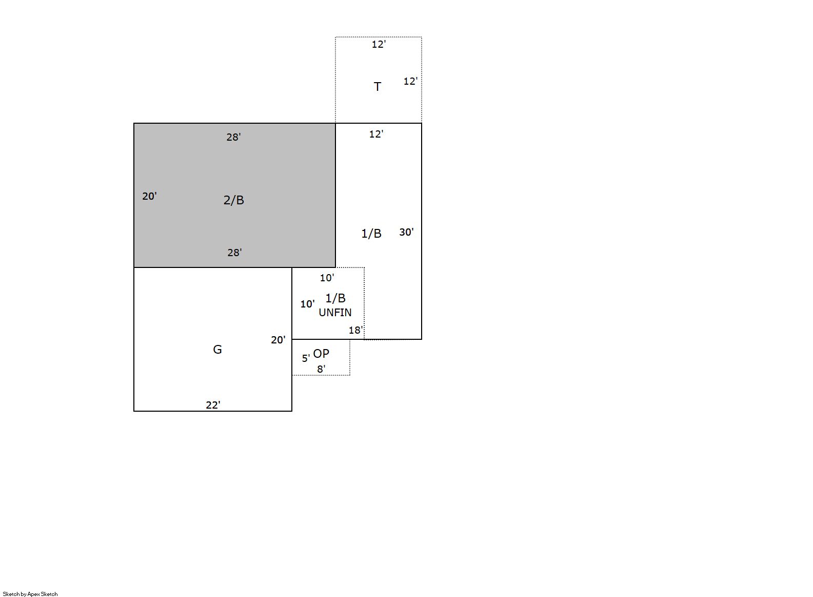
Building 1

AccountNo Building ID Occupancy
R7250798 1 Single Family Residential


ID Type NBHD Occupancy % Complete Bedrooms Baths
1 Residential 2W1005 Single Family Residential 100 4 4.00


ID Exterior Roof Cover Interior HVAC Perimeter Units Unit Type Make
1 Frame Hardboard Composition Shingle Drywall Central Air to Air 236 0 NA NA


ID Square Ft Condo SF Total Basement SF Finished Basement SF Garage SF Carport SF Balcony SF Porch SF
1 1,540 0 980 880 440 0 0 144


Built As Details for Building 1
ID Built As Square Ft Year Built Stories Length Width
1.00 2 Story 1,540 1998 2 0 0


Additional Details for Building 1
ID Detail Type Description Units
1 Add On Fireplace Wood 1.00
1 Basement Finished 880.00
1 Basement Total Basement SF 980.00
1 Fixture Full Bath 3.00
1 Fixture Half Bath 1.00
1 Garage Attached 440.00
1 Porch Open Slab 144.00
1 Porch Slab Roof Ceil 40.00





Account Parcel Account Type Tax Year Buildings Actual Value Local Govt Assessed Value School Assessed Value
R7250798 080721431001 Residential 2026 1 500,492 31,290 35,290

Type Code Description Actual Value Local Govt Assessed Value School Assessed Value Acres Land SqFt
Improvement 1212 SINGLE FAMILY RESIDENTIAL IMPROVEMENTS 410,492 25,660 28,940 0.000 0
Land 1112 SINGLE FAMILY RESIDENTIAL-LAND 90,000 5,630 6,350 0.170 7,594
Totals - - 500,492 31,290 35,290 0.170 7,594


Account Parcel Account Type Tax Year Buildings Actual Value Local Govt Assessed Value School Assessed Value
R7250798 080721431001 Residential 2026 1 500,492 31,290 35,290

Tax Area District ID District Name Local Govt
Mill Levy
School
Mill Levy
Estimated
Taxes
0436 0700 AIMS JUNIOR COLLEGE 6.313 0.000 $197.53
0436 1051 CLEARVIEW LIBRARY 3.546 0.000 $110.95
0436 0301 NORTHERN COLORADO WATER (NCW) 1.000 0.000 $31.29
0436 0204 SCHOOL DIST RE4-WINDSOR 0.000 46.646 $1,646.14
0436 0100 WELD COUNTY 15.956 0.000 $499.26
0436 1200 WEST GREELEY CONSERVATION 0.414 0.000 $12.95
0436 0428 WINDSOR TOWN 12.030 0.000 $376.42
0436 0521 WINDSOR-SEVERANCE FIRE 8.535 0.000 $267.06
Total - - 47.794 46.646 $3,141.61


The estimate of tax is based on the prior year mill levy and the 2025 projected assessment rates. Mill levies and tax estimates will be updated yearly on December 22nd for the current year. Additional information can be found at https://assessor.weld.gov










Select Reports to Print: