Account: R7278598

April 1, 2026

Account Parcel Account Type Tax Year Buildings Actual Value Local Govt Assessed Value School Assessed Value
R7278598 105906401063 Residential 2026 1 442,161 27,630 31,180

Legal
JOH 1RHR L63 ROLLING HILLS RANCH PHASE 1

Subdivision Block Lot Land Economic Area
ROLLING HILLS RANCH PHASE 1 63 ROLLING HILLS RANCH

Property Address Property City Section Township Range
1904 PARKWOOD DR JOHNSTOWN 06 04 67




Account Parcel Account Type Tax Year Buildings Actual Value Local Govt Assessed Value School Assessed Value
R7278598 105906401063 Residential 2026 1 442,161 27,630 31,180

Account Owner Name Address
R7278598 ALVARDO ELIZABETH A 1904 PARKWOOD DR JOHNSTOWN, CO 805348322
R7278598 ALVARADO ALEX


Account Parcel Account Type Tax Year Buildings Actual Value Local Govt Assessed Value School Assessed Value
R7278598 105906401063 Residential 2026 1 442,161 27,630 31,180

Reception Rec Date Type Grantor Grantee Doc Fee Sale Date Sale Price
2542998 NA SUB SUBDIVISION ROLLING HILLS RANCH PHASE 1 0.00 NA 0
2613007 05-15-1998 WD ROLLING HILLS RANCH LLC T & J BUILDERS INC 11.92 05-06-1998 119,200
2736010 12-02-1999 WDN T & J BUILDERS INC DRAKE LUCIUS C JR 0.00 04-30-1999 0
2946445 04-29-2002 WD DRAKE LUCIUS C JR MORRISSEY ELIZABETH A 19.32 04-25-2002 193,200
4532829 10-16-2019 QCN MORRISSEY ELIZABETH A ALVARDO ELIZABETH A; ALVARADO ALEX 0.00 10-08-2019 0



Account Parcel Account Type Tax Year Buildings Actual Value Local Govt Assessed Value School Assessed Value
R7278598 105906401063 Residential 2026 1 442,161 27,630 31,180

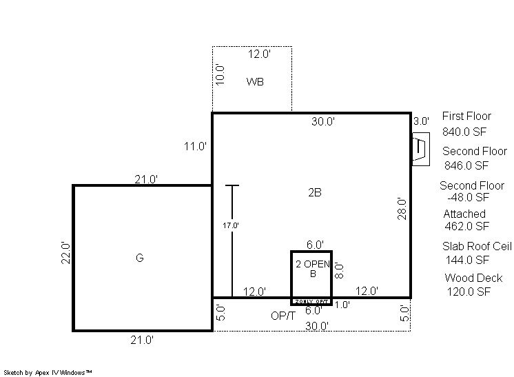
Building 1

AccountNo Building ID Occupancy
R7278598 1 Single Family Residential


ID Type NBHD Occupancy % Complete Bedrooms Baths
1 Residential 0J0071 Single Family Residential 100 3 3.00


ID Exterior Roof Cover Interior HVAC Perimeter Units Unit Type Make
1 Frame Hardboard Composition Shingle Drywall Forced Air 0 0 NA NA


ID Square Ft Condo SF Total Basement SF Finished Basement SF Garage SF Carport SF Balcony SF Porch SF
1 1,638 0 840 0 462 0 120 144


Built As Details for Building 1
ID Built As Square Ft Year Built Stories Length Width
1.00 2 Story 1,638 1999 1 0 0


Additional Details for Building 1
ID Detail Type Description Units
1 Add On Fireplace Gas 1.00
1 Balcony Wood Wood Fin 120.00
1 Basement Total Basement SF 840.00
1 Fixture Full Bath 2.00
1 Fixture Half Bath 1.00
1 Garage Attached 462.00
1 Porch Slab Roof Ceil 144.00
1 Rough In Rough In 1.00





Account Parcel Account Type Tax Year Buildings Actual Value Local Govt Assessed Value School Assessed Value
R7278598 105906401063 Residential 2026 1 442,161 27,630 31,180

Type Code Description Actual Value Local Govt Assessed Value School Assessed Value Acres Land SqFt
Improvement 1212 SINGLE FAMILY RESIDENTIAL IMPROVEMENTS 329,161 20,570 23,210 0.000 0
Land 1112 SINGLE FAMILY RESIDENTIAL-LAND 113,000 7,060 7,970 0.150 6,553
Totals - - 442,161 27,630 31,180 0.150 6,553


Account Parcel Account Type Tax Year Buildings Actual Value Local Govt Assessed Value School Assessed Value
R7278598 105906401063 Residential 2026 1 442,161 27,630 31,180

Tax Area District ID District Name Local Govt
Mill Levy
School
Mill Levy
Estimated
Taxes
0567 0700 AIMS JUNIOR COLLEGE 6.313 0.000 $174.43
0567 0510 FRONT RANGE FIRE RESCUE FIRE PROTECTION DISTRICT 11.483 0.000 $317.28
0567 0414 JOHNSTOWN TOWN 23.947 0.000 $661.66
0567 0301 NORTHERN COLORADO WATER (NCW) 1.000 0.000 $27.63
0567 0205 SCHOOL DIST RE5J-JOHNSTOWN 0.000 36.271 $1,130.93
0567 0901 THOMPSON RIVER REC 3.594 0.000 $99.30
0567 0100 WELD COUNTY 15.956 0.000 $440.86
Total - - 62.293 36.271 $2,852.09


The estimate of tax is based on the prior year mill levy and the 2025 projected assessment rates. Mill levies and tax estimates will be updated yearly on December 22nd for the current year. Additional information can be found at https://assessor.weld.gov










Select Reports to Print: