Account: R7280398
April 5, 2026
| Account | Parcel | Account Type | Tax Year | Buildings | Actual Value | Local Govt Assessed Value | School Assessed Value |
|---|---|---|---|---|---|---|---|
| R7280398 | 105906401081 | Residential | 2026 | 1 | 415,983 | 26,000 | 29,330 |
| Legal |
|---|
| JOH 1RHR L81 ROLLING HILLS RANCH PHASE 1 |
| Subdivision | Block | Lot | Land Economic Area |
|---|---|---|---|
| ROLLING HILLS RANCH PHASE 1 | 81 | ROLLING HILLS RANCH |
| Property Address | Property City | Section | Township | Range |
|---|---|---|---|---|
| 2041 PARKWOOD DR | JOHNSTOWN | 06 | 04 | 67 |
| Account | Parcel | Account Type | Tax Year | Buildings | Actual Value | Local Govt Assessed Value | School Assessed Value |
|---|---|---|---|---|---|---|---|
| R7280398 | 105906401081 | Residential | 2026 | 1 | 415,983 | 26,000 | 29,330 |
| Account | Owner Name | Address |
|---|---|---|
| R7280398 | BRICE ENTERPRISES LLC | 215 FLY LINE DR SILVERTHORNE, CO 804988997 |
| Account | Parcel | Account Type | Tax Year | Buildings | Actual Value | Local Govt Assessed Value | School Assessed Value |
|---|---|---|---|---|---|---|---|
| R7280398 | 105906401081 | Residential | 2026 | 1 | 415,983 | 26,000 | 29,330 |
| Reception | Rec Date | Type | Grantor | Grantee | Doc Fee | Sale Date | Sale Price |
|---|---|---|---|---|---|---|---|
| 2542998 | NA | SUB | SUBDIVISION | ROLLING HILLS RANCH PHASE 1 | 0.00 | NA | 0 |
| 2566071 | 08-29-1997 | WD | ROLLING HILLS RANCH LLC | T & J BUILDERS INC | 51.86 | 08-22-1997 | 518,600 |
| 2615951 | 05-29-1998 | WD | T & J BUILDERS INC | REMMERDE JASON & CARI | 11.82 | 05-22-1998 | 118,200 |
| 2890871 | 10-10-2001 | WD | REMMERDE JASON & CARI | DENNIS MICHELLE E | 18.60 | 09-27-2001 | 186,000 |
| 3488508 | 07-06-2007 | WD | DENNIS MICHELLE E | GRSWFRS REAL ESTATE TRUST DTD 1/1/06 | 18.73 | 12-14-2006 | 187,300 |
| 3488509 | 07-06-2007 | WD | GRSWFRS REAL ESTATE TRUST DTD 1/1/06 | RUTT DENISE E | 18.35 | 12-19-2006 | 183,500 |
| 3967067 | 09-30-2013 | PTDE | RUTT DENISE E | BRICE ENTERPRISES LLC | 0.00 | 09-27-2013 | 0 |
*If the hyperlink for the reception number does not work, try a manual search in the Clerk and Recorder records. Use the Grantor or Grantee in your search.
| Account | Parcel | Account Type | Tax Year | Buildings | Actual Value | Local Govt Assessed Value | School Assessed Value |
|---|---|---|---|---|---|---|---|
| R7280398 | 105906401081 | Residential | 2026 | 1 | 415,983 | 26,000 | 29,330 |
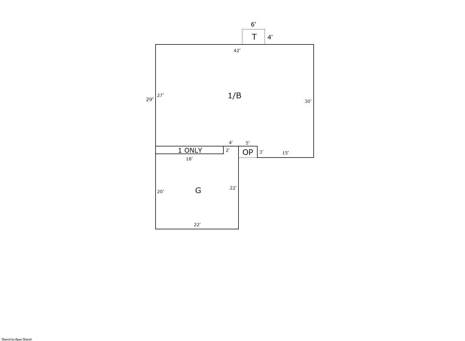
Building 1
| AccountNo | Building ID | Occupancy |
|---|---|---|
| R7280398 | 1 | Single Family Residential |
| ID | Type | NBHD | Occupancy | % Complete | Bedrooms | Baths |
|---|---|---|---|---|---|---|
| 1 | Residential | 0J0071 | Single Family Residential | 100 | 3 | 2.00 |
| ID | Exterior | Roof Cover | Interior | HVAC | Perimeter | Units | Unit Type | Make |
|---|---|---|---|---|---|---|---|---|
| 1 | Frame Hardboard | Composition Shingle | Drywall | Central Air to Air | 148 | 0 | NA | NA |
| ID | Square Ft | Condo SF | Total Basement SF | Finished Basement SF | Garage SF | Carport SF | Balcony SF | Porch SF |
|---|---|---|---|---|---|---|---|---|
| 1 | 1,215 | 0 | 1,179 | 0 | 448 | 0 | 0 | 24 |
| ID | Built As | Square Ft | Year Built | Stories | Length | Width |
|---|---|---|---|---|---|---|
| 1.00 | Ranch 1 Story | 1,215 | 1998 | 1 | 0 | 0 |
| ID | Detail Type | Description | Units |
|---|---|---|---|
| 1 | Basement | Total Basement SF | 1179.00 |
| 1 | Fixture | Full Bath | 2.00 |
| 1 | Garage | Attached | 448.00 |
| 1 | Porch | Open Slab | 24.00 |
| 1 | Porch | Slab Roof Ceil | 15.00 |
| 1 | Rough In | Rough In | 1.00 |
| Account | Parcel | Account Type | Tax Year | Buildings | Actual Value | Local Govt Assessed Value | School Assessed Value |
|---|---|---|---|---|---|---|---|
| R7280398 | 105906401081 | Residential | 2026 | 1 | 415,983 | 26,000 | 29,330 |
| Type | Code | Description | Actual Value | Local Govt Assessed Value | School Assessed Value | Acres | Land SqFt |
|---|---|---|---|---|---|---|---|
| Improvement | 1212 | SINGLE FAMILY RESIDENTIAL IMPROVEMENTS | 302,983 | 18,940 | 21,360 | 0.000 | 0 |
| Land | 1112 | SINGLE FAMILY RESIDENTIAL-LAND | 113,000 | 7,060 | 7,970 | 0.180 | 7,661 |
| Totals | - | - | 415,983 | 26,000 | 29,330 | 0.180 | 7,661 |
Comparable sales for your Residential or Commercial property may be found using our SALES SEARCH TOOL
Values are updated annually on May 1st for Real Property and June 15th for Personal Property and Oil and Gas.
| Account | Parcel | Account Type | Tax Year | Buildings | Actual Value | Local Govt Assessed Value | School Assessed Value |
|---|---|---|---|---|---|---|---|
| R7280398 | 105906401081 | Residential | 2026 | 1 | 415,983 | 26,000 | 29,330 |
| Tax Area | District ID | District Name | Local Govt Mill Levy |
School Mill Levy |
Estimated Taxes |
|---|---|---|---|---|---|
| 0567 | 0700 | AIMS JUNIOR COLLEGE | 6.313 | 0.000 | $164.14 |
| 0567 | 0510 | FRONT RANGE FIRE RESCUE FIRE PROTECTION DISTRICT | 11.483 | 0.000 | $298.56 |
| 0567 | 0414 | JOHNSTOWN TOWN | 23.947 | 0.000 | $622.62 |
| 0567 | 0301 | NORTHERN COLORADO WATER (NCW) | 1.000 | 0.000 | $26.00 |
| 0567 | 0205 | SCHOOL DIST RE5J-JOHNSTOWN | 0.000 | 36.271 | $1,063.83 |
| 0567 | 0901 | THOMPSON RIVER REC | 3.594 | 0.000 | $93.44 |
| 0567 | 0100 | WELD COUNTY | 15.956 | 0.000 | $414.86 |
| Total | - | - | 62.293 | 36.271 | $2,683.45 |
The estimate of tax is based on the prior year mill levy and the 2025 projected assessment rates. Mill levies and tax estimates will be updated yearly on December 22nd for the current year. Additional information can be found at https://assessor.weld.gov


