Account: R7294598
April 1, 2026
| Account | Parcel | Account Type | Tax Year | Buildings | Actual Value | Local Govt Assessed Value | School Assessed Value |
|---|---|---|---|---|---|---|---|
| R7294598 | 105911301006 | Residential | 2026 | 1 | 447,817 | 27,990 | 31,570 |
| Legal |
|---|
| MIL 3WM L6 BLK1 WAL MAR 3RD SUB |
| Subdivision | Block | Lot | Land Economic Area |
|---|---|---|---|
| WAL MAR 3RD SUB | 1 | 6 | WAL MAR |
| Property Address | Property City | Section | Township | Range |
|---|---|---|---|---|
| 281 E HAWTHORNE ST | MILLIKEN | 11 | 04 | 67 |
| Account | Parcel | Account Type | Tax Year | Buildings | Actual Value | Local Govt Assessed Value | School Assessed Value |
|---|---|---|---|---|---|---|---|
| R7294598 | 105911301006 | Residential | 2026 | 1 | 447,817 | 27,990 | 31,570 |
| Account | Owner Name | Address |
|---|---|---|
| R7294598 | ACEVEDO NICOLE ANDREA | 281 E HAWTHORNE ST MILLIKEN, CO 805439101 |
| R7294598 | ACEVEDO RAYMOND JON |
| Account | Parcel | Account Type | Tax Year | Buildings | Actual Value | Local Govt Assessed Value | School Assessed Value |
|---|---|---|---|---|---|---|---|
| R7294598 | 105911301006 | Residential | 2026 | 1 | 447,817 | 27,990 | 31,570 |
| Reception | Rec Date | Type | Grantor | Grantee | Doc Fee | Sale Date | Sale Price |
|---|---|---|---|---|---|---|---|
| 2535263 | NA | SUB | SUBDIVISION | WAL MAR 3RD | 0.00 | NA | 0 |
| 2604326 | 04-03-1998 | WD | WAL MAR THIRD LLC | WILLIAMS WILLIAM C & MARIA R | 2.20 | 04-01-1998 | 22,000 |
| 2845444 | 05-02-2001 | WD | WILLIAMS WILLIAM C & MARIA R | ELDREDGE IAN E & SANFORD WESTON T | 16.45 | 04-30-2001 | 164,500 |
| 3514481 | 10-31-2007 | QCN | ELDREDGE IAN E & | ELDREDGE IAN E | 0.00 | 10-26-2007 | 0 |
| 3777839 | 07-06-2011 | WD | ELDREDGE IAN E | ACEVEDO RAYMOND JON | 16.25 | 06-30-2011 | 162,500 |
*If the hyperlink for the reception number does not work, try a manual search in the Clerk and Recorder records. Use the Grantor or Grantee in your search.
| Account | Parcel | Account Type | Tax Year | Buildings | Actual Value | Local Govt Assessed Value | School Assessed Value |
|---|---|---|---|---|---|---|---|
| R7294598 | 105911301006 | Residential | 2026 | 1 | 447,817 | 27,990 | 31,570 |
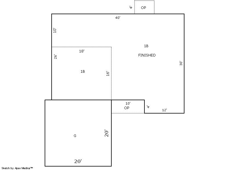
Building 1
| AccountNo | Building ID | Occupancy |
|---|---|---|
| R7294598 | 1 | Single Family Residential |
| ID | Type | NBHD | Occupancy | % Complete | Bedrooms | Baths |
|---|---|---|---|---|---|---|
| 1 | Residential | 0M2071 | Single Family Residential | 100 | 4 | 3.00 |
| ID | Exterior | Roof Cover | Interior | HVAC | Perimeter | Units | Unit Type | Make |
|---|---|---|---|---|---|---|---|---|
| 1 | Frame Hardboard | Composition Shingle | Drywall | Central Air to Air | 0 | 0 | NA | NA |
| ID | Square Ft | Condo SF | Total Basement SF | Finished Basement SF | Garage SF | Carport SF | Balcony SF | Porch SF |
|---|---|---|---|---|---|---|---|---|
| 1 | 1,088 | 0 | 1,088 | 800 | 400 | 0 | 0 | 64 |
| ID | Built As | Square Ft | Year Built | Stories | Length | Width |
|---|---|---|---|---|---|---|
| 1.00 | Ranch 1 Story | 1,088 | 1998 | 1 | 0 | 0 |
| ID | Detail Type | Description | Units |
|---|---|---|---|
| 1 | Basement | Finished | 800.00 |
| 1 | Basement | Total Basement SF | 1088.00 |
| 1 | Fixture | Full Bath | 3.00 |
| 1 | Fixture | Wet Bar | 1.00 |
| 1 | Garage | Attached | 400.00 |
| 1 | Porch | Slab Roof Ceil | 64.00 |
| Account | Parcel | Account Type | Tax Year | Buildings | Actual Value | Local Govt Assessed Value | School Assessed Value |
|---|---|---|---|---|---|---|---|
| R7294598 | 105911301006 | Residential | 2026 | 1 | 447,817 | 27,990 | 31,570 |
| Type | Code | Description | Actual Value | Local Govt Assessed Value | School Assessed Value | Acres | Land SqFt |
|---|---|---|---|---|---|---|---|
| Improvement | 1212 | SINGLE FAMILY RESIDENTIAL IMPROVEMENTS | 353,817 | 22,110 | 24,940 | 0.000 | 0 |
| Land | 1112 | SINGLE FAMILY RESIDENTIAL-LAND | 94,000 | 5,880 | 6,630 | 0.190 | 8,331 |
| Totals | - | - | 447,817 | 27,990 | 31,570 | 0.190 | 8,331 |
Comparable sales for your Residential or Commercial property may be found using our SALES SEARCH TOOL
Values are updated annually on May 1st for Real Property and June 15th for Personal Property and Oil and Gas.
| Account | Parcel | Account Type | Tax Year | Buildings | Actual Value | Local Govt Assessed Value | School Assessed Value |
|---|---|---|---|---|---|---|---|
| R7294598 | 105911301006 | Residential | 2026 | 1 | 447,817 | 27,990 | 31,570 |
| Tax Area | District ID | District Name | Local Govt Mill Levy |
School Mill Levy |
Estimated Taxes |
|---|---|---|---|---|---|
| 5731 | 0700 | AIMS JUNIOR COLLEGE | 6.313 | 0.000 | $176.70 |
| 5731 | 0510 | FRONT RANGE FIRE RESCUE FIRE PROTECTION DISTRICT | 11.483 | 0.000 | $321.41 |
| 5731 | 1050 | HIGH PLAINS LIBRARY | 3.044 | 0.000 | $85.20 |
| 5731 | 0306 | LITTLE THOMPSON WATER (LTW) | 0.000 | 0.000 | $0.00 |
| 5731 | 0421 | MILLIKEN TOWN | 26.301 | 0.000 | $736.16 |
| 5731 | 0301 | NORTHERN COLORADO WATER (NCW) | 1.000 | 0.000 | $27.99 |
| 5731 | 0205 | SCHOOL DIST RE5J-JOHNSTOWN | 0.000 | 36.271 | $1,145.08 |
| 5731 | 0901 | THOMPSON RIVER REC | 3.594 | 0.000 | $100.60 |
| 5731 | 0100 | WELD COUNTY | 15.956 | 0.000 | $446.61 |
| Total | - | - | 67.691 | 36.271 | $3,039.75 |
The estimate of tax is based on the prior year mill levy and the 2025 projected assessment rates. Mill levies and tax estimates will be updated yearly on December 22nd for the current year. Additional information can be found at https://assessor.weld.gov



