Account: R7315198

April 1, 2026

Account Parcel Account Type Tax Year Buildings Actual Value Local Govt Assessed Value School Assessed Value
R7315198 105911312018 Residential 2026 1 450,726 28,180 31,780

Legal
MIL 3WM L18 BLK12 WAL MAR 3RD SUB

Subdivision Block Lot Land Economic Area
WAL MAR 3RD SUB 12 18 WAL MAR

Property Address Property City Section Township Range
100 MOUNTAIN ASH CT MILLIKEN 11 04 67




Account Parcel Account Type Tax Year Buildings Actual Value Local Govt Assessed Value School Assessed Value
R7315198 105911312018 Residential 2026 1 450,726 28,180 31,780

Account Owner Name Address
R7315198 ADAMS BRANDON 100 MOUNTAIN ASH CT MILLIKEN, CO 805439157
R7315198 ADAMS MELISSA


Account Parcel Account Type Tax Year Buildings Actual Value Local Govt Assessed Value School Assessed Value
R7315198 105911312018 Residential 2026 1 450,726 28,180 31,780

Reception Rec Date Type Grantor Grantee Doc Fee Sale Date Sale Price
2535263 NA SUB SUBDIVISION WAL MAR 3RD 0.00 NA 0
2723087 09-28-1999 WD WAL MAR THIRD LLC BEARD THOMAS D & JULIE A 2.80 09-23-1999 28,000
3484997 06-21-2007 WD BEARD THOMAS D & JULIE A CONRAD DANIEL M & 17.50 06-21-2007 175,000
3661322 11-23-2009 QCN TASCA HEATHER E CONRAD DANIEL M 0.00 11-17-2009 0
3703253 07-01-2010 WD CONRAD DANIEL M SIPNEFSKI ROBERT A 17.50 06-30-2010 175,000
4012515 04-29-2014 WDE SIPNEFSKI ROBERT A ROTH MICHAEL 20.00 04-22-2014 200,000
4139270 09-03-2015 WD ROTH MICHAEL; ROTH HEATHER ADAMS MELISSA; ADAMS BRANDON 22.30 09-02-2015 223,000



Account Parcel Account Type Tax Year Buildings Actual Value Local Govt Assessed Value School Assessed Value
R7315198 105911312018 Residential 2026 1 450,726 28,180 31,780

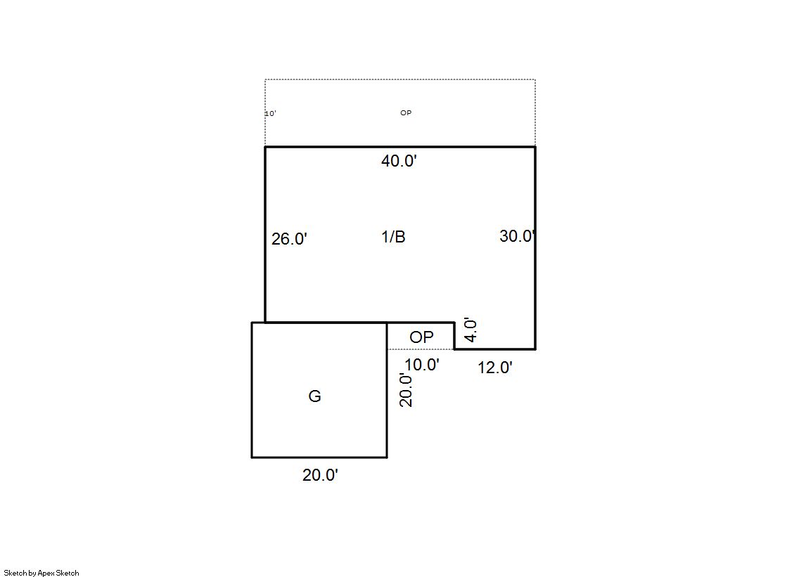
Building 1

AccountNo Building ID Occupancy
R7315198 1 Single Family Residential


ID Type NBHD Occupancy % Complete Bedrooms Baths
1 Residential 0M2071 Single Family Residential 100 4 3.00


ID Exterior Roof Cover Interior HVAC Perimeter Units Unit Type Make
1 Frame Hardboard Composition Shingle Drywall Central Air to Air 0 0 NA NA


ID Square Ft Condo SF Total Basement SF Finished Basement SF Garage SF Carport SF Balcony SF Porch SF
1 1,088 0 1,088 1,088 400 0 0 440


Built As Details for Building 1
ID Built As Square Ft Year Built Stories Length Width
1.00 Ranch 1 Story 1,088 1999 1 0 0


Additional Details for Building 1
ID Detail Type Description Units
1 Basement Finished 1088.00
1 Basement Total Basement SF 1088.00
1 Fixture Full Bath 3.00
1 Garage Attached 400.00
1 Porch Slab Roof Ceil 440.00





Account Parcel Account Type Tax Year Buildings Actual Value Local Govt Assessed Value School Assessed Value
R7315198 105911312018 Residential 2026 1 450,726 28,180 31,780

Type Code Description Actual Value Local Govt Assessed Value School Assessed Value Acres Land SqFt
Improvement 1212 SINGLE FAMILY RESIDENTIAL IMPROVEMENTS 356,726 22,300 25,150 0.000 0
Land 1112 SINGLE FAMILY RESIDENTIAL-LAND 94,000 5,880 6,630 0.170 7,405
Totals - - 450,726 28,180 31,780 0.170 7,405


Account Parcel Account Type Tax Year Buildings Actual Value Local Govt Assessed Value School Assessed Value
R7315198 105911312018 Residential 2026 1 450,726 28,180 31,780

Tax Area District ID District Name Local Govt
Mill Levy
School
Mill Levy
Estimated
Taxes
5731 0700 AIMS JUNIOR COLLEGE 6.313 0.000 $177.90
5731 0510 FRONT RANGE FIRE RESCUE FIRE PROTECTION DISTRICT 11.483 0.000 $323.59
5731 1050 HIGH PLAINS LIBRARY 3.044 0.000 $85.78
5731 0306 LITTLE THOMPSON WATER (LTW) 0.000 0.000 $0.00
5731 0421 MILLIKEN TOWN 26.301 0.000 $741.16
5731 0301 NORTHERN COLORADO WATER (NCW) 1.000 0.000 $28.18
5731 0205 SCHOOL DIST RE5J-JOHNSTOWN 0.000 36.271 $1,152.69
5731 0901 THOMPSON RIVER REC 3.594 0.000 $101.28
5731 0100 WELD COUNTY 15.956 0.000 $449.64
Total - - 67.691 36.271 $3,060.22


The estimate of tax is based on the prior year mill levy and the 2025 projected assessment rates. Mill levies and tax estimates will be updated yearly on December 22nd for the current year. Additional information can be found at https://assessor.weld.gov










Select Reports to Print: