Account: R7379998

April 1, 2026

Account Parcel Account Type Tax Year Buildings Actual Value Local Govt Assessed Value School Assessed Value
R7379998 146707404013 Residential 2026 1 865,851 54,110 61,040

Legal
ERI 3NR L13 BLK2 NORTHRIDGE SUB FIL #3

Subdivision Block Lot Land Economic Area
NORTHRIDGE FG#3 2 13 NORTHRIDGE

Property Address Property City Section Township Range
338 BAKER LN ERIE 07 01 68




Account Parcel Account Type Tax Year Buildings Actual Value Local Govt Assessed Value School Assessed Value
R7379998 146707404013 Residential 2026 1 865,851 54,110 61,040

Account Owner Name Address
R7379998 ABATE PATRICK 338 BAKER LN ERIE, CO 805169065
R7379998 ABATE LAURA A


Account Parcel Account Type Tax Year Buildings Actual Value Local Govt Assessed Value School Assessed Value
R7379998 146707404013 Residential 2026 1 865,851 54,110 61,040

Reception Rec Date Type Grantor Grantee Doc Fee Sale Date Sale Price
2352114 09-27-1993 DN MORTON THOMAS S & 0.00 09-27-1993 0
2543617 NA SUB SUBDIVISION NORTHRIDGE FG #3 0.00 NA 0
2707423 07-19-1999 WD MORTON THOMAS S & NORTON JAMES SHEFFIELD HOMES NORTHRIDGE LLC 14.00 06-30-1999 140,000
2758865 03-31-2000 WD SHEFFIELD HOMES NORTHRIDGE LLC ABATE PATRICK & LAURA A 36.98 03-24-2000 369,800



Account Parcel Account Type Tax Year Buildings Actual Value Local Govt Assessed Value School Assessed Value
R7379998 146707404013 Residential 2026 1 865,851 54,110 61,040

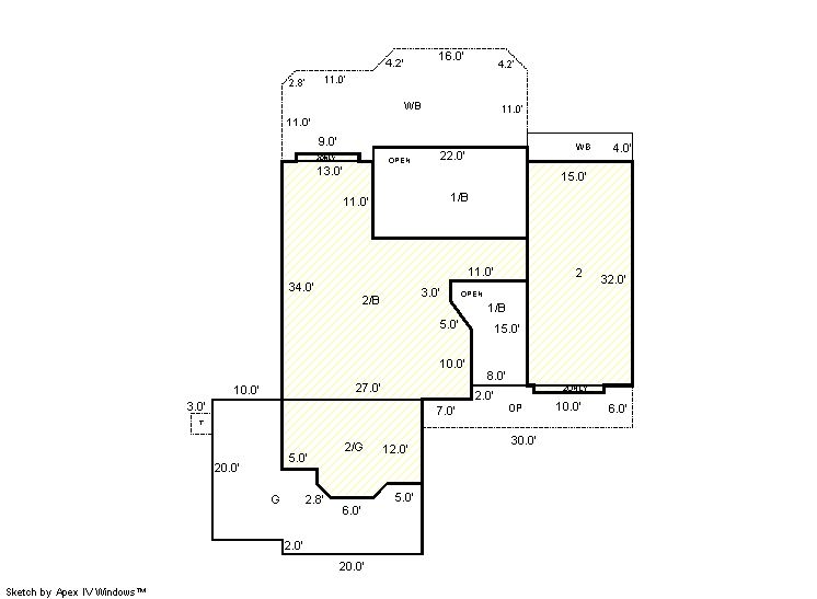
Building 1

AccountNo Building ID Occupancy
R7379998 1 Single Family Residential


ID Type NBHD Occupancy % Complete Bedrooms Baths
1 Residential 3R0011 Single Family Residential 100 4 4.00


ID Exterior Roof Cover Interior HVAC Perimeter Units Unit Type Make
1 Frame Siding Composition Shingle Drywall Central Air to Air 0 0 NA NA


ID Square Ft Condo SF Total Basement SF Finished Basement SF Garage SF Carport SF Balcony SF Porch SF
1 3,240 0 1,218 0 640 0 526 166


Built As Details for Building 1
ID Built As Square Ft Year Built Stories Length Width
1.00 2 Story 3,240 1999 2 0 0


Additional Details for Building 1
ID Detail Type Description Units
1 Add On Fireplace Gas 1.00
1 Balcony Wood Wood Fin 526.00
1 Basement Total Basement SF 1218.00
1 Fixture Full Bath 4.00
1 Garage Attached 640.00
1 Porch Open Slab 9.00
1 Porch Slab Roof Ceil 166.00
1 Rough In Rough In 1.00





Account Parcel Account Type Tax Year Buildings Actual Value Local Govt Assessed Value School Assessed Value
R7379998 146707404013 Residential 2026 1 865,851 54,110 61,040

Type Code Description Actual Value Local Govt Assessed Value School Assessed Value Acres Land SqFt
Improvement 1212 SINGLE FAMILY RESIDENTIAL IMPROVEMENTS 680,851 42,550 48,000 0.000 0
Land 1112 SINGLE FAMILY RESIDENTIAL-LAND 185,000 11,560 13,040 0.247 10,762
Totals - - 865,851 54,110 61,040 0.247 10,762


Account Parcel Account Type Tax Year Buildings Actual Value Local Govt Assessed Value School Assessed Value
R7379998 146707404013 Residential 2026 1 865,851 54,110 61,040

Tax Area District ID District Name Local Govt
Mill Levy
School
Mill Levy
Estimated
Taxes
3207 0404 ERIE TOWN 13.237 0.000 $716.25
3207 1050 HIGH PLAINS LIBRARY 3.044 0.000 $164.71
3207 0512 MOUNTAIN VIEW FIRE PROTECTION DISTRICT 16.342 0.000 $884.27
3207 0301 NORTHERN COLORADO WATER (NCW) 1.000 0.000 $54.11
3207 1360 RTD 0.000 0.000 $0.00
3207 0213 SCHOOL DIST RE1J-LONGMONT 0.000 57.717 $3,523.05
3207 0100 WELD COUNTY 15.956 0.000 $863.38
Total - - 49.579 57.717 $6,205.77


The estimate of tax is based on the prior year mill levy and the 2025 projected assessment rates. Mill levies and tax estimates will be updated yearly on December 22nd for the current year. Additional information can be found at https://assessor.weld.gov










Select Reports to Print: