Account: R7408898

April 1, 2026

Account Parcel Account Type Tax Year Buildings Actual Value Local Govt Assessed Value School Assessed Value
R7408898 147112303002 Residential 2026 2 693,282 43,330 48,880

Legal
BRE L2 BLK3 BUFFALO RIDGE ESTATES

Subdivision Block Lot Land Economic Area
BUFFALO RIDGE ESTATES 3 2 BUFFALO RIDGE

Property Address Property City Section Township Range
4088 MEADOW LARK RD WELD 12 01 66




Account Parcel Account Type Tax Year Buildings Actual Value Local Govt Assessed Value School Assessed Value
R7408898 147112303002 Residential 2026 2 693,282 43,330 48,880

Account Owner Name Address
R7408898 ADAMS CHARLES T 4088 MEADOW LARK RD FORT LUPTON, CO 806217766
R7408898 ADAMS CHRISTY L


Account Parcel Account Type Tax Year Buildings Actual Value Local Govt Assessed Value School Assessed Value
R7408898 147112303002 Residential 2026 2 693,282 43,330 48,880

Reception Rec Date Type Grantor Grantee Doc Fee Sale Date Sale Price
1683877 03-19-1976 WDN MARTIN BROS 0.00 03-19-1976 0
2467259 10-30-1995 COZ WELD COUNTY ZONING CASE: Z-494 ZONING E 0.00 NA 0
2566278 NA SUB SUBDIVISION BUFFALO RIDGE ESTATES 0.00 NA 0
4132559 08-11-2015 QCN MARTIN BROS MARTIN BROTHERS LLC 0.00 10-15-2014 0
4140539 09-09-2015 WD MARTIN BROTHERS LLC BAESSLER HOMES LLLP 7.70 09-03-2015 77,000
4177990 02-03-2016 SWD BAESSLER HOMES LLLP ADAMS CHARLES T; ADAMS CHRISTY L 41.34 01-29-2016 413,400



Account Parcel Account Type Tax Year Buildings Actual Value Local Govt Assessed Value School Assessed Value
R7408898 147112303002 Residential 2026 2 693,282 43,330 48,880

Building 1

AccountNo Building ID Occupancy
R7408898 1 Single Family Residential


ID Type NBHD Occupancy % Complete Bedrooms Baths
1 Residential 4L1004 Single Family Residential 100 3 2.00


ID Exterior Roof Cover Interior HVAC Perimeter Units Unit Type Make
1 Frame Hardboard Composition Shingle Drywall Central Air to Air 204 0 NA NA


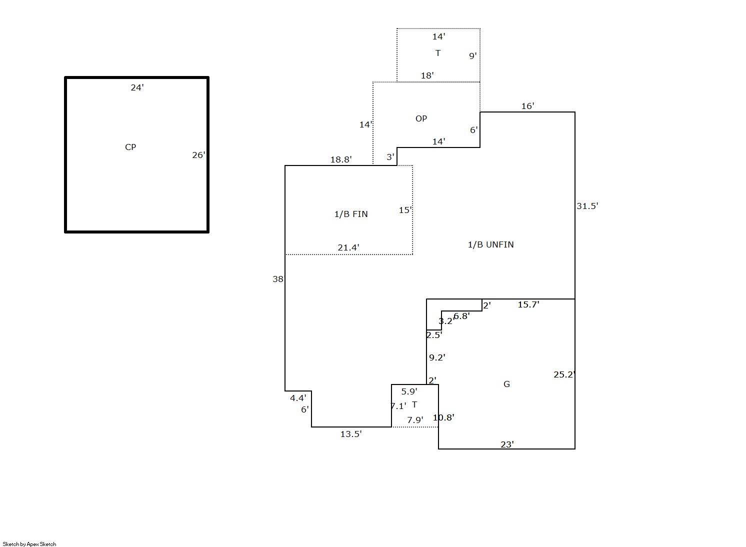
ID Square Ft Condo SF Total Basement SF Finished Basement SF Garage SF Carport SF Balcony SF Porch SF
1 1,754 0 1,727 321 582 624 0 210


Built As Details for Building 1
ID Built As Square Ft Year Built Stories Length Width
1.00 Ranch 1 Story 1,754 2015 1 0 0


Additional Details for Building 1
ID Detail Type Description Units
1 Basement Finished 321.00
1 Basement Total Basement SF 1727.00
1 Carport Carport 624.00
1 Fixture Full Bath 2.00
1 Garage Attached 582.00
1 Porch Open Slab 182.00
1 Porch Slab Roof Ceil 210.00



Building 2

AccountNo Building ID Occupancy
R7408898 2 Utility Building


ID Type NBHD Occupancy % Complete Bedrooms Baths
2 Out Building NA Utility Building 100 NA 0.00


ID Exterior Roof Cover Interior HVAC Perimeter Units Unit Type Make
2 NA NA NA NA 124 0 NA NA


ID Square Ft Condo SF Total Basement SF Finished Basement SF Garage SF Carport SF Balcony SF Porch SF
2 960 0 0 0 0 0 0 0


Built As Details for Building 2
ID Built As Square Ft Year Built Stories Length Width
2.00 Utility Building 960 2017 1 32 30

No Additional Details for Building 2






Account Parcel Account Type Tax Year Buildings Actual Value Local Govt Assessed Value School Assessed Value
R7408898 147112303002 Residential 2026 2 693,282 43,330 48,880

Type Code Description Actual Value Local Govt Assessed Value School Assessed Value Acres Land SqFt
Improvement 1212 SINGLE FAMILY RESIDENTIAL IMPROVEMENTS 476,027 29,750 33,560 0.000 0
Land 1112 SINGLE FAMILY RESIDENTIAL-LAND 217,255 13,580 15,320 3.000 130,680
Totals - - 693,282 43,330 48,880 3.000 130,680


Account Parcel Account Type Tax Year Buildings Actual Value Local Govt Assessed Value School Assessed Value
R7408898 147112303002 Residential 2026 2 693,282 43,330 48,880

Tax Area District ID District Name Local Govt
Mill Levy
School
Mill Levy
Estimated
Taxes
2240 0700 AIMS JUNIOR COLLEGE 6.313 0.000 $273.54
2240 0302 CENTRAL COLORADO WATER (CCW) 0.980 0.000 $42.46
2240 0506 FORT LUPTON FIRE 9.357 0.000 $405.44
2240 1050 HIGH PLAINS LIBRARY 3.044 0.000 $131.90
2240 1201 PLATTE VALLEY CONSERVATION 0.000 0.000 $0.00
2240 0208 SCHOOL DIST RE8-FORT LUPTON AND DACONO 0.000 18.198 $889.52
2240 0100 WELD COUNTY 15.956 0.000 $691.37
Total - - 35.65 18.198 $2,434.23


The estimate of tax is based on the prior year mill levy and the 2025 projected assessment rates. Mill levies and tax estimates will be updated yearly on December 22nd for the current year. Additional information can be found at https://assessor.weld.gov










Select Reports to Print: