Account: R7419398
April 5, 2026
| Account | Parcel | Account Type | Tax Year | Buildings | Actual Value | Local Govt Assessed Value | School Assessed Value |
|---|---|---|---|---|---|---|---|
| R7419398 | 080728305027 | Residential | 2026 | 1 | 1,143,309 | 71,460 | 80,600 |
| Legal |
|---|
| WIN 2WVPH1 L27 BLK2 WATER VALLEY SUB FG #2 PHASE 1 |
| Subdivision | Block | Lot | Land Economic Area |
|---|---|---|---|
| WATER VALLEY SUB FG#2 PHASE 1 | 2 | 27 | WATER VALLEY NORTH ON WATER |
| Property Address | Property City | Section | Township | Range |
|---|---|---|---|---|
| 303 HABITAT BAY | WINDSOR | 28 | 06 | 67 |
| Account | Parcel | Account Type | Tax Year | Buildings | Actual Value | Local Govt Assessed Value | School Assessed Value |
|---|---|---|---|---|---|---|---|
| R7419398 | 080728305027 | Residential | 2026 | 1 | 1,143,309 | 71,460 | 80,600 |
| Account | Owner Name | Address |
|---|---|---|
| R7419398 | VIMA PARTNERS LLC | 1625 PELICAN LAKES PT STE 201 WINDSOR, CO 805506236 |
| Account | Parcel | Account Type | Tax Year | Buildings | Actual Value | Local Govt Assessed Value | School Assessed Value |
|---|---|---|---|---|---|---|---|
| R7419398 | 080728305027 | Residential | 2026 | 1 | 1,143,309 | 71,460 | 80,600 |
| Reception | Rec Date | Type | Grantor | Grantee | Doc Fee | Sale Date | Sale Price |
|---|---|---|---|---|---|---|---|
| 2208869 | 06-26-1990 | SWDN | WINDSOR RESOURCE CORPORATION | TROLLCO INC | 0.00 | 03-23-1990 | 0 |
| 2584757 | NA | SUB | SUBDIVISION | WATER VALLEY FG #2 PHASE 1 | 0.00 | NA | 0 |
| 2741685 | 12-30-1999 | WD | TROLLCO INC | MC STAIN ENTERPRISES INC | 40.00 | 12-29-1999 | 400,000 |
| 2783353 | 07-28-2000 | WD | MC STAIN ENTERPRISES INC | FREELAND DANNY & KELLY | 15.30 | 07-25-2000 | 153,000 |
| 4746713 | 08-17-2021 | WD | FREELAND KELLY; FREELAND DANNY | VIMA PARTNERS LLC | 147.50 | 08-02-2021 | 1,475,000 |
*If the hyperlink for the reception number does not work, try a manual search in the Clerk and Recorder records. Use the Grantor or Grantee in your search.
| Account | Parcel | Account Type | Tax Year | Buildings | Actual Value | Local Govt Assessed Value | School Assessed Value |
|---|---|---|---|---|---|---|---|
| R7419398 | 080728305027 | Residential | 2026 | 1 | 1,143,309 | 71,460 | 80,600 |
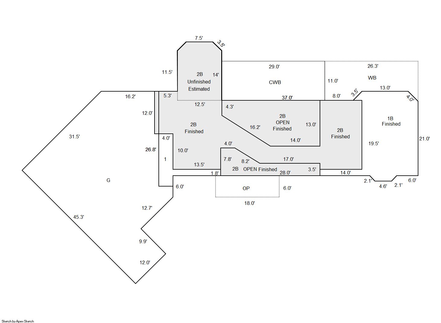
Building 1
| AccountNo | Building ID | Occupancy |
|---|---|---|
| R7419398 | 1 | Single Family Residential |
| ID | Type | NBHD | Occupancy | % Complete | Bedrooms | Baths |
|---|---|---|---|---|---|---|
| 1 | Residential | 2W3012 | Single Family Residential | 100 | 6 | 4.00 |
| ID | Exterior | Roof Cover | Interior | HVAC | Perimeter | Units | Unit Type | Make |
|---|---|---|---|---|---|---|---|---|
| 1 | Frame Hardboard | Composition Shingle | Drywall | Central Air to Air | 562 | 0 | NA | NA |
| ID | Square Ft | Condo SF | Total Basement SF | Finished Basement SF | Garage SF | Carport SF | Balcony SF | Porch SF |
|---|---|---|---|---|---|---|---|---|
| 1 | 2,754 | 0 | 1,830 | 1,547 | 1,308 | 0 | 319 | 108 |
| ID | Built As | Square Ft | Year Built | Stories | Length | Width |
|---|---|---|---|---|---|---|
| 1.00 | 2 Story | 2,754 | 2002 | 2 | 0 | 0 |
| ID | Detail Type | Description | Units |
|---|---|---|---|
| 1 | Add On | Fireplace Gas | 1.00 |
| 1 | Add On | Hot Tub | 1.00 |
| 1 | Balcony | Cover Wood Balc | 319.00 |
| 1 | Balcony | Wood Wood Fin | 251.00 |
| 1 | Basement | Finished | 1547.00 |
| 1 | Basement | Total Basement SF | 1830.00 |
| 1 | Fixture | Full Bath | 3.00 |
| 1 | Fixture | Half Bath | 1.00 |
| 1 | Garage | Attached | 1308.00 |
| 1 | Porch | Slab Roof Ceil | 108.00 |
| Account | Parcel | Account Type | Tax Year | Buildings | Actual Value | Local Govt Assessed Value | School Assessed Value |
|---|---|---|---|---|---|---|---|
| R7419398 | 080728305027 | Residential | 2026 | 1 | 1,143,309 | 71,460 | 80,600 |
| Type | Code | Description | Actual Value | Local Govt Assessed Value | School Assessed Value | Acres | Land SqFt |
|---|---|---|---|---|---|---|---|
| Improvement | 1212 | SINGLE FAMILY RESIDENTIAL IMPROVEMENTS | 843,309 | 52,710 | 59,450 | 0.000 | 0 |
| Land | 1112 | SINGLE FAMILY RESIDENTIAL-LAND | 300,000 | 18,750 | 21,150 | 0.290 | 12,537 |
| Totals | - | - | 1,143,309 | 71,460 | 80,600 | 0.290 | 12,537 |
Comparable sales for your Residential or Commercial property may be found using our SALES SEARCH TOOL
Values are updated annually on May 1st for Real Property and June 15th for Personal Property and Oil and Gas.
| Account | Parcel | Account Type | Tax Year | Buildings | Actual Value | Local Govt Assessed Value | School Assessed Value |
|---|---|---|---|---|---|---|---|
| R7419398 | 080728305027 | Residential | 2026 | 1 | 1,143,309 | 71,460 | 80,600 |
| Tax Area | District ID | District Name | Local Govt Mill Levy |
School Mill Levy |
Estimated Taxes |
|---|---|---|---|---|---|
| 0451 | 0700 | AIMS JUNIOR COLLEGE | 6.313 | 0.000 | $451.13 |
| 0451 | 1051 | CLEARVIEW LIBRARY | 3.546 | 0.000 | $253.40 |
| 0451 | 0301 | NORTHERN COLORADO WATER (NCW) | 1.000 | 0.000 | $71.46 |
| 0451 | 0204 | SCHOOL DIST RE4-WINDSOR | 0.000 | 46.646 | $3,759.67 |
| 0451 | 1303 | WATER VALLEY METRO 1 | 37.911 | 0.000 | $2,709.12 |
| 0451 | 0100 | WELD COUNTY | 15.956 | 0.000 | $1,140.22 |
| 0451 | 1200 | WEST GREELEY CONSERVATION | 0.414 | 0.000 | $29.58 |
| 0451 | 0428 | WINDSOR TOWN | 12.030 | 0.000 | $859.66 |
| 0451 | 0521 | WINDSOR-SEVERANCE FIRE | 8.535 | 0.000 | $609.91 |
| Total | - | - | 85.705 | 46.646 | $9,884.15 |
The estimate of tax is based on the prior year mill levy and the 2025 projected assessment rates. Mill levies and tax estimates will be updated yearly on December 22nd for the current year. Additional information can be found at https://assessor.weld.gov


