Account: R7435597

April 2, 2026

Account Parcel Account Type Tax Year Buildings Actual Value Local Govt Assessed Value School Assessed Value
R7435597 130724400029 Residential 2026 3 696,551 43,530 49,110

Legal
PT NW4SE4 24 2 65 LOT B RE 2069

Subdivision Block Lot Land Economic Area
ECON 5 RURAL

Property Address Property City Section Township Range
8482 COUNTY ROAD 47 1/2 WELD 24 02 65




Account Parcel Account Type Tax Year Buildings Actual Value Local Govt Assessed Value School Assessed Value
R7435597 130724400029 Residential 2026 3 696,551 43,530 49,110

Account Owner Name Address
R7435597 ROCHA MAGDIEL 8482 COUNTY ROAD 47 1/2 HUDSON, CO 806429504


Account Parcel Account Type Tax Year Buildings Actual Value Local Govt Assessed Value School Assessed Value
R7435597 130724400029 Residential 2026 3 696,551 43,530 49,110

Reception Rec Date Type Grantor Grantee Doc Fee Sale Date Sale Price
3306017 07-25-2005 WD ROSE ELMER M & BETTY J TROMPETER MARION J 32.90 07-20-2005 329,000
3925032 04-16-2013 WD TROMPETER MARION J KRUEGER KENT 25.99 04-12-2013 259,900
4848837 08-16-2022 SWD KRUEGER KENT; KRUEGER LORI ROCHA MAGDIEL 73.00 07-25-2022 730,000



Account Parcel Account Type Tax Year Buildings Actual Value Local Govt Assessed Value School Assessed Value
R7435597 130724400029 Residential 2026 3 696,551 43,530 49,110

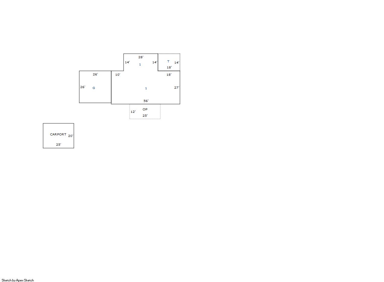
Building 1

AccountNo Building ID Occupancy
R7435597 1 Single Family Residential


ID Type NBHD Occupancy % Complete Bedrooms Baths
1 Residential 5R0008 Single Family Residential 100 3 2.00


ID Exterior Roof Cover Interior HVAC Perimeter Units Unit Type Make
1 Frame Stucco Composition Shingle Drywall Central Air to Air 194 0 NA NA


ID Square Ft Condo SF Total Basement SF Finished Basement SF Garage SF Carport SF Balcony SF Porch SF
1 1,904 0 0 0 676 500 0 252


Built As Details for Building 1
ID Built As Square Ft Year Built Stories Length Width
1.00 Modular 1 Story 1,904 1998 1 0 0


Additional Details for Building 1
ID Detail Type Description Units
1 Add On Fireplace Gas 1.00
1 Carport Carport 500.00
1 Fixture Full Bath 2.00
1 Garage Attached 676.00
1 Porch Open Slab 252.00
1 Porch Slab Roof Ceil 300.00



Building 2

AccountNo Building ID Occupancy
R7435597 2 Shed - Cattle


ID Type NBHD Occupancy % Complete Bedrooms Baths
2 Out Building NA Shed - Cattle 100 0 0.00


ID Exterior Roof Cover Interior HVAC Perimeter Units Unit Type Make
2 NA NA NA None 68 0 NA NA


ID Square Ft Condo SF Total Basement SF Finished Basement SF Garage SF Carport SF Balcony SF Porch SF
2 560 0 0 0 0 0 0 0


Built As Details for Building 2
ID Built As Square Ft Year Built Stories Length Width
2.00 Shed - Cattle 560 2005 1 40 14

No Additional Details for Building 2




Building 3

AccountNo Building ID Occupancy
R7435597 3 Utility Building


ID Type NBHD Occupancy % Complete Bedrooms Baths
3 Out Building NA Utility Building 100 NA 0.00


ID Exterior Roof Cover Interior HVAC Perimeter Units Unit Type Make
3 NA NA NA NA NA 0 NA NA


ID Square Ft Condo SF Total Basement SF Finished Basement SF Garage SF Carport SF Balcony SF Porch SF
3 750 0 0 0 0 0 0 0


Built As Details for Building 3
ID Built As Square Ft Year Built Stories Length Width
3.00 Utility Building 750 2010 1 25 30

No Additional Details for Building 3






Account Parcel Account Type Tax Year Buildings Actual Value Local Govt Assessed Value School Assessed Value
R7435597 130724400029 Residential 2026 3 696,551 43,530 49,110

Type Code Description Actual Value Local Govt Assessed Value School Assessed Value Acres Land SqFt
Improvement 1212 SINGLE FAMILY RESIDENTIAL IMPROVEMENTS 492,506 30,780 34,720 0.000 0
Land 1112 SINGLE FAMILY RESIDENTIAL-LAND 204,045 12,750 14,390 12.220 532,303
Totals - - 696,551 43,530 49,110 12.220 532,303


Account Parcel Account Type Tax Year Buildings Actual Value Local Govt Assessed Value School Assessed Value
R7435597 130724400029 Residential 2026 3 696,551 43,530 49,110

Tax Area District ID District Name Local Govt
Mill Levy
School
Mill Levy
Estimated
Taxes
2214 0700 AIMS JUNIOR COLLEGE 6.313 0.000 $274.80
2214 0302 CENTRAL COLORADO WATER (CCW) 0.980 0.000 $42.66
2214 0309 CENTRAL COLORADO WATER SUBDISTRICT (CCS) 1.462 0.000 $63.64
2214 1050 HIGH PLAINS LIBRARY 3.044 0.000 $132.51
2214 0509 HUDSON FIRE 12.237 0.000 $532.68
2214 1201 PLATTE VALLEY CONSERVATION 0.000 0.000 $0.00
2214 0203 SCHOOL DIST RE3J-KEENESBURG 0.000 15.822 $777.02
2214 0100 WELD COUNTY 15.956 0.000 $694.56
Total - - 39.992 15.822 $2,517.87


The estimate of tax is based on the prior year mill levy and the 2025 projected assessment rates. Mill levies and tax estimates will be updated yearly on December 22nd for the current year. Additional information can be found at https://assessor.weld.gov










Select Reports to Print: