Account: R7516298

April 1, 2026

Account Parcel Account Type Tax Year Buildings Actual Value Local Govt Assessed Value School Assessed Value
R7516298 096130203031 Residential 2026 1 339,462 21,220 23,930

Legal
VV3 L19 BLK3 VALLEY VIEW SUB

Subdivision Block Lot Land Economic Area
VALLEY VIEW SUB 3 19 VALLEY VIEW

Property Address Property City Section Township Range
3714 MCAVOY AVE WELD 30 05 65




Account Parcel Account Type Tax Year Buildings Actual Value Local Govt Assessed Value School Assessed Value
R7516298 096130203031 Residential 2026 1 339,462 21,220 23,930

Account Owner Name Address
R7516298 3714 MCAVOY FARM LLC 3225 MCLEOD DR STE 100 LAS VEGAS, NV 891212257


Account Parcel Account Type Tax Year Buildings Actual Value Local Govt Assessed Value School Assessed Value
R7516298 096130203031 Residential 2026 1 339,462 21,220 23,930

Reception Rec Date Type Grantor Grantee Doc Fee Sale Date Sale Price
1267273 NA SUB SUBDIVISION VALLEY VIEW (GREELEY) 0.00 NA 0
2758738 03-31-2000 WD LIFESTYLE HOMES INC ORTIZ MANUEL 10.30 03-30-2000 103,000
3378847 04-12-2006 PTD ORTIZ MANUEL GSMPS MORTGAGE LOAN TRUST 2004-4 0.00 04-12-2006 0
3389478 05-19-2006 PTD GSMPS MORTGAGE LOAN TRUST 2004-4 WASHINGTON MUTUAL BANK FA 0.00 04-12-2006 0
3406046 07-26-2006 WDN WASHINGTON MUTUAL BANK FA SECRETARY OF HOUSING & URBAN DEV 0.00 07-13-2006 0
3445837 01-05-2007 SWD SECRETARY OF HOUSING & URBAN DEV GUERRERO SAMUEL & 0.00 01-02-2007 95,000
3854176 06-22-2012 QCN GUERRERO SAMUEL GREELEY EASY HOME RENTALS LLC 0.00 06-21-2012 0
3977616 11-13-2013 QCN GUERRERO SAMUEL GREELEY EASY HOME RENTALS 0.00 10-29-2013 0
4893538 04-20-2023 QCN GREELEY EASY HOME RENTALS LLC 3714 MCAVOY FARM LLC 0.00 04-06-2023 0



Account Parcel Account Type Tax Year Buildings Actual Value Local Govt Assessed Value School Assessed Value
R7516298 096130203031 Residential 2026 1 339,462 21,220 23,930

Building 1

AccountNo Building ID Occupancy
R7516298 1 Single Family Residential


ID Type NBHD Occupancy % Complete Bedrooms Baths
1 Residential 6E0021 Single Family Residential 100 2 1.00


ID Exterior Roof Cover Interior HVAC Perimeter Units Unit Type Make
1 Frame Hardboard Composition Shingle Drywall Central Air to Air 0 0 NA NA


ID Square Ft Condo SF Total Basement SF Finished Basement SF Garage SF Carport SF Balcony SF Porch SF
1 912 0 912 0 0 0 0 27


Built As Details for Building 1
ID Built As Square Ft Year Built Stories Length Width
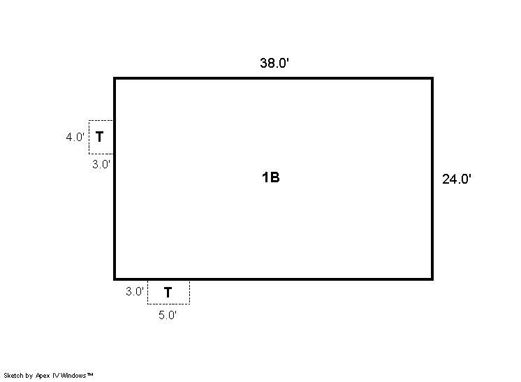
1.00 Ranch 1 Story 912 1999 1 0 0


Additional Details for Building 1
ID Detail Type Description Units
1 Basement Total Basement SF 912.00
1 Fixture Full Bath 1.00
1 Porch Open Slab 27.00
1 Rough In Rough In 1.00





Account Parcel Account Type Tax Year Buildings Actual Value Local Govt Assessed Value School Assessed Value
R7516298 096130203031 Residential 2026 1 339,462 21,220 23,930

Type Code Description Actual Value Local Govt Assessed Value School Assessed Value Acres Land SqFt
Improvement 1212 SINGLE FAMILY RESIDENTIAL IMPROVEMENTS 279,462 17,470 19,700 0.000 0
Land 1112 SINGLE FAMILY RESIDENTIAL-LAND 60,000 3,750 4,230 0.143 6,250
Totals - - 339,462 21,220 23,930 0.143 6,250


Account Parcel Account Type Tax Year Buildings Actual Value Local Govt Assessed Value School Assessed Value
R7516298 096130203031 Residential 2026 1 339,462 21,220 23,930

Tax Area District ID District Name Local Govt
Mill Levy
School
Mill Levy
Estimated
Taxes
0698 0700 AIMS JUNIOR COLLEGE 6.313 0.000 $133.96
0698 0302 CENTRAL COLORADO WATER (CCW) 0.980 0.000 $20.80
0698 0309 CENTRAL COLORADO WATER SUBDISTRICT (CCS) 1.462 0.000 $31.02
0698 0305 CENTRAL WELD COUNTY WATER (CWC) 0.000 0.000 $0.00
0698 1050 HIGH PLAINS LIBRARY 3.044 0.000 $64.59
0698 0511 LASALLE FIRE 5.154 0.000 $109.37
0698 0301 NORTHERN COLORADO WATER (NCW) 1.000 0.000 $21.22
0698 0206 SCHOOL DIST 6-GREELEY 0.000 47.615 $1,139.43
0698 0100 WELD COUNTY 15.956 0.000 $338.59
0698 1200 WEST GREELEY CONSERVATION 0.414 0.000 $8.79
Total - - 34.323 47.615 $1,867.76


The estimate of tax is based on the prior year mill levy and the 2025 projected assessment rates. Mill levies and tax estimates will be updated yearly on December 22nd for the current year. Additional information can be found at https://assessor.weld.gov










Select Reports to Print: