Account: R7589699

April 5, 2026

Account Parcel Account Type Tax Year Buildings Actual Value Local Govt Assessed Value School Assessed Value
R7589699 096116302018 Residential 2026 1 380,223 23,760 26,810

Legal
GR PVS L18 BLK2 PARKVIEW SOUTH

Subdivision Block Lot Land Economic Area
PARKVIEW SOUTH 2 18 PARKVIEW SOUTH

Property Address Property City Section Township Range
2453 BALSAM AVE GREELEY 16 05 65




Account Parcel Account Type Tax Year Buildings Actual Value Local Govt Assessed Value School Assessed Value
R7589699 096116302018 Residential 2026 1 380,223 23,760 26,810

Account Owner Name Address
R7589699 ALIG CHRISTOPHER J 2453 BALSAM AVE GREELEY, CO 806319073


Account Parcel Account Type Tax Year Buildings Actual Value Local Govt Assessed Value School Assessed Value
R7589699 096116302018 Residential 2026 1 380,223 23,760 26,810

Reception Rec Date Type Grantor Grantee Doc Fee Sale Date Sale Price
2632805 NA SUB SUBDIVISION PARKVIEW SOUTH 0.00 NA 0
2673374 02-16-1999 WD ORION PROPERTIES LLC SCHNEIDER GARY 10.50 02-12-1999 105,000
2698809 06-07-1999 WD SCHNEIDER GARY VILLANUEVA MARGARITO JR & 9.73 06-04-1999 97,300
2966439 07-03-2002 WD VILLANUEVA MARGARITO JR & CARDONA LINDA LEININGER TIMOTHY L & BARBARA J 13.55 07-02-2002 135,500
3154925 02-18-2004 WDN LEININGER TIMOTHY L & 2453 BALSAM AVENUE TRUST 0.00 08-05-2003 0
3467362 04-06-2007 PTD 2453 BALSAM AVENUE TRUST SECRETARY OF HOUSING & URBAN DEV 0.00 04-06-2007 0
3486146 06-27-2007 SWD SECRETARY OF HOUSING & URBAN DEV ZWEIGEL LEE 0.00 06-22-2007 115,000
3499751 08-27-2007 QCN ZWEIGEL LEE ZWEIGLE MARY 0.00 08-23-2007 0
4116258 06-16-2015 WD ZWEIGLE MARY ALIG CHRISTOPHER J 18.40 06-11-2015 184,000



Account Parcel Account Type Tax Year Buildings Actual Value Local Govt Assessed Value School Assessed Value
R7589699 096116302018 Residential 2026 1 380,223 23,760 26,810

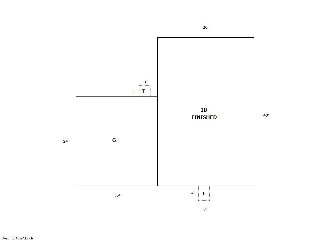
Building 1

AccountNo Building ID Occupancy
R7589699 1 Single Family Residential


ID Type NBHD Occupancy % Complete Bedrooms Baths
1 Residential 6G0035 Single Family Residential 100 5 3.00


ID Exterior Roof Cover Interior HVAC Perimeter Units Unit Type Make
1 Frame Vinyl Composition Shingle Drywall Central Air to Air 132 0 NA NA


ID Square Ft Condo SF Total Basement SF Finished Basement SF Garage SF Carport SF Balcony SF Porch SF
1 1,040 0 1,040 1,040 528 0 0 21


Built As Details for Building 1
ID Built As Square Ft Year Built Stories Length Width
1.00 Ranch 1 Story 1,040 1999 1 0 0


Additional Details for Building 1
ID Detail Type Description Units
1 Basement Finished 1040.00
1 Basement Total Basement SF 1040.00
1 Fixture Full Bath 3.00
1 Garage Attached 528.00
1 Porch Open Slab 21.00





Account Parcel Account Type Tax Year Buildings Actual Value Local Govt Assessed Value School Assessed Value
R7589699 096116302018 Residential 2026 1 380,223 23,760 26,810

Type Code Description Actual Value Local Govt Assessed Value School Assessed Value Acres Land SqFt
Improvement 1212 SINGLE FAMILY RESIDENTIAL IMPROVEMENTS 323,223 20,200 22,790 0.000 0
Land 1112 SINGLE FAMILY RESIDENTIAL-LAND 57,000 3,560 4,020 0.170 7,376
Totals - - 380,223 23,760 26,810 0.170 7,376


Account Parcel Account Type Tax Year Buildings Actual Value Local Govt Assessed Value School Assessed Value
R7589699 096116302018 Residential 2026 1 380,223 23,760 26,810

Tax Area District ID District Name Local Govt
Mill Levy
School
Mill Levy
Estimated
Taxes
0600 0700 AIMS JUNIOR COLLEGE 6.313 0.000 $150.00
0600 0411 GREELEY CITY 11.274 0.000 $267.87
0600 1050 HIGH PLAINS LIBRARY 3.044 0.000 $72.33
0600 0301 NORTHERN COLORADO WATER (NCW) 1.000 0.000 $23.76
0600 0206 SCHOOL DIST 6-GREELEY 0.000 47.615 $1,276.56
0600 0100 WELD COUNTY 15.956 0.000 $379.11
Total - - 37.587 47.615 $2,169.63


The estimate of tax is based on the prior year mill levy and the 2025 projected assessment rates. Mill levies and tax estimates will be updated yearly on December 22nd for the current year. Additional information can be found at https://assessor.weld.gov










Select Reports to Print: