Account: R7641399

April 1, 2026

Account Parcel Account Type Tax Year Buildings Actual Value Local Govt Assessed Value School Assessed Value
R7641399 095910314031 Residential 2026 1 437,718 27,350 30,860

Legal
GR 4CCW L31 BLK3 COUNTRY CLUB WEST 4TH

Subdivision Block Lot Land Economic Area
COUNTRY CLUB WEST 4TH FG 3 31 COUNTRY CLUB WEST

Property Address Property City Section Township Range
1626 55TH AVE GREELEY 10 05 66




Account Parcel Account Type Tax Year Buildings Actual Value Local Govt Assessed Value School Assessed Value
R7641399 095910314031 Residential 2026 1 437,718 27,350 30,860

Account Owner Name Address
R7641399 ABBATH HILARY ANN 1626 55TH AVE GREELEY, CO 806342955
R7641399 ABBATH HILARY C
R7641399 ROY JOHN C JR


Account Parcel Account Type Tax Year Buildings Actual Value Local Govt Assessed Value School Assessed Value
R7641399 095910314031 Residential 2026 1 437,718 27,350 30,860

Reception Rec Date Type Grantor Grantee Doc Fee Sale Date Sale Price
2640873 NA SUB SUBDIVISION COUNTRY CLUB WEST 4TH FG 0.00 NA 0
2649509 10-27-1998 WD COUNTRY CLUB WEST IV LLC GREENER DANIEL M 263.12 10-15-1998 2,631,200
2655575 11-23-1998 WD GREENER DANIEL M LIFESTYLE HOMES INC 33.50 11-19-1998 335,000
2750993 02-23-2000 WD LIFESTYLE HOMES INC GUYN LEWIS J 18.38 02-18-2000 183,800
2864001 07-09-2001 QCN GUYN BEVERLY A & LEWIS J GUYN LEWIS J & BEVERLY 0.00 06-06-2001 0
3233036 11-04-2004 WD GUYN LEWIS J & BEVERLY ABBATH STEVEN M SR & 19.60 10-28-2004 196,000
4161969 12-01-2015 DTHC ABBATH STEVEN M SR ABBATH STEVEN M SR 0.00 06-22-2013 0
4554937 01-02-2020 QCN ABBATH HILARY ANN ROY JOHN C JR; ABBATH HILARY C; ABBATH HILARY ANN 0.00 12-17-2019 0



Account Parcel Account Type Tax Year Buildings Actual Value Local Govt Assessed Value School Assessed Value
R7641399 095910314031 Residential 2026 1 437,718 27,350 30,860

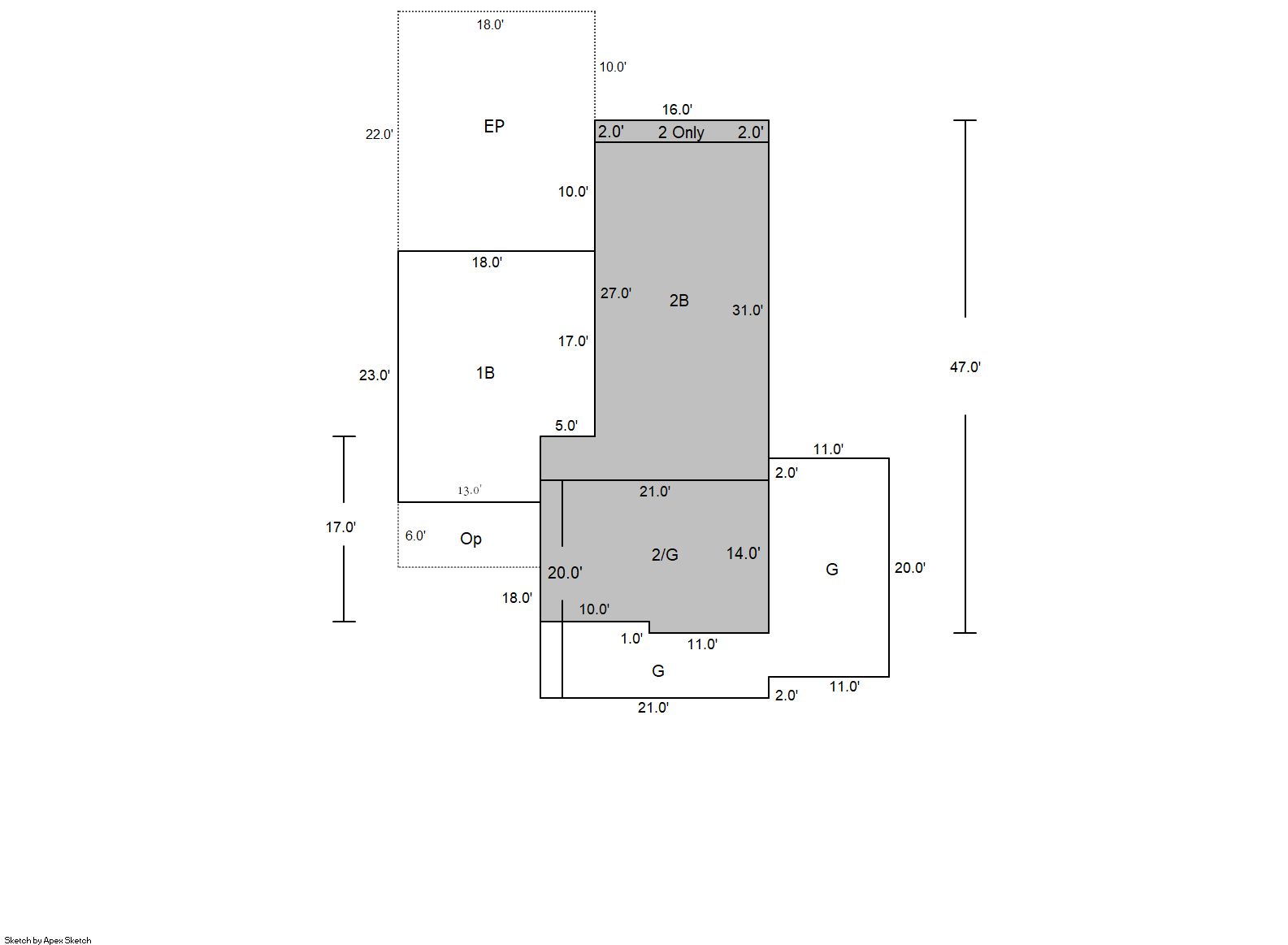
Building 1

AccountNo Building ID Occupancy
R7641399 1 Single Family Residential


ID Type NBHD Occupancy % Complete Bedrooms Baths
1 Residential 2G4000 Single Family Residential 100 3 3.00


ID Exterior Roof Cover Interior HVAC Perimeter Units Unit Type Make
1 Frame Siding Composition Shingle Drywall Central Air to Air 270 0 NA NA


ID Square Ft Condo SF Total Basement SF Finished Basement SF Garage SF Carport SF Balcony SF Porch SF
1 1,732 0 900 0 640 0 0 78


Built As Details for Building 1
ID Built As Square Ft Year Built Stories Length Width
1.00 2 Story 1,732 1999 2 0 0


Additional Details for Building 1
ID Detail Type Description Units
1 Add On Fireplace Gas 1.00
1 Basement Total Basement SF 900.00
1 Fixture Full Bath 2.00
1 Fixture Half Bath 1.00
1 Garage Attached 640.00
1 Porch Encl Solid Wall 396.00
1 Porch Slab Roof Ceil 78.00
1 Rough In Rough In 1.00





Account Parcel Account Type Tax Year Buildings Actual Value Local Govt Assessed Value School Assessed Value
R7641399 095910314031 Residential 2026 1 437,718 27,350 30,860

Type Code Description Actual Value Local Govt Assessed Value School Assessed Value Acres Land SqFt
Improvement 1212 SINGLE FAMILY RESIDENTIAL IMPROVEMENTS 356,718 22,290 25,150 0.000 0
Land 1112 SINGLE FAMILY RESIDENTIAL-LAND 81,000 5,060 5,710 0.250 10,718
Totals - - 437,718 27,350 30,860 0.250 10,718


Account Parcel Account Type Tax Year Buildings Actual Value Local Govt Assessed Value School Assessed Value
R7641399 095910314031 Residential 2026 1 437,718 27,350 30,860

Tax Area District ID District Name Local Govt
Mill Levy
School
Mill Levy
Estimated
Taxes
0600 0700 AIMS JUNIOR COLLEGE 6.313 0.000 $172.66
0600 0411 GREELEY CITY 11.274 0.000 $308.34
0600 1050 HIGH PLAINS LIBRARY 3.044 0.000 $83.25
0600 0301 NORTHERN COLORADO WATER (NCW) 1.000 0.000 $27.35
0600 0206 SCHOOL DIST 6-GREELEY 0.000 47.615 $1,469.40
0600 0100 WELD COUNTY 15.956 0.000 $436.40
Total - - 37.587 47.615 $2,497.40


The estimate of tax is based on the prior year mill levy and the 2025 projected assessment rates. Mill levies and tax estimates will be updated yearly on December 22nd for the current year. Additional information can be found at https://assessor.weld.gov










Select Reports to Print: