Account: R7663499

April 5, 2026

Account Parcel Account Type Tax Year Buildings Actual Value Local Govt Assessed Value School Assessed Value
R7663499 080728109023 Residential 2026 1 529,268 33,080 37,320

Legal
WIN 2WVPH2 L23 BLK1 WATER VALLEY FG 2 PH2

Subdivision Block Lot Land Economic Area
WATER VALLEY SUB FG#2 PHASE 2 1 23 WATER VALLEY NORTH

Property Address Property City Section Township Range
336 WHITNEY BAY WINDSOR 28 06 67




Account Parcel Account Type Tax Year Buildings Actual Value Local Govt Assessed Value School Assessed Value
R7663499 080728109023 Residential 2026 1 529,268 33,080 37,320

Account Owner Name Address
R7663499 RASMUSSEN DALE J 336 WHITNEY BAY WINDSOR, CO 805506159
R7663499 RASMUSSEN ETHEL E


Account Parcel Account Type Tax Year Buildings Actual Value Local Govt Assessed Value School Assessed Value
R7663499 080728109023 Residential 2026 1 529,268 33,080 37,320

Reception Rec Date Type Grantor Grantee Doc Fee Sale Date Sale Price
2208869 06-26-1990 SWDN WINDSOR RESOURCE CORPORATION TROLLCO INC 0.00 03-23-1990 0
2630836 NA SUB SUBDIVISION WATER VALLEY FG #2 PHASE 2 0.00 NA 0
2821855 01-29-2001 SWD LUMBERMENS INVESTMENT CORP TROLLCO INC 16.63 01-26-2001 166,300
2821856 01-29-2001 WD TROLLCO INC EXECUTIVE HOMES INC 17.05 01-26-2001 170,500
2882490 09-10-2001 WD EXECUTIVE HOMES INC CLINITE RONALD R 21.35 09-07-2001 213,500
3338392 11-08-2005 WD CLINITE RONALD R RASMUSSEN DALE J & 22.50 11-04-2005 225,000



Account Parcel Account Type Tax Year Buildings Actual Value Local Govt Assessed Value School Assessed Value
R7663499 080728109023 Residential 2026 1 529,268 33,080 37,320

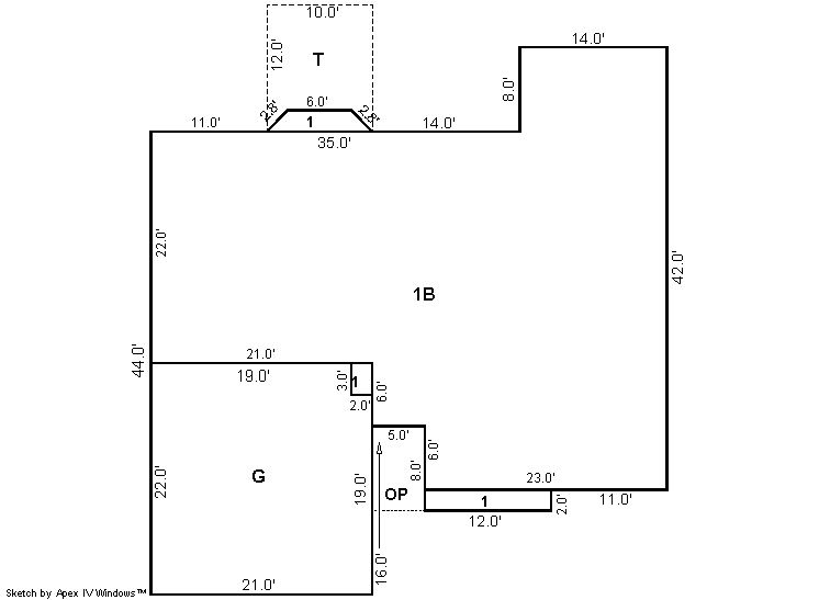
Building 1

AccountNo Building ID Occupancy
R7663499 1 Single Family Residential


ID Type NBHD Occupancy % Complete Bedrooms Baths
1 Residential 2W3014 Single Family Residential 100 3 2.00


ID Exterior Roof Cover Interior HVAC Perimeter Units Unit Type Make
1 Frame Vinyl Composition Shingle Drywall Central Air to Air 0 0 NA NA


ID Square Ft Condo SF Total Basement SF Finished Basement SF Garage SF Carport SF Balcony SF Porch SF
1 1,542 0 1,496 0 456 0 0 40


Built As Details for Building 1
ID Built As Square Ft Year Built Stories Length Width
1.00 Ranch 1 Story 1,542 2001 1 0 0


Additional Details for Building 1
ID Detail Type Description Units
1 Add On Fireplace Gas 1.00
1 Basement Total Basement SF 1496.00
1 Fixture Full Bath 2.00
1 Garage Attached 456.00
1 Porch Open Slab 104.00
1 Porch Slab Roof Ceil 40.00
1 Rough In Rough In 1.00





Account Parcel Account Type Tax Year Buildings Actual Value Local Govt Assessed Value School Assessed Value
R7663499 080728109023 Residential 2026 1 529,268 33,080 37,320

Type Code Description Actual Value Local Govt Assessed Value School Assessed Value Acres Land SqFt
Improvement 1212 SINGLE FAMILY RESIDENTIAL IMPROVEMENTS 399,268 24,950 28,150 0.000 0
Land 1112 SINGLE FAMILY RESIDENTIAL-LAND 130,000 8,130 9,170 0.160 7,130
Totals - - 529,268 33,080 37,320 0.160 7,130


Account Parcel Account Type Tax Year Buildings Actual Value Local Govt Assessed Value School Assessed Value
R7663499 080728109023 Residential 2026 1 529,268 33,080 37,320

Tax Area District ID District Name Local Govt
Mill Levy
School
Mill Levy
Estimated
Taxes
0451 0700 AIMS JUNIOR COLLEGE 6.313 0.000 $208.83
0451 1051 CLEARVIEW LIBRARY 3.546 0.000 $117.30
0451 0301 NORTHERN COLORADO WATER (NCW) 1.000 0.000 $33.08
0451 0204 SCHOOL DIST RE4-WINDSOR 0.000 46.646 $1,740.83
0451 1303 WATER VALLEY METRO 1 37.911 0.000 $1,254.10
0451 0100 WELD COUNTY 15.956 0.000 $527.82
0451 1200 WEST GREELEY CONSERVATION 0.414 0.000 $13.70
0451 0428 WINDSOR TOWN 12.030 0.000 $397.95
0451 0521 WINDSOR-SEVERANCE FIRE 8.535 0.000 $282.34
Total - - 85.705 46.646 $4,575.95


The estimate of tax is based on the prior year mill levy and the 2025 projected assessment rates. Mill levies and tax estimates will be updated yearly on December 22nd for the current year. Additional information can be found at https://assessor.weld.gov










Select Reports to Print: