Account: R7663899

April 5, 2026

Account Parcel Account Type Tax Year Buildings Actual Value Local Govt Assessed Value School Assessed Value
R7663899 080728109027 Residential 2026 1 557,427 34,840 39,300

Legal
WIN 2WVPH2 L27 BLK1 WATER VALLEY FG 2 PH2

Subdivision Block Lot Land Economic Area
WATER VALLEY SUB FG#2 PHASE 2 1 27 WATER VALLEY NORTH

Property Address Property City Section Township Range
352 WHITNEY BAY WINDSOR 28 06 67




Account Parcel Account Type Tax Year Buildings Actual Value Local Govt Assessed Value School Assessed Value
R7663899 080728109027 Residential 2026 1 557,427 34,840 39,300

Account Owner Name Address
R7663899 MCKENZIE JONATHAN R 352 WHITNEY BAY WINDSOR, CO 805506159
R7663899 MCKENZIE BARBARA J


Account Parcel Account Type Tax Year Buildings Actual Value Local Govt Assessed Value School Assessed Value
R7663899 080728109027 Residential 2026 1 557,427 34,840 39,300

Reception Rec Date Type Grantor Grantee Doc Fee Sale Date Sale Price
2208869 06-26-1990 SWDN WINDSOR RESOURCE CORPORATION TROLLCO INC 0.00 03-23-1990 0
2630836 NA SUB SUBDIVISION WATER VALLEY FG #2 PHASE 2 0.00 NA 0
2631543 08-07-1998 WD TROLLCO INC LUMBERMENS INVESTMENT CORP 200.00 08-04-1998 2,000,000
2821855 01-29-2001 SWD LUMBERMENS INVESTMENT CORP TROLLCO INC 16.63 01-26-2001 166,300
2821856 01-29-2001 WD TROLLCO INC EXECUTIVE HOMES INC 17.05 01-26-2001 170,500
2895068 10-25-2001 WD EXECUTIVE HOMES INC MCKENZIE JONATHAN R & 18.24 10-24-2001 182,400



Account Parcel Account Type Tax Year Buildings Actual Value Local Govt Assessed Value School Assessed Value
R7663899 080728109027 Residential 2026 1 557,427 34,840 39,300

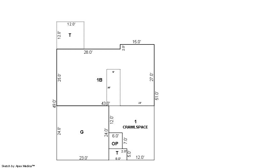
Building 1

AccountNo Building ID Occupancy
R7663899 1 Single Family Residential


ID Type NBHD Occupancy % Complete Bedrooms Baths
1 Residential 2W3014 Single Family Residential 100 5 3.00


ID Exterior Roof Cover Interior HVAC Perimeter Units Unit Type Make
1 Frame Vinyl Composition Roll Drywall Forced Air 0 0 NA NA


ID Square Ft Condo SF Total Basement SF Finished Basement SF Garage SF Carport SF Balcony SF Porch SF
1 1,503 0 1,105 1,009 552 0 0 184


Built As Details for Building 1
ID Built As Square Ft Year Built Stories Length Width
1.00 Ranch 1 Story 1,503 2001 1 0 0


Additional Details for Building 1
ID Detail Type Description Units
1 Add On Fireplace Gas 2.00
1 Basement Finished 1009.00
1 Basement Total Basement SF 1105.00
1 Fixture Full Bath 3.00
1 Garage Attached 552.00
1 Porch Open Slab 184.00
1 Porch Slab Roof Ceil 42.00





Account Parcel Account Type Tax Year Buildings Actual Value Local Govt Assessed Value School Assessed Value
R7663899 080728109027 Residential 2026 1 557,427 34,840 39,300

Type Code Description Actual Value Local Govt Assessed Value School Assessed Value Acres Land SqFt
Improvement 1212 SINGLE FAMILY RESIDENTIAL IMPROVEMENTS 427,427 26,710 30,130 0.000 0
Land 1112 SINGLE FAMILY RESIDENTIAL-LAND 130,000 8,130 9,170 0.170 7,475
Totals - - 557,427 34,840 39,300 0.170 7,475


Account Parcel Account Type Tax Year Buildings Actual Value Local Govt Assessed Value School Assessed Value
R7663899 080728109027 Residential 2026 1 557,427 34,840 39,300

Tax Area District ID District Name Local Govt
Mill Levy
School
Mill Levy
Estimated
Taxes
0451 0700 AIMS JUNIOR COLLEGE 6.313 0.000 $219.94
0451 1051 CLEARVIEW LIBRARY 3.546 0.000 $123.54
0451 0301 NORTHERN COLORADO WATER (NCW) 1.000 0.000 $34.84
0451 0204 SCHOOL DIST RE4-WINDSOR 0.000 46.646 $1,833.19
0451 1303 WATER VALLEY METRO 1 37.911 0.000 $1,320.82
0451 0100 WELD COUNTY 15.956 0.000 $555.91
0451 1200 WEST GREELEY CONSERVATION 0.414 0.000 $14.42
0451 0428 WINDSOR TOWN 12.030 0.000 $419.13
0451 0521 WINDSOR-SEVERANCE FIRE 8.535 0.000 $297.36
Total - - 85.705 46.646 $4,819.15


The estimate of tax is based on the prior year mill levy and the 2025 projected assessment rates. Mill levies and tax estimates will be updated yearly on December 22nd for the current year. Additional information can be found at https://assessor.weld.gov










Select Reports to Print: