Account: R7668699

April 5, 2026

Account Parcel Account Type Tax Year Buildings Actual Value Local Govt Assessed Value School Assessed Value
R7668699 080728110042 Residential 2026 1 535,017 33,440 37,720

Legal
WIN 2WVPH2 L42 BLK2 WATER VALLEY FG2 PH2

Subdivision Block Lot Land Economic Area
WATER VALLEY SUB FG#2 PHASE 2 2 42 WATER VALLEY NORTH

Property Address Property City Section Township Range
120 ROCK BRIDGE DR WINDSOR 28 06 67




Account Parcel Account Type Tax Year Buildings Actual Value Local Govt Assessed Value School Assessed Value
R7668699 080728110042 Residential 2026 1 535,017 33,440 37,720

Account Owner Name Address
R7668699 MONDRAGON NATHAN J 1240 BANNER CIR ERIE, CO 805166950
R7668699 HAMP DENINE K


Account Parcel Account Type Tax Year Buildings Actual Value Local Govt Assessed Value School Assessed Value
R7668699 080728110042 Residential 2026 1 535,017 33,440 37,720

Reception Rec Date Type Grantor Grantee Doc Fee Sale Date Sale Price
2208869 06-26-1990 SWDN WINDSOR RESOURCE CORPORATION TROLLCO INC 0.00 03-23-1990 0
2630836 NA SUB SUBDIVISION WATER VALLEY FG #2 PHASE 2 0.00 NA 0
2631543 08-07-1998 WD TROLLCO INC LUMBERMENS INVESTMENT CORP 200.00 08-04-1998 2,000,000
2806604 11-14-2000 SWD LUMBERMENS INVESTMENT CORP TROLLCO INC 40.00 11-10-2000 400,000
2806605 11-14-2000 SWD TROLLCO INC ZTS CONST INC 44.00 11-10-2000 440,000
2934529 03-19-2002 WD ZTS CONST INC WILLIAMS BRETT HOWARD & REBECCA HARRIS 22.40 03-15-2002 224,000
3954901 08-09-2013 WDE WILLIAMS BRETT HOWARD MONDRAGON NATHAN J 27.50 07-31-2013 275,000
4334730 09-12-2017 QCN MONDRAGON TEOFILO L; MONDRAGON AMY J; MONDRAGON NATHAN J HAMP DENINE K; MONDRAGON NATHAN J 0.00 09-08-2017 0



Account Parcel Account Type Tax Year Buildings Actual Value Local Govt Assessed Value School Assessed Value
R7668699 080728110042 Residential 2026 1 535,017 33,440 37,720

Building 1

AccountNo Building ID Occupancy
R7668699 1 Single Family Residential


ID Type NBHD Occupancy % Complete Bedrooms Baths
1 Residential 2W3014 Single Family Residential 100 3 2.00


ID Exterior Roof Cover Interior HVAC Perimeter Units Unit Type Make
1 Frame Siding Composition Shingle Drywall Central Air to Air 0 0 NA NA


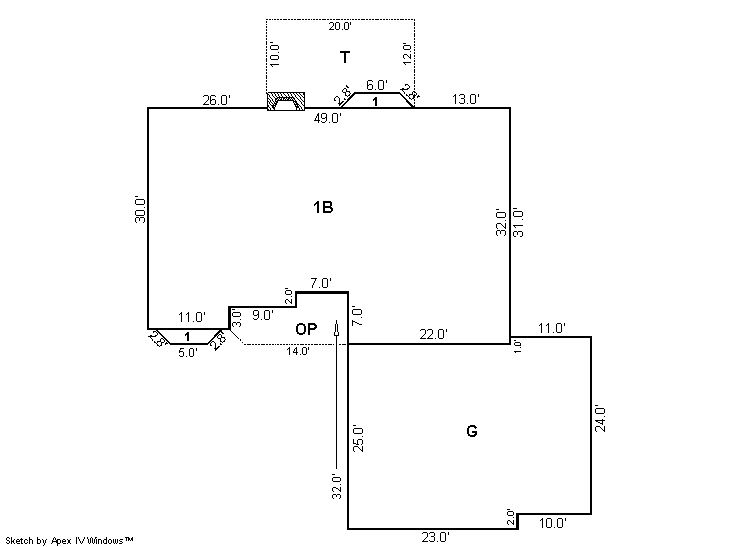
ID Square Ft Condo SF Total Basement SF Finished Basement SF Garage SF Carport SF Balcony SF Porch SF
1 1,482 0 1,452 0 816 0 0 214


Built As Details for Building 1
ID Built As Square Ft Year Built Stories Length Width
1.00 Ranch 1 Story 1,482 2001 1 0 0


Additional Details for Building 1
ID Detail Type Description Units
1 Add On Fireplace Gas 1.00
1 Basement Total Basement SF 1452.00
1 Fixture Full Bath 2.00
1 Garage Attached 816.00
1 Porch Open Slab 214.00
1 Porch Slab Roof Ceil 92.00
1 Rough In Rough In 1.00





Account Parcel Account Type Tax Year Buildings Actual Value Local Govt Assessed Value School Assessed Value
R7668699 080728110042 Residential 2026 1 535,017 33,440 37,720

Type Code Description Actual Value Local Govt Assessed Value School Assessed Value Acres Land SqFt
Improvement 1212 SINGLE FAMILY RESIDENTIAL IMPROVEMENTS 405,017 25,310 28,550 0.000 0
Land 1112 SINGLE FAMILY RESIDENTIAL-LAND 130,000 8,130 9,170 0.170 7,601
Totals - - 535,017 33,440 37,720 0.170 7,601


Account Parcel Account Type Tax Year Buildings Actual Value Local Govt Assessed Value School Assessed Value
R7668699 080728110042 Residential 2026 1 535,017 33,440 37,720

Tax Area District ID District Name Local Govt
Mill Levy
School
Mill Levy
Estimated
Taxes
0451 0700 AIMS JUNIOR COLLEGE 6.313 0.000 $211.11
0451 1051 CLEARVIEW LIBRARY 3.546 0.000 $118.58
0451 0301 NORTHERN COLORADO WATER (NCW) 1.000 0.000 $33.44
0451 0204 SCHOOL DIST RE4-WINDSOR 0.000 46.646 $1,759.49
0451 1303 WATER VALLEY METRO 1 37.911 0.000 $1,267.74
0451 0100 WELD COUNTY 15.956 0.000 $533.57
0451 1200 WEST GREELEY CONSERVATION 0.414 0.000 $13.84
0451 0428 WINDSOR TOWN 12.030 0.000 $402.28
0451 0521 WINDSOR-SEVERANCE FIRE 8.535 0.000 $285.41
Total - - 85.705 46.646 $4,625.46


The estimate of tax is based on the prior year mill levy and the 2025 projected assessment rates. Mill levies and tax estimates will be updated yearly on December 22nd for the current year. Additional information can be found at https://assessor.weld.gov










Select Reports to Print: