Account: R7670299

April 5, 2026

Account Parcel Account Type Tax Year Buildings Actual Value Local Govt Assessed Value School Assessed Value
R7670299 080728111011 Residential 2026 1 713,339 44,590 50,300

Legal
WIN 2WVPH2 L11 BLK3 WATER VALLEY FG2 PH2

Subdivision Block Lot Land Economic Area
WATER VALLEY SUB FG#2 PHASE 2 3 11 WATER VALLEY NORTH

Property Address Property City Section Township Range
1401 PINTAIL CT WINDSOR 28 06 67




Account Parcel Account Type Tax Year Buildings Actual Value Local Govt Assessed Value School Assessed Value
R7670299 080728111011 Residential 2026 1 713,339 44,590 50,300

Account Owner Name Address
R7670299 WYATT CATHY J 1401 PINTAIL CT WINDSOR, CO 805506144
R7670299 WYATT GRANVILLE S


Account Parcel Account Type Tax Year Buildings Actual Value Local Govt Assessed Value School Assessed Value
R7670299 080728111011 Residential 2026 1 713,339 44,590 50,300

Reception Rec Date Type Grantor Grantee Doc Fee Sale Date Sale Price
2208869 06-26-1990 SWDN WINDSOR RESOURCE CORPORATION TROLLCO INC 0.00 03-23-1990 0
2630836 NA SUB SUBDIVISION WATER VALLEY FG #2 PHASE 2 0.00 NA 0
2631543 08-07-1998 WD TROLLCO INC LUMBERMENS INVESTMENT CORP 200.00 08-04-1998 2,000,000
2853292 06-01-2001 SWD LUMBERMENS INVESTMENT CORP KKB INVESTMENTS LLC 28.20 05-21-2001 282,000
3067922 05-30-2003 WD KKB INVESTMENTS LLC SCHEWIBISH ADAM T & JOHNSON LYNDA N 28.80 05-30-2003 288,000
3256213 01-26-2005 WDN SCHEWIBISH ADAM T & SCHWEIBISH ADAM T & 0.00 01-19-2005 0
3315805 08-23-2005 SWDN SCHEWIBISH ADAM T & SCHWEIBISH ADAM T & 0.00 08-11-2005 0
3583276 10-09-2008 WD SCHWEIBISH ADAM T JOHNSON RICHARD H 31.00 06-27-2008 310,000
3862295 07-30-2012 WD JOHNSON RICHARD H WYATT CATHY J 32.20 07-27-2012 322,000



Account Parcel Account Type Tax Year Buildings Actual Value Local Govt Assessed Value School Assessed Value
R7670299 080728111011 Residential 2026 1 713,339 44,590 50,300

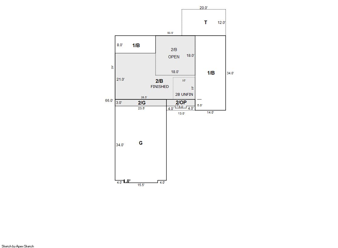
Building 1

AccountNo Building ID Occupancy
R7670299 1 Single Family Residential


ID Type NBHD Occupancy % Complete Bedrooms Baths
1 Residential 2W3014 Single Family Residential 100 5 4.00


ID Exterior Roof Cover Interior HVAC Perimeter Units Unit Type Make
1 Frame Hardboard Composition Shingle Drywall Central Air to Air 380 0 NA NA


ID Square Ft Condo SF Total Basement SF Finished Basement SF Garage SF Carport SF Balcony SF Porch SF
1 2,235 0 1,535 1,434 885 0 0 65


Built As Details for Building 1
ID Built As Square Ft Year Built Stories Length Width
1.00 2 Story 2,235 2002 2 0 0


Additional Details for Building 1
ID Detail Type Description Units
1 Add On Fireplace Gas 1.00
1 Basement Finished 1434.00
1 Basement Total Basement SF 1535.00
1 Fixture Bar Sink 1.00
1 Fixture Full Bath 3.00
1 Fixture Half Bath 1.00
1 Garage Attached 885.00
1 Porch Open Slab 240.00
1 Porch Slab Roof Ceil 65.00





Account Parcel Account Type Tax Year Buildings Actual Value Local Govt Assessed Value School Assessed Value
R7670299 080728111011 Residential 2026 1 713,339 44,590 50,300

Type Code Description Actual Value Local Govt Assessed Value School Assessed Value Acres Land SqFt
Improvement 1212 SINGLE FAMILY RESIDENTIAL IMPROVEMENTS 583,339 36,460 41,130 0.000 0
Land 1112 SINGLE FAMILY RESIDENTIAL-LAND 130,000 8,130 9,170 0.230 10,182
Totals - - 713,339 44,590 50,300 0.230 10,182


Account Parcel Account Type Tax Year Buildings Actual Value Local Govt Assessed Value School Assessed Value
R7670299 080728111011 Residential 2026 1 713,339 44,590 50,300

Tax Area District ID District Name Local Govt
Mill Levy
School
Mill Levy
Estimated
Taxes
0451 0700 AIMS JUNIOR COLLEGE 6.313 0.000 $281.50
0451 1051 CLEARVIEW LIBRARY 3.546 0.000 $158.12
0451 0301 NORTHERN COLORADO WATER (NCW) 1.000 0.000 $44.59
0451 0204 SCHOOL DIST RE4-WINDSOR 0.000 46.646 $2,346.29
0451 1303 WATER VALLEY METRO 1 37.911 0.000 $1,690.45
0451 0100 WELD COUNTY 15.956 0.000 $711.48
0451 1200 WEST GREELEY CONSERVATION 0.414 0.000 $18.46
0451 0428 WINDSOR TOWN 12.030 0.000 $536.42
0451 0521 WINDSOR-SEVERANCE FIRE 8.535 0.000 $380.58
Total - - 85.705 46.646 $6,167.88


The estimate of tax is based on the prior year mill levy and the 2025 projected assessment rates. Mill levies and tax estimates will be updated yearly on December 22nd for the current year. Additional information can be found at https://assessor.weld.gov










Select Reports to Print: