Account: R7775999

April 5, 2026

Account Parcel Account Type Tax Year Buildings Actual Value Local Govt Assessed Value School Assessed Value
R7775999 080728203007 Residential 2026 1 441,778 27,610 31,140

Legal
WIN WVR L6 WATER VALLEY PH 1 REPLAT TR B

Subdivision Block Lot Land Economic Area
WATER VALLEY PHASE 1 RPLT TRACT B 6 PELICAN NEST TOWNHOMES WV

Property Address Property City Section Township Range
485 PELICAN CV WINDSOR 28 06 67




Account Parcel Account Type Tax Year Buildings Actual Value Local Govt Assessed Value School Assessed Value
R7775999 080728203007 Residential 2026 1 441,778 27,610 31,140

Account Owner Name Address
R7775999 WILOTH CARRIE J 2714 PASQUINEL DR FORT COLLINS, CO 805266247


Account Parcel Account Type Tax Year Buildings Actual Value Local Govt Assessed Value School Assessed Value
R7775999 080728203007 Residential 2026 1 441,778 27,610 31,140

Reception Rec Date Type Grantor Grantee Doc Fee Sale Date Sale Price
2590452 01-22-1998 WDN MCBRYDE DAVID C & S & M LLP 0.00 01-16-1998 0
2609905 NA SUB SUBDIVISION WATER VALLEY PHASE 1 RPLT TRACT B 0.00 NA 0
2612248 05-12-1998 WD S & M LLC HOLMAN DEVELOPMENT & CONSTRUCT 33.00 05-04-1998 330,000
2638284 09-04-1998 WD HOLMAN DEVELOPMENT & CONSTRUCT KNOX JILL RENE 17.80 08-31-1998 178,000
3469970 04-19-2007 WD KNOX JILL RENE WILOTH CARRIE J 20.50 04-12-2007 205,000



Account Parcel Account Type Tax Year Buildings Actual Value Local Govt Assessed Value School Assessed Value
R7775999 080728203007 Residential 2026 1 441,778 27,610 31,140

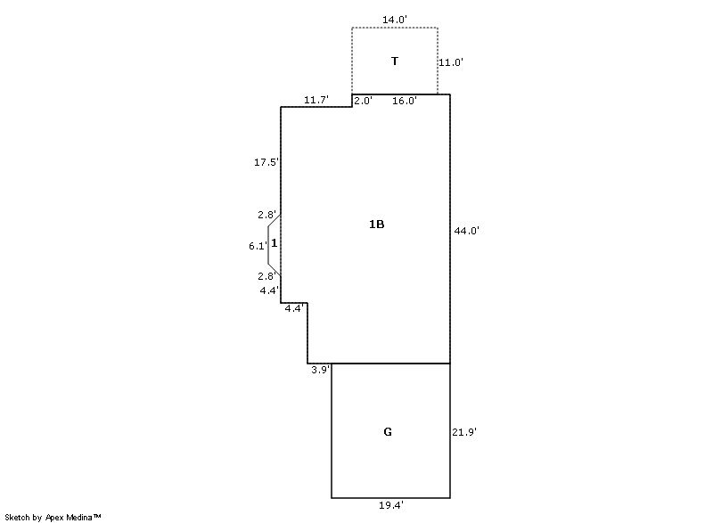
Building 1

AccountNo Building ID Occupancy
R7775999 1 Townhouse


ID Type NBHD Occupancy % Complete Bedrooms Baths
1 Townhouse 2W3056 Townhouse 100 3 3.00


ID Exterior Roof Cover Interior HVAC Perimeter Units Unit Type Make
1 Frame Hardboard Composition Shingle Drywall Central Air to Air 0 0 End NA


ID Square Ft Condo SF Total Basement SF Finished Basement SF Garage SF Carport SF Balcony SF Porch SF
1 1,168 0 1,151 1,151 425 0 0 154


Built As Details for Building 1
ID Built As Square Ft Year Built Stories Length Width
1.00 Townhouse One Story 1,168 1998 1 0 0


Additional Details for Building 1
ID Detail Type Description Units
1 Basement Finished 1151.00
1 Basement Total Basement SF 1151.00
1 Fixture Full Bath 3.00
1 Garage Attached 425.00
1 Porch Open Slab 154.00





Account Parcel Account Type Tax Year Buildings Actual Value Local Govt Assessed Value School Assessed Value
R7775999 080728203007 Residential 2026 1 441,778 27,610 31,140

Type Code Description Actual Value Local Govt Assessed Value School Assessed Value Acres Land SqFt
Improvement 1212 SINGLE FAMILY RESIDENTIAL IMPROVEMENTS 376,778 23,550 26,560 0.000 0
Land 1112 SINGLE FAMILY RESIDENTIAL-LAND 65,000 4,060 4,580 0.050 2,320
Totals - - 441,778 27,610 31,140 0.050 2,320


Account Parcel Account Type Tax Year Buildings Actual Value Local Govt Assessed Value School Assessed Value
R7775999 080728203007 Residential 2026 1 441,778 27,610 31,140

Tax Area District ID District Name Local Govt
Mill Levy
School
Mill Levy
Estimated
Taxes
0451 0700 AIMS JUNIOR COLLEGE 6.313 0.000 $174.30
0451 1051 CLEARVIEW LIBRARY 3.546 0.000 $97.91
0451 0301 NORTHERN COLORADO WATER (NCW) 1.000 0.000 $27.61
0451 0204 SCHOOL DIST RE4-WINDSOR 0.000 46.646 $1,452.56
0451 1303 WATER VALLEY METRO 1 37.911 0.000 $1,046.72
0451 0100 WELD COUNTY 15.956 0.000 $440.55
0451 1200 WEST GREELEY CONSERVATION 0.414 0.000 $11.43
0451 0428 WINDSOR TOWN 12.030 0.000 $332.15
0451 0521 WINDSOR-SEVERANCE FIRE 8.535 0.000 $235.65
Total - - 85.705 46.646 $3,818.87


The estimate of tax is based on the prior year mill levy and the 2025 projected assessment rates. Mill levies and tax estimates will be updated yearly on December 22nd for the current year. Additional information can be found at https://assessor.weld.gov










Select Reports to Print: