Account: R7787299
April 1, 2026
| Account | Parcel | Account Type | Tax Year | Buildings | Actual Value | Local Govt Assessed Value | School Assessed Value |
|---|---|---|---|---|---|---|---|
| R7787299 | 130932410009 | Residential | 2026 | 1 | 395,217 | 24,700 | 27,860 |
| Legal |
|---|
| FTL MS L9 BLK1 MOUNTVIEW SUB |
| Subdivision | Block | Lot | Land Economic Area |
|---|---|---|---|
| MOUNTVIEW SUB | 1 | 9 | MOUNTVIEW |
| Property Address | Property City | Section | Township | Range |
|---|---|---|---|---|
| 1117 ASH CT | FORT LUPTON | 32 | 02 | 66 |
| Account | Parcel | Account Type | Tax Year | Buildings | Actual Value | Local Govt Assessed Value | School Assessed Value |
|---|---|---|---|---|---|---|---|
| R7787299 | 130932410009 | Residential | 2026 | 1 | 395,217 | 24,700 | 27,860 |
| Account | Owner Name | Address |
|---|---|---|
| R7787299 | ALVARADO IGNACIO | 1117 ASH CT FORT LUPTON, CO 806212313 |
| R7787299 | ALVARADO VIVIAN |
| Account | Parcel | Account Type | Tax Year | Buildings | Actual Value | Local Govt Assessed Value | School Assessed Value |
|---|---|---|---|---|---|---|---|
| R7787299 | 130932410009 | Residential | 2026 | 1 | 395,217 | 24,700 | 27,860 |
| Reception | Rec Date | Type | Grantor | Grantee | Doc Fee | Sale Date | Sale Price |
|---|---|---|---|---|---|---|---|
| 2099749 | NA | SUB | SUBDIVISION | MOUNTVIEW | 0.00 | NA | 0 |
| 2715526 | 08-23-1999 | WD | CLARKSON LAND LLC | LIFESTYLE HOMES INC | 11.84 | 08-18-1999 | 118,400 |
| 2749978 | 02-16-2000 | WD | LIFESTYLE HOMES INC | ALVARADO IGNACIO & VIVIAN | 13.99 | 02-14-2000 | 139,900 |
*If the hyperlink for the reception number does not work, try a manual search in the Clerk and Recorder records. Use the Grantor or Grantee in your search.
| Account | Parcel | Account Type | Tax Year | Buildings | Actual Value | Local Govt Assessed Value | School Assessed Value |
|---|---|---|---|---|---|---|---|
| R7787299 | 130932410009 | Residential | 2026 | 1 | 395,217 | 24,700 | 27,860 |
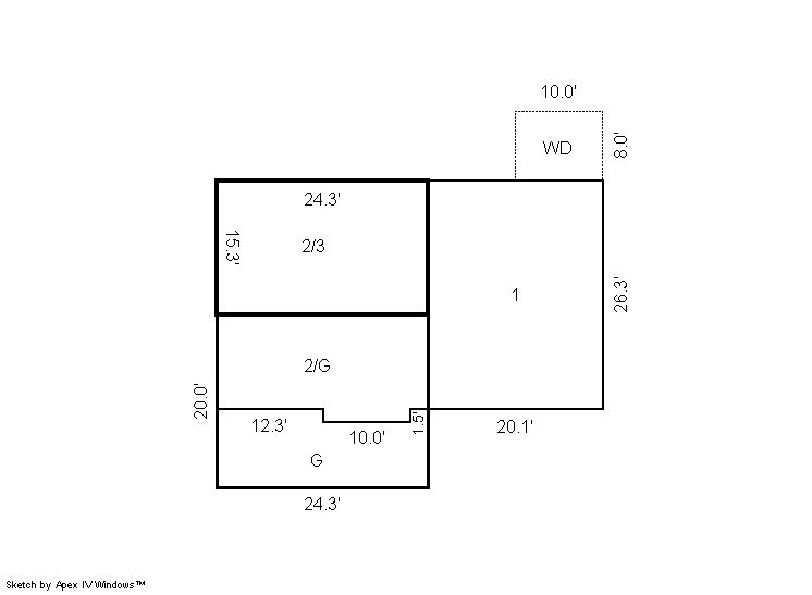
Building 1
| AccountNo | Building ID | Occupancy |
|---|---|---|
| R7787299 | 1 | Single Family Residential |
| ID | Type | NBHD | Occupancy | % Complete | Bedrooms | Baths |
|---|---|---|---|---|---|---|
| 1 | Residential | 4F2003 | Single Family Residential | 100 | 3 | 2.00 |
| ID | Exterior | Roof Cover | Interior | HVAC | Perimeter | Units | Unit Type | Make |
|---|---|---|---|---|---|---|---|---|
| 1 | Frame Hardboard | Composition Shingle | Drywall | Central Air to Air | 0 | 0 | NA | NA |
| ID | Square Ft | Condo SF | Total Basement SF | Finished Basement SF | Garage SF | Carport SF | Balcony SF | Porch SF |
|---|---|---|---|---|---|---|---|---|
| 1 | 1,550 | 0 | 0 | 0 | 485 | 0 | 0 | 80 |
| ID | Built As | Square Ft | Year Built | Stories | Length | Width |
|---|---|---|---|---|---|---|
| 1.00 | Split Level | 1,550 | 1999 | 1 | 0 | 0 |
| ID | Detail Type | Description | Units |
|---|---|---|---|
| 1 | Add On | Shed Frame | 100.00 |
| 1 | Fixture | Full Bath | 2.00 |
| 1 | Garage | Attached | 485.00 |
| 1 | Porch | Wood Deck | 80.00 |
| Account | Parcel | Account Type | Tax Year | Buildings | Actual Value | Local Govt Assessed Value | School Assessed Value |
|---|---|---|---|---|---|---|---|
| R7787299 | 130932410009 | Residential | 2026 | 1 | 395,217 | 24,700 | 27,860 |
| Type | Code | Description | Actual Value | Local Govt Assessed Value | School Assessed Value | Acres | Land SqFt |
|---|---|---|---|---|---|---|---|
| Improvement | 1212 | SINGLE FAMILY RESIDENTIAL IMPROVEMENTS | 315,217 | 19,700 | 22,220 | 0.000 | 0 |
| Land | 1112 | SINGLE FAMILY RESIDENTIAL-LAND | 80,000 | 5,000 | 5,640 | 0.167 | 7,255 |
| Totals | - | - | 395,217 | 24,700 | 27,860 | 0.167 | 7,255 |
Comparable sales for your Residential or Commercial property may be found using our SALES SEARCH TOOL
Values are updated annually on May 1st for Real Property and June 15th for Personal Property and Oil and Gas.
| Account | Parcel | Account Type | Tax Year | Buildings | Actual Value | Local Govt Assessed Value | School Assessed Value |
|---|---|---|---|---|---|---|---|
| R7787299 | 130932410009 | Residential | 2026 | 1 | 395,217 | 24,700 | 27,860 |
| Tax Area | District ID | District Name | Local Govt Mill Levy |
School Mill Levy |
Estimated Taxes |
|---|---|---|---|---|---|
| 0882 | 0700 | AIMS JUNIOR COLLEGE | 6.313 | 0.000 | $155.93 |
| 0882 | 0302 | CENTRAL COLORADO WATER (CCW) | 0.980 | 0.000 | $24.21 |
| 0882 | 0309 | CENTRAL COLORADO WATER SUBDISTRICT (CCS) | 1.462 | 0.000 | $36.11 |
| 0882 | 0407 | FORT LUPTON CITY | 42.931 | 0.000 | $1,060.40 |
| 0882 | 0506 | FORT LUPTON FIRE | 9.357 | 0.000 | $231.12 |
| 0882 | 1050 | HIGH PLAINS LIBRARY | 3.044 | 0.000 | $75.19 |
| 0882 | 0301 | NORTHERN COLORADO WATER (NCW) | 1.000 | 0.000 | $24.70 |
| 0882 | 0208 | SCHOOL DIST RE8-FORT LUPTON AND DACONO | 0.000 | 18.198 | $507.00 |
| 0882 | 0100 | WELD COUNTY | 15.956 | 0.000 | $394.11 |
| Total | - | - | 81.043 | 18.198 | $2,508.76 |
The estimate of tax is based on the prior year mill levy and the 2025 projected assessment rates. Mill levies and tax estimates will be updated yearly on December 22nd for the current year. Additional information can be found at https://assessor.weld.gov



