Account: R7805298

April 1, 2026

Account Parcel Account Type Tax Year Buildings Actual Value Local Govt Assessed Value School Assessed Value
R7805298 105911218011 Residential 2026 1 515,657 32,230 36,360

Legal
MIL L13 THRU 16 BLK53

Subdivision Block Lot Land Economic Area
MILLIKEN TOWN 53 13 MILLIKEN

Property Address Property City Section Township Range
105 S LAURA AVE MILLIKEN 11 04 67




Account Parcel Account Type Tax Year Buildings Actual Value Local Govt Assessed Value School Assessed Value
R7805298 105911218011 Residential 2026 1 515,657 32,230 36,360

Account Owner Name Address
R7805298 16:14 PROPERTY INVESTMENTS LLC 105 S LAURA AVE MILLIKEN, CO 805438121


Account Parcel Account Type Tax Year Buildings Actual Value Local Govt Assessed Value School Assessed Value
R7805298 105911218011 Residential 2026 1 515,657 32,230 36,360

Reception Rec Date Type Grantor Grantee Doc Fee Sale Date Sale Price
143902 NA SUB SUBDIVISION MILLIKEN 0.00 NA 0
2600625 03-19-1998 SWD ROADWAY ROBERT J GIROUARD EDWARD L & JANETTE M 10.30 03-12-1998 103,000
3318237 08-31-2005 DTHC GIROUARD EDWARD L & JANETTE M GIROUARD EDWARD L 0.00 12-06-2003 0
3318238 08-31-2005 AFFD GIROUARD JANETTE M GIROUARD EDWARD L 0.00 07-25-2005 0
3422061 09-25-2006 QCN GIROUARD EDWARD L ROFF LORETTA MARIE 0.00 09-20-2006 0
3954861 08-09-2013 QCN ROFF LORETTA MARIE STEEVES EDWARD LAWRENCE 0.00 08-08-2013 0
4348770 11-01-2017 WD STEEVES EDWARD LAWRENCE DAY BRIAN D 24.50 10-20-2017 245,000
4985049 09-30-2024 SWD DAY BRIAN D 16:14 PROPERTY INVESTMENTS LLC 27.00 09-27-2024 270,000



Account Parcel Account Type Tax Year Buildings Actual Value Local Govt Assessed Value School Assessed Value
R7805298 105911218011 Residential 2026 1 515,657 32,230 36,360

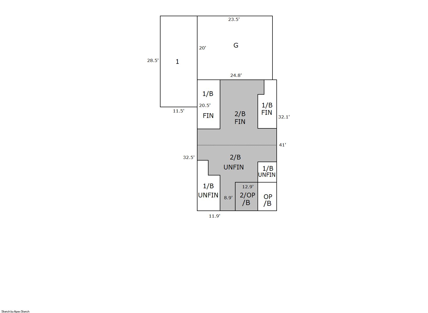
Building 1

AccountNo Building ID Occupancy
R7805298 1 Single Family Residential


ID Type NBHD Occupancy % Complete Bedrooms Baths
1 Residential 0M1077 Single Family Residential 100 5 3.00


ID Exterior Roof Cover Interior HVAC Perimeter Units Unit Type Make
1 Frame Siding Composition Shingle Drywall Forced Air 330 0 NA NA


ID Square Ft Condo SF Total Basement SF Finished Basement SF Garage SF Carport SF Balcony SF Porch SF
1 1,872 0 1,018 509 470 0 0 115


Built As Details for Building 1
ID Built As Square Ft Year Built Stories Length Width
1.00 1 1/2 Story Fin 1,872 1913 2 0 0


Additional Details for Building 1
ID Detail Type Description Units
1 Add On Fireplace Wood 1.00
1 Basement Finished 509.00
1 Basement Total Basement SF 1018.00
1 Fixture Full Bath 3.00
1 Garage Attached 470.00
1 Porch Slab Roof Ceil 115.00





Account Parcel Account Type Tax Year Buildings Actual Value Local Govt Assessed Value School Assessed Value
R7805298 105911218011 Residential 2026 1 515,657 32,230 36,360

Type Code Description Actual Value Local Govt Assessed Value School Assessed Value Acres Land SqFt
Improvement 1212 SINGLE FAMILY RESIDENTIAL IMPROVEMENTS 428,157 26,760 30,190 0.000 0
Land 1112 SINGLE FAMILY RESIDENTIAL-LAND 87,500 5,470 6,170 0.287 12,500
Totals - - 515,657 32,230 36,360 0.287 12,500


Account Parcel Account Type Tax Year Buildings Actual Value Local Govt Assessed Value School Assessed Value
R7805298 105911218011 Residential 2026 1 515,657 32,230 36,360

Tax Area District ID District Name Local Govt
Mill Levy
School
Mill Levy
Estimated
Taxes
5729 0700 AIMS JUNIOR COLLEGE 6.313 0.000 $203.47
5729 0510 FRONT RANGE FIRE RESCUE FIRE PROTECTION DISTRICT 11.483 0.000 $370.10
5729 1050 HIGH PLAINS LIBRARY 3.044 0.000 $98.11
5729 0421 MILLIKEN TOWN 26.301 0.000 $847.68
5729 0301 NORTHERN COLORADO WATER (NCW) 1.000 0.000 $32.23
5729 0205 SCHOOL DIST RE5J-JOHNSTOWN 0.000 36.271 $1,318.81
5729 0901 THOMPSON RIVER REC 3.594 0.000 $115.83
5729 0100 WELD COUNTY 15.956 0.000 $514.26
Total - - 67.691 36.271 $3,500.49


The estimate of tax is based on the prior year mill levy and the 2025 projected assessment rates. Mill levies and tax estimates will be updated yearly on December 22nd for the current year. Additional information can be found at https://assessor.weld.gov










Select Reports to Print: