Account: R7842299
April 5, 2026
| Account | Parcel | Account Type | Tax Year | Buildings | Actual Value | Local Govt Assessed Value | School Assessed Value |
|---|---|---|---|---|---|---|---|
| R7842299 | 131313405009 | Residential | 2026 | 1 | 513,768 | 32,110 | 36,220 |
| Legal |
|---|
| FRE 1NNC L9 BLK5 NONAME CREEK ESTATES #1 |
| Subdivision | Block | Lot | Land Economic Area |
|---|---|---|---|
| NONAME CREEK ESTATES #1 | 5 | 9 | NO NAME CREEK |
| Property Address | Property City | Section | Township | Range |
|---|---|---|---|---|
| 5826 WETLAND LOOP | FREDERICK | 13 | 02 | 68 |
| Account | Parcel | Account Type | Tax Year | Buildings | Actual Value | Local Govt Assessed Value | School Assessed Value |
|---|---|---|---|---|---|---|---|
| R7842299 | 131313405009 | Residential | 2026 | 1 | 513,768 | 32,110 | 36,220 |
| Account | Owner Name | Address |
|---|---|---|
| R7842299 | LAMB AZTRID N | 5826 WETLAND LOOP FREDERICK, CO 805049676 |
| R7842299 | LAMB PATRICK R |
| Account | Parcel | Account Type | Tax Year | Buildings | Actual Value | Local Govt Assessed Value | School Assessed Value |
|---|---|---|---|---|---|---|---|
| R7842299 | 131313405009 | Residential | 2026 | 1 | 513,768 | 32,110 | 36,220 |
| Reception | Rec Date | Type | Grantor | Grantee | Doc Fee | Sale Date | Sale Price |
|---|---|---|---|---|---|---|---|
| 2670207 | NA | SUB | SUBDIVISION | NO NAME CREEK ESTATES FG 1 | 0.00 | NA | 0 |
| 2691694 | 05-05-1999 | WD | NO NAME CREEK LLC | NELSON JERRY A & | 3.35 | 04-30-1999 | 33,500 |
| 2753218 | 03-03-2000 | WD | NELSON JERRY A & BAUER DAVID | RODDAN TIMOTHY R | 3.85 | 02-28-2000 | 38,500 |
| 3472139 | 04-30-2007 | WD | RODDAN TIMOTHY R | LAMB AZTRID N & | 26.40 | 04-12-2007 | 264,000 |
*If the hyperlink for the reception number does not work, try a manual search in the Clerk and Recorder records. Use the Grantor or Grantee in your search.
| Account | Parcel | Account Type | Tax Year | Buildings | Actual Value | Local Govt Assessed Value | School Assessed Value |
|---|---|---|---|---|---|---|---|
| R7842299 | 131313405009 | Residential | 2026 | 1 | 513,768 | 32,110 | 36,220 |
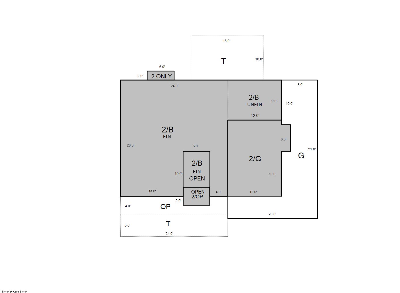
Building 1
| AccountNo | Building ID | Occupancy |
|---|---|---|
| R7842299 | 1 | Single Family Residential |
| ID | Type | NBHD | Occupancy | % Complete | Bedrooms | Baths |
|---|---|---|---|---|---|---|
| 1 | Residential | 3K2026 | Single Family Residential | 100 | 4 | 4.00 |
| ID | Exterior | Roof Cover | Interior | HVAC | Perimeter | Units | Unit Type | Make |
|---|---|---|---|---|---|---|---|---|
| 1 | Frame Siding | Composition Shingle | Drywall | Forced Air | 312 | 0 | NA | NA |
| ID | Square Ft | Condo SF | Total Basement SF | Finished Basement SF | Garage SF | Carport SF | Balcony SF | Porch SF |
|---|---|---|---|---|---|---|---|---|
| 1 | 1,620 | 0 | 720 | 612 | 512 | 0 | 0 | 280 |
| ID | Built As | Square Ft | Year Built | Stories | Length | Width |
|---|---|---|---|---|---|---|
| 1.00 | 2 Story | 1,620 | 2000 | 2 | 0 | 0 |
| ID | Detail Type | Description | Units |
|---|---|---|---|
| 1 | Basement | Finished | 612.00 |
| 1 | Basement | Total Basement SF | 720.00 |
| 1 | Fixture | Full Bath | 3.00 |
| 1 | Fixture | Half Bath | 1.00 |
| 1 | Garage | Attached | 512.00 |
| 1 | Porch | Open Slab | 280.00 |
| 1 | Porch | Slab Roof Ceil | 108.00 |
| Account | Parcel | Account Type | Tax Year | Buildings | Actual Value | Local Govt Assessed Value | School Assessed Value |
|---|---|---|---|---|---|---|---|
| R7842299 | 131313405009 | Residential | 2026 | 1 | 513,768 | 32,110 | 36,220 |
| Type | Code | Description | Actual Value | Local Govt Assessed Value | School Assessed Value | Acres | Land SqFt |
|---|---|---|---|---|---|---|---|
| Improvement | 1212 | SINGLE FAMILY RESIDENTIAL IMPROVEMENTS | 398,768 | 24,920 | 28,110 | 0.000 | 0 |
| Land | 1112 | SINGLE FAMILY RESIDENTIAL-LAND | 115,000 | 7,190 | 8,110 | 0.160 | 7,000 |
| Totals | - | - | 513,768 | 32,110 | 36,220 | 0.160 | 7,000 |
Comparable sales for your Residential or Commercial property may be found using our SALES SEARCH TOOL
Values are updated annually on May 1st for Real Property and June 15th for Personal Property and Oil and Gas.
| Account | Parcel | Account Type | Tax Year | Buildings | Actual Value | Local Govt Assessed Value | School Assessed Value |
|---|---|---|---|---|---|---|---|
| R7842299 | 131313405009 | Residential | 2026 | 1 | 513,768 | 32,110 | 36,220 |
| Tax Area | District ID | District Name | Local Govt Mill Levy |
School Mill Levy |
Estimated Taxes |
|---|---|---|---|---|---|
| 1459 | 0900 | CARBON VALLEY REC | 4.427 | 0.000 | $142.15 |
| 1459 | 0408 | FREDERICK TOWN | 6.555 | 0.000 | $210.48 |
| 1459 | 0507 | FREDERICK-FIRESTONE FIRE | 15.559 | 0.000 | $499.60 |
| 1459 | 1050 | HIGH PLAINS LIBRARY | 3.044 | 0.000 | $97.74 |
| 1459 | 0301 | NORTHERN COLORADO WATER (NCW) | 1.000 | 0.000 | $32.11 |
| 1459 | 0213 | SCHOOL DIST RE1J-LONGMONT | 0.000 | 57.717 | $2,090.51 |
| 1459 | 0620 | ST VRAIN SANITATION | 0.316 | 0.000 | $10.15 |
| 1459 | 0100 | WELD COUNTY | 15.956 | 0.000 | $512.35 |
| Total | - | - | 46.857 | 57.717 | $3,595.09 |
The estimate of tax is based on the prior year mill levy and the 2025 projected assessment rates. Mill levies and tax estimates will be updated yearly on December 22nd for the current year. Additional information can be found at https://assessor.weld.gov


