Account: R7964299

January 20, 2026

Account Parcel Account Type Tax Year Buildings Actual Value Local Govt Assessed Value School Assessed Value
R7964299 080320000052 Residential 2026 2 477,350 29,830 33,650

Legal
PT W2NE4 20-6-65 LOT A REC EXEMPT RE-2307 (.17R)

Subdivision Block Lot Land Economic Area
GREELEY RURAL

Property Address Property City Section Township Range
19518 HIGHWAY 392 WELD 20 06 65




Account Parcel Account Type Tax Year Buildings Actual Value Local Govt Assessed Value School Assessed Value
R7964299 080320000052 Residential 2026 2 477,350 29,830 33,650

Account Owner Name Address
R7964299 POPE HUGH 19518 HIGHWAY 392 GREELEY, CO 806319665
R7964299 REESE ELIZABETH B


Account Parcel Account Type Tax Year Buildings Actual Value Local Govt Assessed Value School Assessed Value
R7964299 080320000052 Residential 2026 2 477,350 29,830 33,650

Reception Rec Date Type Grantor Grantee Doc Fee Sale Date Sale Price
1385163 07-06-1962 COZ WELD COUNTY ZONING CASE: Z-22 ZONING A 0.00 NA 0
2661452 12-18-1998 RE RECORDED EXEMPTION RE-2307 0.00 NA 0
2661452 12-18-1998 RE RE-2307 RE-2307 0.00 12-18-1998 0
2689535 04-26-1999 SWD STANLEY JOAN C FERGUSON JANET M & JAMES JR 2.33 02-06-1999 23,300
3135992 12-16-2003 WD FERGUSON JANET M & JAMES JR POPE HUGH & 23.50 12-15-2003 235,000



Account Parcel Account Type Tax Year Buildings Actual Value Local Govt Assessed Value School Assessed Value
R7964299 080320000052 Residential 2026 2 477,350 29,830 33,650

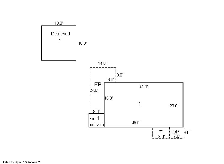
Building 1

AccountNo Building ID Occupancy
R7964299 1 Single Family Residential


ID Type NBHD Occupancy % Complete Bedrooms Baths
1 Residential 6R0007 Single Family Residential 100 2 1.00


ID Exterior Roof Cover Interior HVAC Perimeter Units Unit Type Make
1 Frame Aluminum Composition Shingle Drywall Forced Air 0 0 NA NA


ID Square Ft Condo SF Total Basement SF Finished Basement SF Garage SF Carport SF Balcony SF Porch SF
1 999 0 0 0 324 0 0 240


Built As Details for Building 1
ID Built As Square Ft Year Built Stories Length Width
1.00 Ranch 1 Story 999 1884 1 0 0


Additional Details for Building 1
ID Detail Type Description Units
1 Fixture Full Bath 1.00
1 Garage Detached 324.00
1 Porch Encl Solid Wall 240.00
1 Porch Slab Roof Ceil 42.00
1 Porch Slab w/Steps 54.00



Building 2

AccountNo Building ID Occupancy
R7964299 2 Shed - Utility


ID Type NBHD Occupancy % Complete Bedrooms Baths
2 Out Building NA Shed - Utility 100 0 0.00


ID Exterior Roof Cover Interior HVAC Perimeter Units Unit Type Make
2 NA NA NA None 244 0 NA NA


ID Square Ft Condo SF Total Basement SF Finished Basement SF Garage SF Carport SF Balcony SF Porch SF
2 2,880 0 0 0 0 0 0 0


Built As Details for Building 2
ID Built As Square Ft Year Built Stories Length Width
2.00 Shed - Utility 2,880 1953 1 90 32


Additional Details for Building 2
ID Detail Type Description Units
2 Add On Com Office Finish Average 240.00
2 Add On Suspended Heat 1.00





Account Parcel Account Type Tax Year Buildings Actual Value Local Govt Assessed Value School Assessed Value
R7964299 080320000052 Residential 2026 2 477,350 29,830 33,650

Type Code Description Actual Value Local Govt Assessed Value School Assessed Value Acres Land SqFt
Improvement 1212 SINGLE FAMILY RESIDENTIAL IMPROVEMENTS 371,405 23,210 26,180 0.000 0
Land 1112 SINGLE FAMILY RESIDENTIAL-LAND 105,945 6,620 7,470 0.940 40,946
Totals - - 477,350 29,830 33,650 0.940 40,946


Account Parcel Account Type Tax Year Buildings Actual Value Local Govt Assessed Value School Assessed Value
R7964299 080320000052 Residential 2026 2 477,350 29,830 33,650

Tax Area District ID District Name Local Govt
Mill Levy
School
Mill Levy
Estimated
Taxes
5055 0700 AIMS JUNIOR COLLEGE 6.313 0.000 $188.32
5055 0911 EATON AREA PARK AND RECREATION DISTRICT 5.425 0.000 $161.83
5055 0505 EATON FIRE 9.000 0.000 $268.47
5055 1050 HIGH PLAINS LIBRARY 3.044 0.000 $90.80
5055 0304 NORTH WELD COUNTY WATER (NWC) 0.000 0.000 $0.00
5055 0301 NORTHERN COLORADO WATER (NCW) 1.000 0.000 $29.83
5055 0202 SCHOOL DIST RE2-EATON 0.000 34.206 $1,151.03
5055 0100 WELD COUNTY 15.956 0.000 $475.97
5055 1200 WEST GREELEY CONSERVATION 0.414 0.000 $12.35
Total - - 41.152 34.206 $2,378.60


The estimate of tax is based on the prior year mill levy and the 2025 assessment rates. Mill levies and tax estimates will be updated yearly on December 22nd for the current year. Additional information can be found at https://assessor.weld.gov










Select Reports to Print: