Account: R8008499
April 5, 2026
| Account | Parcel | Account Type | Tax Year | Buildings | Actual Value | Local Govt Assessed Value | School Assessed Value |
|---|---|---|---|---|---|---|---|
| R8008499 | 095903328004 | Residential | 2026 | 1 | 278,774 | 17,420 | 19,650 |
| Legal |
|---|
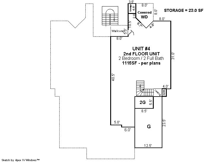
| GR WPC UNIT 4 BLDG D WEST POINT CONDOS |
| Subdivision | Block | Lot | Land Economic Area |
|---|---|---|---|
| WEST POINT CONDO | 4 | WEST POINT CONDOS |
| Property Address | Property City | Section | Township | Range |
|---|---|---|---|---|
| 950 52ND AVENUE CT D-4 | GREELEY | 03 | 05 | 66 |
| Account | Parcel | Account Type | Tax Year | Buildings | Actual Value | Local Govt Assessed Value | School Assessed Value |
|---|---|---|---|---|---|---|---|
| R8008499 | 095903328004 | Residential | 2026 | 1 | 278,774 | 17,420 | 19,650 |
| Account | Owner Name | Address |
|---|---|---|
| R8008499 | WATERS INVESTMENTS LLC | PO BOX 337173 GREELEY, CO 806330620 |
| Account | Parcel | Account Type | Tax Year | Buildings | Actual Value | Local Govt Assessed Value | School Assessed Value |
|---|---|---|---|---|---|---|---|
| R8008499 | 095903328004 | Residential | 2026 | 1 | 278,774 | 17,420 | 19,650 |
| Reception | Rec Date | Type | Grantor | Grantee | Doc Fee | Sale Date | Sale Price |
|---|---|---|---|---|---|---|---|
| 2644998 | 10-06-1998 | WDN | CLARKSON LAND LLC | WEST POINT VINTAGE LLC | 0.00 | 10-02-1998 | 0 |
| 2684991 | NA | SUB | SUBDIVISION | WEST POINT CONDOS | 0.00 | NA | 0 |
| 2711754 | 08-05-1999 | WD | WEST POINT VINTAGE LLC | GONGLOFF DANIEL M | 31.15 | 08-03-1999 | 311,500 |
| 2754682 | 03-10-2000 | WDN | GONGLOFF DANIEL M | WEST POINT VINTAGE LLC | 0.00 | 08-04-1999 | 0 |
| 2897740 | 11-05-2001 | WD | WEST POINT VINTAGE LLC | HOFFNER FLOYD L | 45.00 | 11-02-2001 | 450,000 |
| 3140414 | 12-31-2003 | WD | HOFFNER FLOYD L | WATERS INVESTMENTS LLC | 42.00 | 12-29-2003 | 420,000 |
*If the hyperlink for the reception number does not work, try a manual search in the Clerk and Recorder records. Use the Grantor or Grantee in your search.
| Account | Parcel | Account Type | Tax Year | Buildings | Actual Value | Local Govt Assessed Value | School Assessed Value |
|---|---|---|---|---|---|---|---|
| R8008499 | 095903328004 | Residential | 2026 | 1 | 278,774 | 17,420 | 19,650 |
Building 1
| AccountNo | Building ID | Occupancy |
|---|---|---|
| R8008499 | 1 | Condominium unit |
| ID | Type | NBHD | Occupancy | % Complete | Bedrooms | Baths |
|---|---|---|---|---|---|---|
| 1 | Condo | 2G3034 | Condominium unit | 100 | 2 | 2.00 |
| ID | Exterior | Roof Cover | Interior | HVAC | Perimeter | Units | Unit Type | Make |
|---|---|---|---|---|---|---|---|---|
| 1 | Frame Siding | Composition Shingle | Drywall | Central Air to Air | 0 | 1 | End | NA |
| ID | Square Ft | Condo SF | Total Basement SF | Finished Basement SF | Garage SF | Carport SF | Balcony SF | Porch SF |
|---|---|---|---|---|---|---|---|---|
| 1 | 1,077 | 1,077 | 0 | 0 | 294 | 0 | 0 | 73 |
| ID | Built As | Square Ft | Year Built | Stories | Length | Width |
|---|---|---|---|---|---|---|
| 1.00 | Condo <= 3 Stories | 1,077 | 1999 | 1 | 0 | 0 |
| ID | Detail Type | Description | Units |
|---|---|---|---|
| 1 | Add On | Fireplace Gas | 1.00 |
| 1 | Fixture | Full Bath | 2.00 |
| 1 | Garage | Built In | 294.00 |
| 1 | Porch | Cvrd Wood Deck | 73.00 |
| 1 | Porch | Slab Roof Ceil | 40.00 |
| 1 | Storage | Wood | 23.00 |
| Account | Parcel | Account Type | Tax Year | Buildings | Actual Value | Local Govt Assessed Value | School Assessed Value |
|---|---|---|---|---|---|---|---|
| R8008499 | 095903328004 | Residential | 2026 | 1 | 278,774 | 17,420 | 19,650 |
| Type | Code | Description | Actual Value | Local Govt Assessed Value | School Assessed Value | Acres | Land SqFt |
|---|---|---|---|---|---|---|---|
| Improvement | 1230 | CONDOS | 278,774 | 17,420 | 19,650 | 0.000 | 0 |
| Totals | - | - | 278,774 | 17,420 | 19,650 | 0.000 | 0 |
Comparable sales for your Residential or Commercial property may be found using our SALES SEARCH TOOL
Values are updated annually on May 1st for Real Property and June 15th for Personal Property and Oil and Gas.
| Account | Parcel | Account Type | Tax Year | Buildings | Actual Value | Local Govt Assessed Value | School Assessed Value |
|---|---|---|---|---|---|---|---|
| R8008499 | 095903328004 | Residential | 2026 | 1 | 278,774 | 17,420 | 19,650 |
| Tax Area | District ID | District Name | Local Govt Mill Levy |
School Mill Levy |
Estimated Taxes |
|---|---|---|---|---|---|
| 0683 | 0700 | AIMS JUNIOR COLLEGE | 6.313 | 0.000 | $109.97 |
| 0683 | 0411 | GREELEY CITY | 11.274 | 0.000 | $196.39 |
| 0683 | 1050 | HIGH PLAINS LIBRARY | 3.044 | 0.000 | $53.03 |
| 0683 | 0301 | NORTHERN COLORADO WATER (NCW) | 1.000 | 0.000 | $17.42 |
| 0683 | 0206 | SCHOOL DIST 6-GREELEY | 0.000 | 47.615 | $935.63 |
| 0683 | 0100 | WELD COUNTY | 15.956 | 0.000 | $277.95 |
| 0683 | 1200 | WEST GREELEY CONSERVATION | 0.414 | 0.000 | $7.21 |
| Total | - | - | 38.001 | 47.615 | $1,597.61 |
The estimate of tax is based on the prior year mill levy and the 2025 projected assessment rates. Mill levies and tax estimates will be updated yearly on December 22nd for the current year. Additional information can be found at https://assessor.weld.gov



