Account: R8033799
April 5, 2026
| Account | Parcel | Account Type | Tax Year | Buildings | Actual Value | Local Govt Assessed Value | School Assessed Value |
|---|---|---|---|---|---|---|---|
| R8033799 | 080532406005 | Residential | 2026 | 1 | 592,515 | 37,030 | 41,770 |
| Legal |
|---|
| GR 1PRR PT L5 PUD IH POUDRE RIVER RANCH 1ST FILING LYING NE4SE4 32-6-66 |
| Subdivision | Block | Lot | Land Economic Area |
|---|---|---|---|
| POUDRE RIVER RANCH 1ST FG PUD | 5 | POUDRE RIVER RANCH |
| Property Address | Property City | Section | Township | Range |
|---|---|---|---|---|
| 7404 POUDRE RIVER RD | GREELEY | 32 | 06 | 66 |
| Account | Parcel | Account Type | Tax Year | Buildings | Actual Value | Local Govt Assessed Value | School Assessed Value |
|---|---|---|---|---|---|---|---|
| R8033799 | 080532406005 | Residential | 2026 | 1 | 592,515 | 37,030 | 41,770 |
| Account | Owner Name | Address |
|---|---|---|
| R8033799 | TREVARTON VINCENT | 7404 POUDRE RIVER RD GREELEY, CO 806349345 |
| R8033799 | TREVARTON KRISTEN |
| Account | Parcel | Account Type | Tax Year | Buildings | Actual Value | Local Govt Assessed Value | School Assessed Value |
|---|---|---|---|---|---|---|---|
| R8033799 | 080532406005 | Residential | 2026 | 1 | 592,515 | 37,030 | 41,770 |
| Reception | Rec Date | Type | Grantor | Grantee | Doc Fee | Sale Date | Sale Price |
|---|---|---|---|---|---|---|---|
| 2123316 | 12-03-1987 | WDN | FOUR C LAND COMPANY | ORR ED; ORR SUSIE ANN | 0.00 | 12-03-1987 | 0 |
| 2682498 | NA | SUB | SUBDIVISION | POUDRE RIVER RANCH 1ST FG RPLT PUD IB | 0.00 | NA | 0 |
| 2737255 | 12-08-1999 | WD | ORR ED & SUSIE ANN | POUDRE RIVER RANCH COMPANY INC | 100.00 | 12-01-1999 | 1,000,000 |
| 2843086 | 04-25-2001 | WD | POUDRE RIVER RANCH COMPANY INC | PATRIARCH BUILDERS LLC | 5.35 | 04-23-2001 | 53,500 |
| 2926370 | 02-20-2002 | WD | PATRIARCH BUILDERS LLC | STRAUSS MARK A & KIRSTEN | 24.45 | 02-14-2002 | 244,500 |
| 3577929 | 09-12-2008 | QCN | STRAUSS MARK A | STRAUSS KIRSTEN | 0.00 | 09-12-2008 | 0 |
| 3975501 | 11-04-2013 | WDE | STRAUSS KIRSTEN | TREVARTON VINCENT | 36.20 | 11-01-2013 | 362,000 |
*If the hyperlink for the reception number does not work, try a manual search in the Clerk and Recorder records. Use the Grantor or Grantee in your search.
| Account | Parcel | Account Type | Tax Year | Buildings | Actual Value | Local Govt Assessed Value | School Assessed Value |
|---|---|---|---|---|---|---|---|
| R8033799 | 080532406005 | Residential | 2026 | 1 | 592,515 | 37,030 | 41,770 |
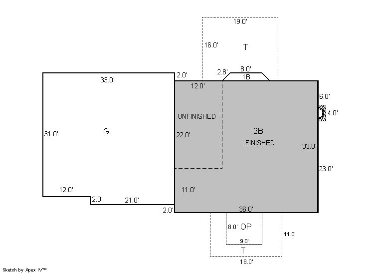
Building 1
| AccountNo | Building ID | Occupancy |
|---|---|---|
| R8033799 | 1 | Single Family Residential |
| ID | Type | NBHD | Occupancy | % Complete | Bedrooms | Baths |
|---|---|---|---|---|---|---|
| 1 | Residential | 2G1021 | Single Family Residential | 100 | 4 | 4.00 |
| ID | Exterior | Roof Cover | Interior | HVAC | Perimeter | Units | Unit Type | Make |
|---|---|---|---|---|---|---|---|---|
| 1 | Frame Masonry Veneer | Composition Shingle | Drywall | Central Air to Air | 0 | 0 | NA | NA |
| ID | Square Ft | Condo SF | Total Basement SF | Finished Basement SF | Garage SF | Carport SF | Balcony SF | Porch SF |
|---|---|---|---|---|---|---|---|---|
| 1 | 2,396 | 0 | 1,208 | 944 | 1,065 | 0 | 0 | 410 |
| ID | Built As | Square Ft | Year Built | Stories | Length | Width |
|---|---|---|---|---|---|---|
| 1.00 | 2 Story | 2,396 | 2001 | 2 | 0 | 0 |
| ID | Detail Type | Description | Units |
|---|---|---|---|
| 1 | Add On | Fireplace Gas | 2.00 |
| 1 | Add On | Suspended Heaters | 1.00 |
| 1 | Basement | Finished | 944.00 |
| 1 | Basement | Total Basement SF | 1208.00 |
| 1 | Fixture | Full Bath | 3.00 |
| 1 | Fixture | Half Bath | 1.00 |
| 1 | Garage | Attached | 1065.00 |
| 1 | Porch | Open Slab | 410.00 |
| 1 | Porch | Slab Roof Ceil | 72.00 |
| Account | Parcel | Account Type | Tax Year | Buildings | Actual Value | Local Govt Assessed Value | School Assessed Value |
|---|---|---|---|---|---|---|---|
| R8033799 | 080532406005 | Residential | 2026 | 1 | 592,515 | 37,030 | 41,770 |
| Type | Code | Description | Actual Value | Local Govt Assessed Value | School Assessed Value | Acres | Land SqFt |
|---|---|---|---|---|---|---|---|
| Improvement | 1212 | SINGLE FAMILY RESIDENTIAL IMPROVEMENTS | 547,515 | 34,220 | 38,600 | 0.000 | 0 |
| Land | 1112 | SINGLE FAMILY RESIDENTIAL-LAND | 45,000 | 2,810 | 3,170 | 0.110 | 4,699 |
| Totals | - | - | 592,515 | 37,030 | 41,770 | 0.110 | 4,699 |
Comparable sales for your Residential or Commercial property may be found using our SALES SEARCH TOOL
Values are updated annually on May 1st for Real Property and June 15th for Personal Property and Oil and Gas.
| Account | Parcel | Account Type | Tax Year | Buildings | Actual Value | Local Govt Assessed Value | School Assessed Value |
|---|---|---|---|---|---|---|---|
| R8033799 | 080532406005 | Residential | 2026 | 1 | 592,515 | 37,030 | 41,770 |
| Tax Area | District ID | District Name | Local Govt Mill Levy |
School Mill Levy |
Estimated Taxes |
|---|---|---|---|---|---|
| 0683 | 0700 | AIMS JUNIOR COLLEGE | 6.313 | 0.000 | $233.77 |
| 0683 | 0411 | GREELEY CITY | 11.274 | 0.000 | $417.48 |
| 0683 | 1050 | HIGH PLAINS LIBRARY | 3.044 | 0.000 | $112.72 |
| 0683 | 0301 | NORTHERN COLORADO WATER (NCW) | 1.000 | 0.000 | $37.03 |
| 0683 | 0206 | SCHOOL DIST 6-GREELEY | 0.000 | 47.615 | $1,988.88 |
| 0683 | 0100 | WELD COUNTY | 15.956 | 0.000 | $590.85 |
| 0683 | 1200 | WEST GREELEY CONSERVATION | 0.414 | 0.000 | $15.33 |
| Total | - | - | 38.001 | 47.615 | $3,396.06 |
The estimate of tax is based on the prior year mill levy and the 2025 projected assessment rates. Mill levies and tax estimates will be updated yearly on December 22nd for the current year. Additional information can be found at https://assessor.weld.gov



