Account: R8150100

April 5, 2026

Account Parcel Account Type Tax Year Buildings Actual Value Local Govt Assessed Value School Assessed Value
R8150100 095922024010 Residential 2026 1 460,271 28,760 32,450

Legal
GR 1WTBR L10 BLK7 WEST T BONE RANCH 1ST FIL

Subdivision Block Lot Land Economic Area
WEST T BONE RANCH SUB 1ST FG 7 10 T-BONE RANCH

Property Address Property City Section Township Range
2917 56TH AVE GREELEY 22 05 66




Account Parcel Account Type Tax Year Buildings Actual Value Local Govt Assessed Value School Assessed Value
R8150100 095922024010 Residential 2026 1 460,271 28,760 32,450

Account Owner Name Address
R8150100 CAMPBELL PATRICIA K 2917 56TH AVE GREELEY, CO 806348509


Account Parcel Account Type Tax Year Buildings Actual Value Local Govt Assessed Value School Assessed Value
R8150100 095922024010 Residential 2026 1 460,271 28,760 32,450

Reception Rec Date Type Grantor Grantee Doc Fee Sale Date Sale Price
2724123 NA SUB SUBDIVISION WEST T BONE RANCH 1ST FG 0.00 NA 0
2881411 09-06-2001 SWD WEST T-BONE LLC (50% INT) & GARRISON CONSTRUCTION INC 12.45 09-05-2001 124,500
3204050 07-30-2004 WD GARRISON CONSTRUCTION INC DALLEY DON & 5.10 07-27-2004 51,000
3236623 11-18-2004 WD DALLEY DON & MEMMOTT JASON J & 20.65 11-15-2004 206,500
3372023 03-21-2006 WD MEMMOTT JASON J & TORGERSON TROY J & 22.45 03-12-2006 224,500
3765523 04-29-2011 WD TORGERSON TROY J CAMPBELL DIARMUID C 18.20 04-22-2011 182,000
4879463 01-31-2023 DTHC CAMPBELL DIARMUID C CAMPBELL PATRICIA K 0.00 10-22-2022 0



Account Parcel Account Type Tax Year Buildings Actual Value Local Govt Assessed Value School Assessed Value
R8150100 095922024010 Residential 2026 1 460,271 28,760 32,450

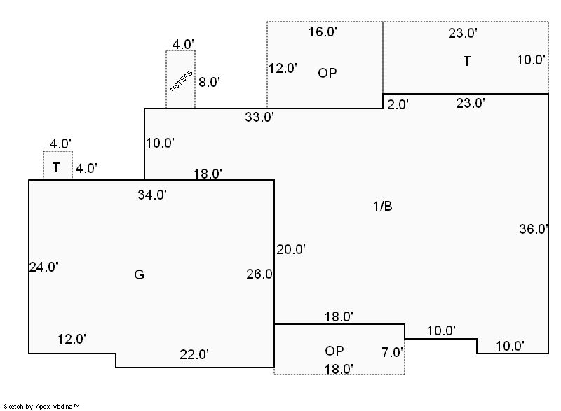
Building 1

AccountNo Building ID Occupancy
R8150100 1 Single Family Residential


ID Type NBHD Occupancy % Complete Bedrooms Baths
1 Residential 2G0001 Single Family Residential 100 3 2.00


ID Exterior Roof Cover Interior HVAC Perimeter Units Unit Type Make
1 Frame Hardboard Composition Shingle Drywall Central Air to Air 0 0 NA NA


ID Square Ft Condo SF Total Basement SF Finished Basement SF Garage SF Carport SF Balcony SF Porch SF
1 1,426 0 1,426 0 860 0 0 318


Built As Details for Building 1
ID Built As Square Ft Year Built Stories Length Width
1.00 Ranch 1 Story 1,426 2004 1 0 0


Additional Details for Building 1
ID Detail Type Description Units
1 Add On Fireplace Gas 1.00
1 Basement Total Basement SF 1426.00
1 Fixture Full Bath 2.00
1 Garage Attached 860.00
1 Porch Open Slab 246.00
1 Porch Slab Roof Ceil 318.00
1 Porch Slab w/Steps 32.00
1 Rough In Rough In 1.00





Account Parcel Account Type Tax Year Buildings Actual Value Local Govt Assessed Value School Assessed Value
R8150100 095922024010 Residential 2026 1 460,271 28,760 32,450

Type Code Description Actual Value Local Govt Assessed Value School Assessed Value Acres Land SqFt
Improvement 1212 SINGLE FAMILY RESIDENTIAL IMPROVEMENTS 375,271 23,450 26,460 0.000 0
Land 1112 SINGLE FAMILY RESIDENTIAL-LAND 85,000 5,310 5,990 0.216 9,405
Totals - - 460,271 28,760 32,450 0.216 9,405


Account Parcel Account Type Tax Year Buildings Actual Value Local Govt Assessed Value School Assessed Value
R8150100 095922024010 Residential 2026 1 460,271 28,760 32,450

Tax Area District ID District Name Local Govt
Mill Levy
School
Mill Levy
Estimated
Taxes
0683 0700 AIMS JUNIOR COLLEGE 6.313 0.000 $181.56
0683 0411 GREELEY CITY 11.274 0.000 $324.24
0683 1050 HIGH PLAINS LIBRARY 3.044 0.000 $87.55
0683 0301 NORTHERN COLORADO WATER (NCW) 1.000 0.000 $28.76
0683 0206 SCHOOL DIST 6-GREELEY 0.000 47.615 $1,545.11
0683 0100 WELD COUNTY 15.956 0.000 $458.89
0683 1200 WEST GREELEY CONSERVATION 0.414 0.000 $11.91
Total - - 38.001 47.615 $2,638.02


The estimate of tax is based on the prior year mill levy and the 2025 projected assessment rates. Mill levies and tax estimates will be updated yearly on December 22nd for the current year. Additional information can be found at https://assessor.weld.gov










Select Reports to Print: