Account: R8240200

April 1, 2026

Account Parcel Account Type Tax Year Buildings Actual Value Local Govt Assessed Value School Assessed Value
R8240200 095925006008 Residential 2026 1 381,033 23,810 26,860

Legal
EVS 1HRRA L8 BLK6 HUNTERS RESERVE 1ST FILING REPLAT A

Subdivision Block Lot Land Economic Area
HUNTERS RESERVE 1ST FG RPLT A 6 8 HUNTERS RESERVE

Property Address Property City Section Township Range
3906 MOUNTAIN VIEW DR EVANS 25 05 66




Account Parcel Account Type Tax Year Buildings Actual Value Local Govt Assessed Value School Assessed Value
R8240200 095925006008 Residential 2026 1 381,033 23,810 26,860

Account Owner Name Address
R8240200 3906 MOUNTAIN VIEW DR LLC 6501 CHIPPER LN LOVELAND, CO 805379322


Account Parcel Account Type Tax Year Buildings Actual Value Local Govt Assessed Value School Assessed Value
R8240200 095925006008 Residential 2026 1 381,033 23,810 26,860

Reception Rec Date Type Grantor Grantee Doc Fee Sale Date Sale Price
2738706 NA SUB SUBDIVISION HUNTERS RESERVE 1ST FG RPLT A 0.00 NA 0
2745997 01-25-2000 WD TERRA FIRMA LAND WORKS LLC WEST EVANS DEVELOPMENT LLC 293.75 01-21-2000 2,937,500
2764676 04-28-2000 WD WEST EVANS DEVELOPMENT LLC JOURNEY HOMES LLC 10.60 04-27-2000 106,000
2784391 08-02-2000 WD JOURNEY HOMES LLC GLINES TIMOTHY & RUTH & RONALD 11.44 07-28-2000 114,400
2991755 09-30-2002 PRDN GLINES RONALD D GLINES JANICE E 0.00 09-24-2002 0
3136948 12-18-2003 WD GLINES JANICE E JONES NICHOL M 15.50 12-15-2003 155,000
3996255 02-14-2014 QCN JONES NICHOL M SCHR NICHOL M 0.00 02-12-2014 0
4194498 04-11-2016 QCN SCHRA NICHOL M; SCHRA KURT 3906 MOUNTAIN VIEW DRIVE LLC 0.00 03-31-2016 0
4209184 06-06-2016 WDN SCHRA NICHOL M; SCHRA KURT 3906 MOUNTAIN VIEW DR LLC 0.00 05-23-2016 0
4625593 09-01-2020 SWDN 3906 MOUNTAIN VIEW DRIVE LLC SCHRA KURT; SCHRA NICHOL M 0.00 09-01-2020 0
4632800 09-23-2020 SWDN SCHRA KURT; SCHRA NICHOL M 3906 MOUNTAIN VIEW DR LLC 0.00 09-22-2020 0



Account Parcel Account Type Tax Year Buildings Actual Value Local Govt Assessed Value School Assessed Value
R8240200 095925006008 Residential 2026 1 381,033 23,810 26,860

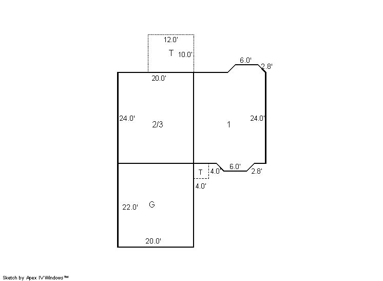
Building 1

AccountNo Building ID Occupancy
R8240200 1 Single Family Residential


ID Type NBHD Occupancy % Complete Bedrooms Baths
1 Residential 6E1062 Single Family Residential 100 2 2.00


ID Exterior Roof Cover Interior HVAC Perimeter Units Unit Type Make
1 Frame Hardboard Composition Shingle Drywall Central Air to Air 0 0 NA NA


ID Square Ft Condo SF Total Basement SF Finished Basement SF Garage SF Carport SF Balcony SF Porch SF
1 1,448 0 0 0 440 0 0 136


Built As Details for Building 1
ID Built As Square Ft Year Built Stories Length Width
1.00 Split Level 1,448 2000 2 0 0


Additional Details for Building 1
ID Detail Type Description Units
1 Add On Fireplace Gas 1.00
1 Fixture Full Bath 1.00
1 Fixture Half Bath 1.00
1 Garage Attached 440.00
1 Porch Open Slab 136.00





Account Parcel Account Type Tax Year Buildings Actual Value Local Govt Assessed Value School Assessed Value
R8240200 095925006008 Residential 2026 1 381,033 23,810 26,860

Type Code Description Actual Value Local Govt Assessed Value School Assessed Value Acres Land SqFt
Improvement 1212 SINGLE FAMILY RESIDENTIAL IMPROVEMENTS 301,033 18,810 21,220 0.000 0
Land 1112 SINGLE FAMILY RESIDENTIAL-LAND 80,000 5,000 5,640 0.190 8,271
Totals - - 381,033 23,810 26,860 0.190 8,271


Account Parcel Account Type Tax Year Buildings Actual Value Local Govt Assessed Value School Assessed Value
R8240200 095925006008 Residential 2026 1 381,033 23,810 26,860

Tax Area District ID District Name Local Govt
Mill Levy
School
Mill Levy
Estimated
Taxes
0663 0700 AIMS JUNIOR COLLEGE 6.313 0.000 $150.31
0663 0405 EVANS CITY 3.536 0.000 $84.19
0663 0534 EVANS FIRE 15.500 0.000 $369.06
0663 1050 HIGH PLAINS LIBRARY 3.044 0.000 $72.48
0663 0301 NORTHERN COLORADO WATER (NCW) 1.000 0.000 $23.81
0663 0206 SCHOOL DIST 6-GREELEY 0.000 47.615 $1,278.94
0663 0100 WELD COUNTY 15.956 0.000 $379.91
0663 1200 WEST GREELEY CONSERVATION 0.414 0.000 $9.86
Total - - 45.763 47.615 $2,368.56


The estimate of tax is based on the prior year mill levy and the 2025 projected assessment rates. Mill levies and tax estimates will be updated yearly on December 22nd for the current year. Additional information can be found at https://assessor.weld.gov










Select Reports to Print: