Account: R8313600
April 1, 2026
| Account | Parcel | Account Type | Tax Year | Buildings | Actual Value | Local Govt Assessed Value | School Assessed Value |
|---|---|---|---|---|---|---|---|
| R8313600 | 070931002010 | Residential | 2026 | 1 | 425,518 | 26,600 | 30,000 |
| Legal |
|---|
| ETN EC L10 BLK2 EATON COMMONS SUB |
| Subdivision | Block | Lot | Land Economic Area |
|---|---|---|---|
| EATON COMMONS SUB | 2 | 10 | EATON COMMONS |
| Property Address | Property City | Section | Township | Range |
|---|---|---|---|---|
| 855 E 4TH STREET RD | EATON | 31 | 07 | 65 |
| Account | Parcel | Account Type | Tax Year | Buildings | Actual Value | Local Govt Assessed Value | School Assessed Value |
|---|---|---|---|---|---|---|---|
| R8313600 | 070931002010 | Residential | 2026 | 1 | 425,518 | 26,600 | 30,000 |
| Account | Owner Name | Address |
|---|---|---|
| R8313600 | BAZILE JOHNATHAN | 855 E 4TH STREET RD EATON, CO 806159095 |
| Account | Parcel | Account Type | Tax Year | Buildings | Actual Value | Local Govt Assessed Value | School Assessed Value |
|---|---|---|---|---|---|---|---|
| R8313600 | 070931002010 | Residential | 2026 | 1 | 425,518 | 26,600 | 30,000 |
| Reception | Rec Date | Type | Grantor | Grantee | Doc Fee | Sale Date | Sale Price |
|---|---|---|---|---|---|---|---|
| 2732241 | NA | SUB | SUBDIVISION | EATON COMMONS | 0.00 | NA | 0 |
| 2736246 | 12-02-1999 | WD | SMITH CHARLES G | KEM HOMES INC | 56.00 | 11-23-1999 | 560,000 |
| 2813217 | 12-14-2000 | WD | KEM HOMES INC | BONNEMA CONSTRUCTION INC | 13.00 | 12-08-2000 | 130,000 |
| 2864360 | 07-10-2001 | WD | BONNEMA CONSTRUCTION INC | CLARK MICHAEL B & CRYSTAL L | 16.23 | 06-28-2001 | 162,300 |
| 3211743 | 08-23-2004 | WD | CLARK MICHAEL B & CRYSTAL L | LITTLE ERIC K & | 18.06 | 08-18-2004 | 180,600 |
| 3751906 | 02-23-2011 | WD | LITTLE ERIC K | GLASENER RYAN | 15.50 | 02-22-2011 | 155,000 |
| 3994942 | 02-07-2014 | WDE | GLASENER RYAN | HARVEY CHRISTOFER | 21.00 | 02-04-2014 | 210,000 |
| 4205700 | 05-23-2016 | WD | HARVEY CHRISTOFER; HARVEY AMANDA | BAZILE JOHN | 24.70 | 05-20-2016 | 247,000 |
| 4744174 | 08-09-2021 | QCN | BAZILE JOHN | JOHNATHAN SCOTT BAZILE; MCCOY CRYSTAL M | 0.00 | 07-26-2021 | 0 |
| 5013726 | 02-28-2025 | QCN | JOHNATHAN SCOTT BAZILE; MCCOY CRYSTAL M | BAZILE JOHNATHAN | 0.00 | 02-24-2025 | 0 |
*If the hyperlink for the reception number does not work, try a manual search in the Clerk and Recorder records. Use the Grantor or Grantee in your search.
| Account | Parcel | Account Type | Tax Year | Buildings | Actual Value | Local Govt Assessed Value | School Assessed Value |
|---|---|---|---|---|---|---|---|
| R8313600 | 070931002010 | Residential | 2026 | 1 | 425,518 | 26,600 | 30,000 |
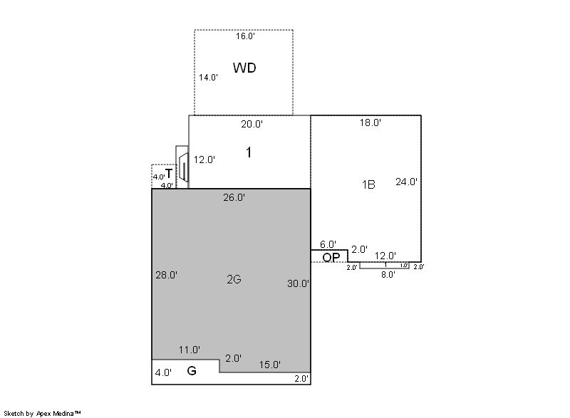
Building 1
| AccountNo | Building ID | Occupancy |
|---|---|---|
| R8313600 | 1 | Single Family Residential |
| ID | Type | NBHD | Occupancy | % Complete | Bedrooms | Baths |
|---|---|---|---|---|---|---|
| 1 | Residential | 9E3008 | Single Family Residential | 100 | 4 | 3.00 |
| ID | Exterior | Roof Cover | Interior | HVAC | Perimeter | Units | Unit Type | Make |
|---|---|---|---|---|---|---|---|---|
| 1 | Frame Siding | Composition Shingle | Drywall | Central Air to Air | 0 | 0 | NA | NA |
| ID | Square Ft | Condo SF | Total Basement SF | Finished Basement SF | Garage SF | Carport SF | Balcony SF | Porch SF |
|---|---|---|---|---|---|---|---|---|
| 1 | 1,426 | 0 | 420 | 420 | 832 | 0 | 0 | 16 |
| ID | Built As | Square Ft | Year Built | Stories | Length | Width |
|---|---|---|---|---|---|---|
| 1.00 | 2 Story | 1,426 | 2001 | 2 | 0 | 0 |
| ID | Detail Type | Description | Units |
|---|---|---|---|
| 1 | Add On | Fireplace Gas | 1.00 |
| 1 | Basement | Finished | 420.00 |
| 1 | Basement | Total Basement SF | 420.00 |
| 1 | Fixture | Full Bath | 3.00 |
| 1 | Fixture | Half Bath | 1.00 |
| 1 | Garage | Attached | 832.00 |
| 1 | Porch | Open Slab | 16.00 |
| 1 | Porch | Slab Roof Ceil | 12.00 |
| 1 | Porch | Wood Deck | 224.00 |
| Account | Parcel | Account Type | Tax Year | Buildings | Actual Value | Local Govt Assessed Value | School Assessed Value |
|---|---|---|---|---|---|---|---|
| R8313600 | 070931002010 | Residential | 2026 | 1 | 425,518 | 26,600 | 30,000 |
| Type | Code | Description | Actual Value | Local Govt Assessed Value | School Assessed Value | Acres | Land SqFt |
|---|---|---|---|---|---|---|---|
| Improvement | 1212 | SINGLE FAMILY RESIDENTIAL IMPROVEMENTS | 359,518 | 22,470 | 25,350 | 0.000 | 0 |
| Land | 1112 | SINGLE FAMILY RESIDENTIAL-LAND | 66,000 | 4,130 | 4,650 | 0.180 | 7,641 |
| Totals | - | - | 425,518 | 26,600 | 30,000 | 0.180 | 7,641 |
Comparable sales for your Residential or Commercial property may be found using our SALES SEARCH TOOL
Values are updated annually on May 1st for Real Property and June 15th for Personal Property and Oil and Gas.
| Account | Parcel | Account Type | Tax Year | Buildings | Actual Value | Local Govt Assessed Value | School Assessed Value |
|---|---|---|---|---|---|---|---|
| R8313600 | 070931002010 | Residential | 2026 | 1 | 425,518 | 26,600 | 30,000 |
| Tax Area | District ID | District Name | Local Govt Mill Levy |
School Mill Levy |
Estimated Taxes |
|---|---|---|---|---|---|
| 5059 | 0700 | AIMS JUNIOR COLLEGE | 6.313 | 0.000 | $167.93 |
| 5059 | 0911 | EATON AREA PARK AND RECREATION DISTRICT | 5.425 | 0.000 | $144.31 |
| 5059 | 0505 | EATON FIRE | 9.000 | 0.000 | $239.40 |
| 5059 | 0403 | EATON TOWN | 5.007 | 0.000 | $133.19 |
| 5059 | 1050 | HIGH PLAINS LIBRARY | 3.044 | 0.000 | $80.97 |
| 5059 | 0301 | NORTHERN COLORADO WATER (NCW) | 1.000 | 0.000 | $26.60 |
| 5059 | 0202 | SCHOOL DIST RE2-EATON | 0.000 | 34.206 | $1,026.18 |
| 5059 | 0100 | WELD COUNTY | 15.956 | 0.000 | $424.43 |
| Total | - | - | 45.745 | 34.206 | $2,243.00 |
The estimate of tax is based on the prior year mill levy and the 2025 projected assessment rates. Mill levies and tax estimates will be updated yearly on December 22nd for the current year. Additional information can be found at https://assessor.weld.gov



