Account: R8378000

April 5, 2026

Account Parcel Account Type Tax Year Buildings Actual Value Local Govt Assessed Value School Assessed Value
R8378000 095917008009 Residential 2026 1 451,637 28,230 31,850

Legal
GR 2HSH L9 BLK5 HOMESTEAD HEIGHTS #2

Subdivision Block Lot Land Economic Area
HOMESTEAD HEIGHTS SUB FG#2 5 9 HOMESTEAD HEIGHTS

Property Address Property City Section Township Range
2133 72ND AVENUE CT GREELEY 17 05 66




Account Parcel Account Type Tax Year Buildings Actual Value Local Govt Assessed Value School Assessed Value
R8378000 095917008009 Residential 2026 1 451,637 28,230 31,850

Account Owner Name Address
R8378000 CAMPBELL KRISTEN 2133 72ND AVENUE CT GREELEY, CO 806348669
R8378000 CAMPBELL ZETH


Account Parcel Account Type Tax Year Buildings Actual Value Local Govt Assessed Value School Assessed Value
R8378000 095917008009 Residential 2026 1 451,637 28,230 31,850

Reception Rec Date Type Grantor Grantee Doc Fee Sale Date Sale Price
2740750 NA SUB SUBDIVISION HOMESTEAD HEIGHTS 2ND FG 0.00 NA 0
2844605 04-30-2001 WD SCHUSTER L J LLC PROGRESSIVE LIVING STRUCTURES INC 83.35 04-24-2001 833,500
2955544 05-28-2002 WD PROGRESSIVE LIVING STRUCTURES INC INLOES SCOTT C & 19.25 05-24-2002 192,500
4227811 08-15-2016 WD INLOES WENDI A; INLOES SCOTT C GURULE KATHLEEN S 30.00 08-12-2016 300,000
4238346 09-21-2016 QCN GURULE KATHLEEN S GURULE KATHLEEN S; SHEETZ MICHAEL EUGENE 0.00 09-12-2016 0
4548285 12-10-2019 WD GURULE KATHLEEN S; SHEETZ MICHAEL EUGENE CAMPBELL KRISTEN; CAMPBELL ZETH 36.50 12-06-2019 365,000



Account Parcel Account Type Tax Year Buildings Actual Value Local Govt Assessed Value School Assessed Value
R8378000 095917008009 Residential 2026 1 451,637 28,230 31,850

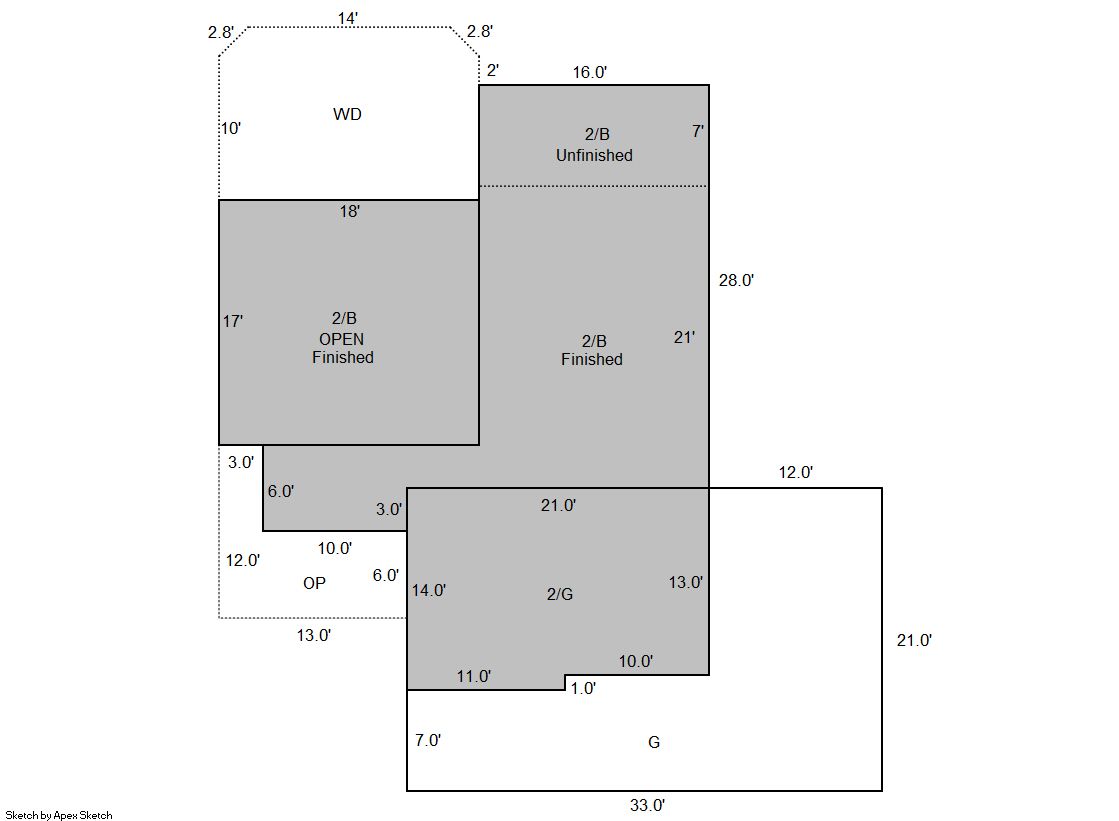
Building 1

AccountNo Building ID Occupancy
R8378000 1 Single Family Residential


ID Type NBHD Occupancy % Complete Bedrooms Baths
1 Residential 2G0007 Single Family Residential 100 4 4.00


ID Exterior Roof Cover Interior HVAC Perimeter Units Unit Type Make
1 Frame Siding Composition Shingle Drywall Central Air to Air 352 0 NA NA


ID Square Ft Condo SF Total Basement SF Finished Basement SF Garage SF Carport SF Balcony SF Porch SF
1 1,636 0 829 717 693 0 0 96


Built As Details for Building 1
ID Built As Square Ft Year Built Stories Length Width
1.00 2 Story 1,636 2002 2 0 0


Additional Details for Building 1
ID Detail Type Description Units
1 Add On Fireplace Gas 1.00
1 Basement Finished 717.00
1 Basement Full Daylight 1.00
1 Basement Total Basement SF 829.00
1 Fixture Full Bath 3.00
1 Fixture Half Bath 1.00
1 Garage Built In 693.00
1 Porch Slab Roof Ceil 96.00
1 Porch Wood Deck 212.00





Account Parcel Account Type Tax Year Buildings Actual Value Local Govt Assessed Value School Assessed Value
R8378000 095917008009 Residential 2026 1 451,637 28,230 31,850

Type Code Description Actual Value Local Govt Assessed Value School Assessed Value Acres Land SqFt
Improvement 1212 SINGLE FAMILY RESIDENTIAL IMPROVEMENTS 381,637 23,850 26,910 0.000 0
Land 1112 SINGLE FAMILY RESIDENTIAL-LAND 70,000 4,380 4,940 0.179 7,817
Totals - - 451,637 28,230 31,850 0.179 7,817


Account Parcel Account Type Tax Year Buildings Actual Value Local Govt Assessed Value School Assessed Value
R8378000 095917008009 Residential 2026 1 451,637 28,230 31,850

Tax Area District ID District Name Local Govt
Mill Levy
School
Mill Levy
Estimated
Taxes
0683 0700 AIMS JUNIOR COLLEGE 6.313 0.000 $178.22
0683 0411 GREELEY CITY 11.274 0.000 $318.27
0683 1050 HIGH PLAINS LIBRARY 3.044 0.000 $85.93
0683 0301 NORTHERN COLORADO WATER (NCW) 1.000 0.000 $28.23
0683 0206 SCHOOL DIST 6-GREELEY 0.000 47.615 $1,516.54
0683 0100 WELD COUNTY 15.956 0.000 $450.44
0683 1200 WEST GREELEY CONSERVATION 0.414 0.000 $11.69
Total - - 38.001 47.615 $2,589.31


The estimate of tax is based on the prior year mill levy and the 2025 projected assessment rates. Mill levies and tax estimates will be updated yearly on December 22nd for the current year. Additional information can be found at https://assessor.weld.gov










Select Reports to Print: